360° TOUR // GESCHÄFTSLOKAL / BÜROLOKAL

Büro / Praxis , 1030 Wien


Beschreibung der Immobilie

360° TOUR // GESCHÄFTSLOKAL / BÜROLOKAL

BÜRO/ GESCHÄFTSLOKAL nahe UNGARGASSE

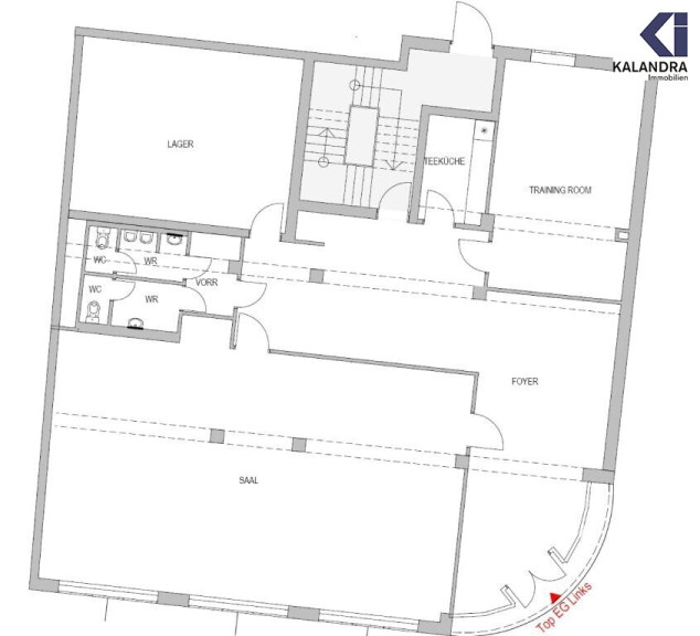
Diese ca. 241m² große Geschäftsfläche ist im Erdgeschoß eines Neubaugebäudes (BJ 1988) gelegen und bietet folgende

Raumaufteilung:
Vorraum/ großer Empfang, 6 Räume unterschiedlicher Größe (siehe Plan), Teeküche, 3 WC,
ein straßenseitiger, ein hofseitiger Zugang.

Ausstattung:
- in den Räumen durchgehend PVC-Boden,
- Naßräume verfliest,
- eingerichtete Teeküche,
- Parkgarage mit 80 PKW-Stellplätzen im Haus,
- Haus-Zentralheizung.

Die monatlichen Kosten für die Beheizung betragen dzt. ca. € 125,- + 20% USt. und werden gesondert vorgeschrieben.

Es wird ein auf 10 Jahre befristeter Mietvertrag mit 3-jährigem, mieterseitigen Kündigungsverzicht angeboten.
Kautionsbetrag: 6 Bruttomonatsmieten (Bankgarantie möglich)

360° Tour:
https://360.kalandra.at/view/portal/id/VV1LS





Infrastruktur / Entfernungen

Gesundheit
Arzt <500m
Apotheke <500m
Klinik <500m
Krankenhaus <500m

Kinder & Schulen
Schule <500m
Kindergarten <500m
Universität <500m
Höhere Schule <500m

Nahversorgung
Supermarkt <500m
Bäckerei <500m
Einkaufszentrum <1.000m

Sonstige
Geldautomat <500m
Bank <500m
Post <500m
Polizei <500m

Verkehr
Bus <500m
U-Bahn <1.000m
Straßenbahn <500m
Bahnhof <500m
Autobahnanschluss <2.000m

Angaben Entfernung Luftlinie / Quelle: OpenStreetMap

Eckdaten Objektnr. 17875

Art: Büro / Praxis
Land: Österreich
Baujahr: 1900
Zustand: Neuwertig
Kaltmiete (netto): 2.940,00 €
Kaltmiete: 3.510,85 €
Provision: 3 Bruttomonatsmieten zzgl. 20% USt.
Betriebskosten: 570,85 €
MwSt Gesamt: 702,17 €
Nutzfläche: 245,00 m²
Zimmer: 4
WC: 2
Terrassen: 1
Stellplätze: 1
Immobilie merken Exposé

Ausstattung

Zentralheizung, Personenaufzug


Immobilie anfragen


Ihre persönliche Beratung

KALANDRA Immobilien Robert Kalandra e.U.

Mag. Robin Kalandra

KALANDRA Immobilien Robert Kalandra e.U.

T +43-1533326913

H +43-69911804004

F +43-1-533-32-69-20