1-Zimmer Wohnung mit großzügiger Loggia

Wohnung , 1100 Wien


Beschreibung der Immobilie

1-Zimmer Wohnung mit großzügiger Loggia

1-Zimmer-Neubauwohnung mit Loggia – Laaer Wald, 1100 Wien



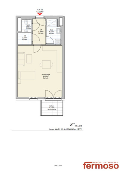
Diese gut geschnittene 1-Zimmer-Wohnung im Neubauprojekt Laaer Wald 1 bietet mit ihrer kompakten Wohnfläche modernen Komfort – ideal für Singles, Studierende oder Berufspendler.

Ein besonderes Highlight: Gegen eine faire Ablöse können die vorhandenen Möbel vom aktuellen Mieter übernommen werden – somit steht einem unkomplizierten Einzug nichts im Weg.



Details:




  • Heller Wohn-/Schlafraum mit integrierter Küchenzeile



  • Großes Bad mit Dusche, WC & Waschmaschinenanschluss



  • Überdachte, südseitige Loggia – ideal für sonnige Stunden




Ausstattung:




  • Parkettboden, Fußbodenheizung



  • Hochwertige Fliesen im Bad



  • Barrierefreier Zugang, Lift im Haus



  • Moderner Neubau mit sehr guter Energieeffizienz




Lage – Laaer Wald / Favoriten:




  • U1, Bus & Nahversorgung in unmittelbarer Nähe



  • Rasche Anbindung in die Innenstadt



  • Erholungsgebiete Wienerberg & Laaer Wald fußläufig erreichbar




Beziehbar: sofort

Mietvoraussetzung: 3 aktuelle Lohnzettel oder Bürgschaftserklärung



Kontakt:
Dean Banovic

📞 +43 676 926 15 29

📧 db@fermoso.at



Noch nichts gefunden? Wir informieren Sie über geeignete Immobilienangebote noch vor allen anderen.
Legen Sie jetzt Ihren individuellen Suchagenten unter folgendem Link an. Wir schicken Ihnen passende Immobilien exklusiv vorab zu.
Suchagent anlegen - https://fermoso-immobilientreuhand.service.immo/registrieren/de


Wir weisen darauf hin, dass zwischen dem Vermittler und dem zu vermittelnden Dritten ein familiäres oder wirtschaftliches Naheverhältnis besteht.


Der Immobilienmakler erklärt, dass er – entgegen dem in der Immobilienwirtschaft üblichen Geschäftsgebrauch des Doppelmaklers – einseitig nur für den Vermieter tätig ist.

Infrastruktur / Entfernungen

Gesundheit
Arzt <1.000m
Apotheke <500m
Klinik <1.000m
Krankenhaus <3.000m

Kinder & Schulen
Schule <500m
Kindergarten <500m
Universität <1.000m
Höhere Schule <2.500m

Nahversorgung
Supermarkt <500m
Bäckerei <500m
Einkaufszentrum <1.500m

Sonstige
Geldautomat <1.000m
Bank <1.000m
Post <1.000m
Polizei <1.500m

Verkehr
Bus <500m
U-Bahn <1.500m
Straßenbahn <500m
Bahnhof <1.000m
Autobahnanschluss <500m

Angaben Entfernung Luftlinie / Quelle: OpenStreetMap

Eckdaten Objektnr. 6563

Art: Wohnung
Land: Österreich
Baujahr: 2021
Zustand: Neuwertig
Alter: Neubau
Gesamtmiete: 849,00
Kaltmiete (netto): 642,66 €
Kaltmiete: 771,81 €
Provision: Gemäß Erstauftraggeberprinzip bezahlt der Abgeber die Provision.
Betriebskosten: 129,15 €
MwSt Gesamt: 77,19 €
Wohnfläche: 36,67 m²
Nutzfläche: 43,05 m²
Zimmer: 1
Bäder: 1
WC: 1
Balkone: 1
Heizwärmebedarf:  A  15,50 kWh/m²a
fGEE:  A+  0,65
Immobilie merken Exposé

Ausstattung

Fliesen, Parkett, Dusche


Immobilie anfragen


Ihre persönliche Beratung

Fermoso Immobilientreuhand GmbH

Dean Banovic

Fermoso Immobilientreuhand GmbH

T +43 676 9261 529

H +43 676 9261 529