HUMBOLDTPLATZ, U1-NÄHE, 68 m2 Neubau inkl. 4 m2 Loggia, Wohnküche, 1 Zimmer, 3. Liftstock, Humboldtgasse

Wohnung - Etage, 1100 Wien , Humboldtgasse


HUMBOLDTGASSE beim HUMBOLDTPLATZ mit bester Infrastruktur des 10. Bezirks wie Laxenburger Straße - Gudrunstraße und Fußgängerzone Favoritenstraße sowie perfekten Verkehrsverbindung wie U1-Station Keplerplatz sowie die Linien O, 67, 14A + 69A sind in unmittelbarer Nähe

Beschreibung der Immobilie

HUMBOLDTPLATZ, U1-NÄHE, 68 m2 Neubau inkl. 4 m2 Loggia, Wohnküche, 1 Zimmer, 3. Liftstock, Humboldtgasse

IN DER HUMBOLDTGASSE BEIM HUMBOLDPLATZ GELANGT DIESE 67,86 m2 NEUBAUWOHNUNG INKL. ca. 4 m2 LOGGIA IM 3. LIFTGESCHOSS ZUR BEFRISTETEN VERMIETUNG


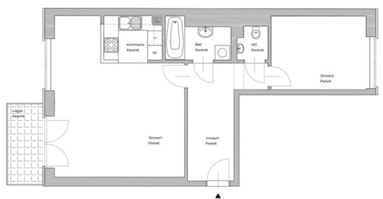
Vorzimmer, Wohnküche, Loggia, Schlafzimmer, Badezimmer, WC + Kellerabteil



Da die Wohnung noch vermietet ist, werden die Fotos einer schnittgleichen Wohnung angezeigt!

Besichtigungen sind möglich.



Ausstattung:


+ ca. 4 m2 Loggia (süd-westlich)

+ Küche mit Einbaugeräte

+ Badezimmer mit Badewanne, Waschtisch und Waschmaschinenanschluss

+ separates WC

+ Parketten, Fliesen im Nassbereich

+ Telekabelanschluss, Gegensprechanlage

+ Hauszentralheizung (Fernwärme)

+ Kellerabteil

+ HWB 49 kWh/m2a

+ Sofortbezug möglich!



Lage



HUMBOLDTGASSE beim HUMBOLDTPLATZ mit bester Infrastruktur des 10. Bezirks wie Laxenburger Straße - Gudrunstraße und Fußgängerzone Favoritenstraße sowie perfekten Verkehrsverbindung wie die U1-Station Keplerplatz sowie die  Linien 1, 18, O, 11, 67, 14A , 69A und N66 sind in unmittelbarer Nähe



Sonstiges



Gesamtmiete: € 1.114,15 inkl. Betriebskosten,Aufzug, 10 % MwSt.,

zzgl. Heizung- und Warmwasser-Akonto: € 184,57 inkl. 10/20 % MwSt. per Monat



Kaution: € 3.900,00 per Überweisung

auf 5 Jahre befristete Hauptmiete, ablösefrei, Sofortbezug möglich!
1 Jahr Kündigungsverzicht, 3 Monate Kündigungsfrist



Anbindung öffentlicher Verkehr



die U1-Station Keplerplatz sowie die  Linien 1, 18, O, 11, 67, 14A , 69A und N66 sind in unmittelbarer Nähe


Der Immobilienmakler erklärt, dass er – entgegen dem in der Immobilienwirtschaft üblichen Geschäftsgebrauch des Doppelmaklers – einseitig nur für den Vermieter tätig ist.

Infrastruktur / Entfernungen

Gesundheit
Arzt <250m
Apotheke <250m
Klinik <500m
Krankenhaus <1.750m

Kinder & Schulen
Schule <250m
Kindergarten <250m
Universität <1.000m
Höhere Schule <2.000m

Nahversorgung
Supermarkt <250m
Bäckerei <250m
Einkaufszentrum <500m

Sonstige
Geldautomat <250m
Bank <250m
Post <250m
Polizei <250m

Verkehr
Bus <250m
U-Bahn <250m
Straßenbahn <500m
Bahnhof <250m
Autobahnanschluss <1.750m

Angaben Entfernung Luftlinie / Quelle: OpenStreetMap

Eckdaten Objektnr. 2332

Art: Wohnung - Etage
Land: Österreich
Zustand: Gepflegt
Alter: Neubau
Gesamtmiete: 1.114,15
Kaltmiete (netto): 812,00 €
Kaltmiete: 1.012,87 €
Provision: Gemäß Erstauftraggeberprinzip bezahlt der Abgeber die Provision.
Betriebskosten: 176,44 €
MwSt Gesamt: 101,28 €
Nutzfläche: 67,86 m²
Zimmer: 2
Bäder: 1
WC: 1
Keller: 2,00 m²
Heizwärmebedarf:  B  32,20 kWh/m²a
fGEE:  B  0,97
Immobilie merken Exposé

Ausstattung

Fliesen, Parkett, Zentralheizung, Personenaufzug, Badewanne, Kabel/Satelliten-TV


Immobilie anfragen


Ihre persönliche Beratung

ROS REALITÄTEN OG

Alexander Ros

ROS REALITÄTEN VERMITTLUNG OG - TESTACCOUNT

T +43 1 526 70 60 - 12

H +43 664 466 52 02

F +43 1 526 70 60 33