Ein Ort zum Aufatmen & Wohlfühlen – charmantes Zuhause für Naturliebhaber, Familien & Generationen! Provisionsfrei!

Haus - Einfamilienhaus, 8255 Sankt Jakob im Walde , Kirchenviertel 83


Nur rund 1 km außerhalb der charmanten Tourismusgemeinde Sankt Jakob im Walde gelegen – einem anerkannten Luftkurort und mehrfach prämierten Blumendorf Europas. In direkter Umgebung erwarten Sie ein familiäres Skigebiet sowie eine überregional bekannte Langlaufloipe. Der Ort bietet gute Infrastruktur: Supermarkt, Kindergarten, Volksschule, Tennis- und Minigolfplatz, großzügiger Fußballplatz, Spielplätze, Gasthöfe und der beliebte Europapark. Ein besonderes Highlight ist das Kräftereich, ein innovatives Ausstellungszentrum mit wechselnden Themen. Zahlreiche Ausflugsziele befinden sich in der Nähe wie Peter Roseggers Waldheimat (Alpl), Hochwechsel, Stift Vorau, Pöllauberg, Stubenbergsee oder der Tierpark Herberstein

Beschreibung der Immobilie

Ein Ort zum Aufatmen & Wohlfühlen – charmantes Zuhause für Naturliebhaber, Familien & Generationen! Provisionsfrei!

Dieses großzügige Wohnhaus auf ca. 950 m Seehöhe besticht durch seine sonnige, idyllische Lage inmitten unberührter Natur – umgeben von Wiesen, Wäldern und drei Bauernhöfen. Die Wohnfläche von ca. 190 m² verteilt sich auf zwei separat nutzbare Wohneinheiten, ergänzt durch drei Terrassen, einen Balkon, einen gepflegten Garten mit Fischteich, Obstbäumen und blühenden Sträuchern sowie zusätzlichen Nutzflächen im Untergeschoss.



Das Haus ist wie folgt aufgeteilt:



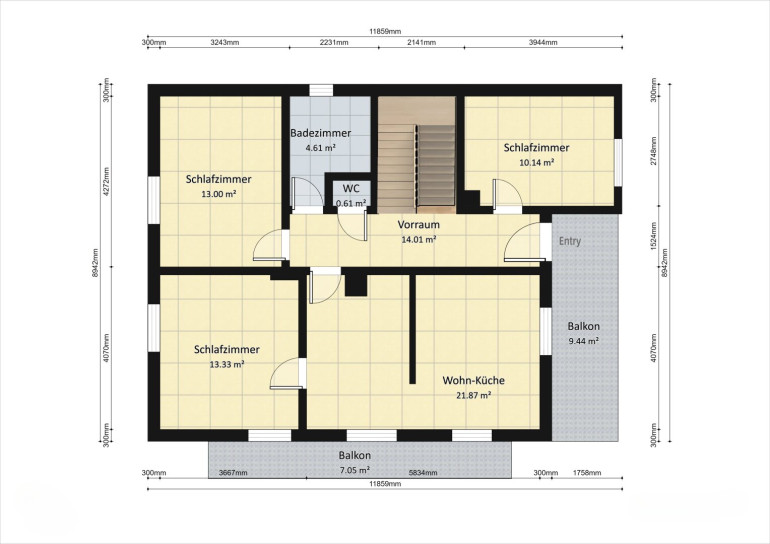
  • Wohngeschoss (ca. 95m2): zentrales Vorzimmer, Wohnküche, Wohnzimmer mit Kamin, 2 Schlafzimmer, modernes Bad mit Fenster, WC extra,  zuzügl. 2 Terrassen (ostseitig und große Westterrasse)
  • Obergeschoss (ca, 95m2): kleine Wohnküche, offen zu Wohnzimmer, 3 Schlafzimmer, Duschbad mit Fenster, extra WC, zuzügl. Ostterrasse und großer Süd-Westbalkon mit traumhaftem Fernblick.
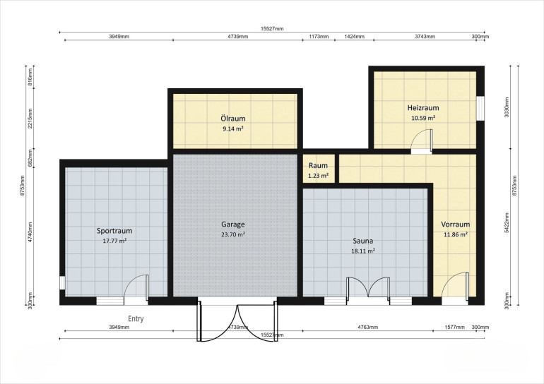
  • Untergeschoss (ca. 120m2): Keller mit Heizraum (Öl-Zentralheizung auf Holz umschaltbar), Saunaraum mit Dusche, Sportraum mit Fitnessgeräten, Garage für 2 PKW geeignet.




Besonderheiten:



  • Zwei getrennte Wohnbereiche – ideal für zwei Familien oder als Generationenhaus
  • Auch als Zweitwohnsitz oder Ferienimmobilie bestens geeignet
  • Guter Zustand
  • Ruhige, sonnige Lage mit herrlicher Aussicht
  • Provisionsfrei – direkt vom Eigentümer!


Ein perfektes Zuhause für Naturfreunde und Ruhesuchende – oder ein attraktiver Rückzugsort für Wochenenden und Ferien.

Kontaktieren Sie uns gerne für weitere Informationen oder einen Besichtigungstermin – wir freuen uns auf Ihre Anfrage!


Hinweis gemäß Energieausweisvorlagegesetz: Ein Energieausweis wurde vom Eigentümer bzw. Verkäufer, nach unserer Aufklärung über die generell geltende Vorlagepflicht, sowie Aufforderung zu seiner Erstellung noch nicht vorgelegt. Daher gilt zumindest eine dem Alter und der Art des Gebäudes entsprechende Gesamtenergieeffizienz als vereinbart. Wir übernehmen keinerlei Gewähr oder Haftung für die tatsächliche Energieeffizienz der angebotenen Immobilie.


Wir weisen darauf hin, dass zwischen dem Vermittler und dem zu vermittelnden Dritten ein familiäres oder wirtschaftliches Naheverhältnis besteht.

Infrastruktur / Entfernungen

Gesundheit
Arzt <4.025m

Kinder & Schulen
Schule <3.700m
Kindergarten <3.700m

Nahversorgung
Supermarkt <4.125m
Bäckerei <4.100m

Sonstige
Post <1.400m
Geldautomat <4.750m
Bank <4.075m
Polizei <4.075m

Verkehr
Bus <200m

Angaben Entfernung Luftlinie / Quelle: OpenStreetMap

Eckdaten Objektnr. 4022

Art: Haus - Einfamilienhaus
Land: Österreich
Zustand: Gepflegt
Möbliert: Teil
Kaufpreis: 299.000,00
Provision: Provisionsfrei!
Wohnfläche: 190,00 m²
Nutzfläche: 310,00 m²
Grundstücksfl.: 729,00 m²
Zimmer: 9
Bäder: 2
WC: 2
Balkone: 1
Terrassen: 3
Garten: 600,00 m²
Immobilie merken Exposé

Ausstattung

Fliesen, Laminatboden, Öl, Kamin, Zentralheizung, Ostbalkon, Südbalkon, Westbalkon, Sauna


Immobilie anfragen


Ihre persönliche Beratung

„AKTUELL“ Immobilien GmbH

Mag. Nicole Gruber

„AKTUELL“ Immobilien GmbH

T +43 1 597 33 99

H +43 664 453 10 45

F +43 1 597 34 99