Attraktives Renditeobjekt in Klosterneuburg – Ihr Investment in die Zukunft!

Zinshaus Renditeobjekt , 3400 Klosterneuburg


Dieses attraktive Zinshaus in Klosterneuburg bietet eine hervorragende Lage, die sowohl Wohn- als auch Lebensqualität vereint. In unmittelbarer Nähe finden Sie alle wichtigen Einrichtungen des täglichen Bedarfs: Arzt, Apotheke, Krankenhaus, Schule und Kindergarten sind fußläufig erreichbar. Supermärkte, Bäckereien, Banken und Geldautomaten sorgen für eine bequeme Versorgung. Die Anbindung an öffentliche Verkehrsmittel, darunter Bus und Bahnhof, garantiert zudem eine schnelle Erreichbarkeit der Wiener Innenstadt. Ideal für Anleger!

Beschreibung der Immobilie

Attraktives Renditeobjekt in Klosterneuburg – Ihr Investment in die Zukunft!

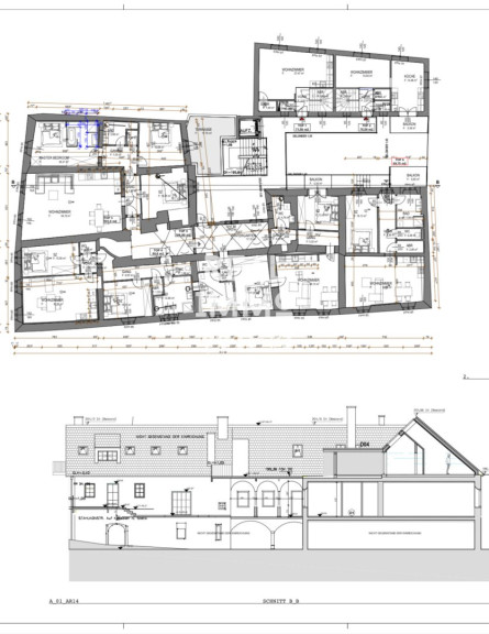
Dieses attraktive Zinshaus vereint Wohn- und Gewerbeflächen in zentraler Lage und bietet eine vielseitige Nutzungsmöglichkeit für Investoren und Eigennutzer.




  • Wohnungen: Insgesamt 9 Wohneinheiten, die sich durch eine moderne Ausstattung und eine angenehme Raumaufteilung auszeichnen.



  • Gewerbeflächen: 3 Gewerbeimmobilien im Erdgeschoss, ideal für Büros, Praxen oder Einzelhandel.



  • Garagenstellplätze: 5 komfortable Stellplätze, die den Bewohnern und Gewerbemietern zusätzlichen Komfort bieten.



  • Ausstattung: Alle Einheiten sind mit Klimaanlage ausgestattet und verfügen über eine zentrale Heizungsversorgung über Fernwärme – effizient, nachhaltig und kostensparend.




Besonderheiten



Die Kombination aus Wohn- und Gewerbeflächen macht dieses Objekt zu einer attraktiven Kapitalanlage mit stabiler Rendite. Die moderne Haustechnik sorgt für hohen Wohnkomfort und eine zukunftssichere Energieversorgung.



Bitte beachten Sie, dass wir aufgrund der Nachweispflicht gegenüber dem Eigentümer nur Anfragen mit vollständiger Angabe der Anschrift sowie Angaben zur Person (Name, Telefonnummer, E-Mail) bearbeiten können.


Wir weisen darauf hin, dass zwischen dem Vermittler und dem zu vermittelnden Dritten ein familiäres oder wirtschaftliches Naheverhältnis besteht.


Der Vermittler ist als Doppelmakler tätig.

Infrastruktur / Entfernungen

Gesundheit
Arzt <500m
Apotheke <500m
Klinik <4.500m
Krankenhaus <500m

Kinder & Schulen
Schule <500m
Kindergarten <500m
Universität <3.500m
Höhere Schule <6.500m

Nahversorgung
Supermarkt <500m
Bäckerei <500m
Einkaufszentrum <4.500m

Sonstige
Bank <500m
Geldautomat <500m
Post <500m
Polizei <500m

Verkehr
Bus <500m
Straßenbahn <5.000m
U-Bahn <7.000m
Bahnhof <1.000m
Autobahnanschluss <3.000m

Angaben Entfernung Luftlinie / Quelle: OpenStreetMap

Eckdaten Objektnr. 55648

Art: Zinshaus Renditeobjekt
Land: Österreich
Kaufpreis: 7.500.000,00
Provision: 3% des Kaufpreises zzgl. 20% USt.
Nutzfläche: 1.408,72 m²
Stellplätze: 5
Heizwärmebedarf:  C  95,00 kWh/m²a
fGEE:  C  1,49
Immobilie merken Exposé

Ausstattung

Parkett, Fliesen, Zentralheizung, Personenaufzug, Bad mit Fenster, Badewanne, Dusche, Parkplatz


Immobilie anfragen


Ihre persönliche Beratung

Real Immo Wien Immobilientreuhand - Inh. Gerald Frank

Philipp Stummer

Real Immo Wien Immobilientreuhand

T +4315120488

H +4366499651213