Stylischer 3-Zimmer ERSTBEZUG! Genießen Sie 68,5 m² Wohnfläche und einen großzügigen 20,5 m² Balkon im Herzen der Thermenregion. Einziehen und wohlfühlen!

Wohnung , 8271 Bad Waltersdorf


Diese einzigartige Lage bietet einerseits eine optimal ruhige Wohngegend in der wunderschönen Thermenregion Bad Waltersdorf gemixt mit einer Top Infrastruktur, welche sich durch die Nähe zur A2 Südautobahn auszeichnet. Erledigungen des täglichen Bedarfs (Supermarkt, Apotheke, Arztbesuche etc.) können fußläufig innerhalb von Bad Waltersdorf erledigt werden. Profitieren Sie von den zahlreichen erholenden Fahrrad- und Spazierwegen durch die Natur, die Ihnen dieser Standort bietet. Erholungsgebiete wie die Heiltherme Bad Waltersdorf sowie den Golfplatz Bad Waltersdorf können Sie fußläufig erreichen - sowie die Hundertwassertherme Bad Blumau und Therme Bad Loipersdorf innerhalb von wenigen Fahrminuten. Durch die tolle Verkehrsanbindung ist Graz innerhalb von 30 Minuten und Wien in unter 1h 30 min mit dem Auto oder gemütlich mit der Bahn erreichbar.

Beschreibung der Immobilie

Stylischer 3-Zimmer ERSTBEZUG! Genießen Sie 68,5 m² Wohnfläche und einen großzügigen 20,5 m² Balkon im Herzen der Thermenregion. Einziehen und wohlfühlen!

Stylischer 3-Zimmer ERSTBEZUG! Genießen Sie 68,5 m² Wohnfläche und einen großzügigen 20,5 m² Balkon im Herzen der Thermenregion. Einziehen und wohlfühlen!





Begeistert heißen wir Sie willkommen zu Ihrem persönlichen Wohntraum inmitten der THERMENREGION Bad Waltersdorf! 



Sie besticht nicht nur durch ihre modernen Annehmlichkeiten, sondern auch durch ihre optimale Lage. Diese wundervolle, lichtdurchflutete 3-Zimmer-Wohnung befindet sich in einem erstklassigen Neubauprojekt in optimaler Wohngegend.



Gebaut wurde in Ziegel-Massiv-Bauweise mit perfekter österreichischer Baumeisterqualität. Für die Innenausstattung wurden ausgewählte Markenprodukte verwendet.



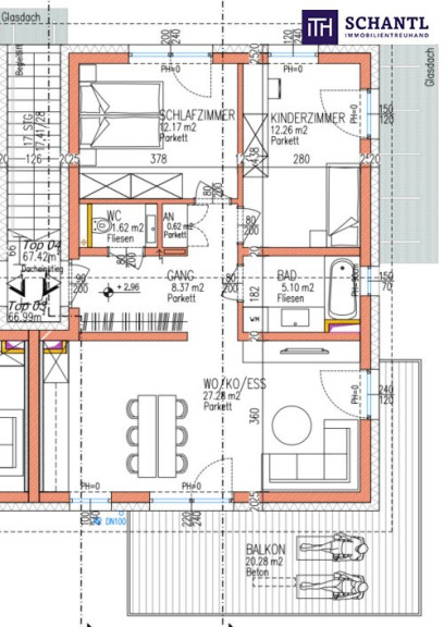
Das Highlight dieser lichtdurchfluteten Traum-Wohnung stellt neben den Raumhohen Decken (bis zu 4,5 m) im OG, ganz klar der großzügige 20 m² große Balkon dar, auf welchem Sie gemütlich ein Gläschen Wein genießen und vom Alltag abschalten können. Weiters besticht diese traumhafte 3-Zimmer Wohnung durch die offene Wohnraumgestaltung in Richtung Süd-Ost und die geniale Grundrissgestaltung - alle Zimmer sind mit großzügigen Fensterflächen ausgestattet. 



Hier bleiben definitiv keine Wünsche offen!



Raumaufteilung:



  • einladender Vorraum
  • praktische Abstellnische
  • WC mit Handwaschbecken direkt am Eingang 
  • helles Badezimmer mit Dusche und Fenster 
  • zwei Schlafzimmer mit großzügigen Fensterflächen und TV-Anschlüssen
  • offener Wohn-Essbereich mit Küche und Zugang auf den herrlichen Balkon




Highlights:



  • 3-fach-Verglasung, Kunststofffenster
  • hochwertiger Parkettboden in Eiche
  • Sonnenschutz: manuelle Raffstores inklusive 
  • Haus-Satellitenanlage/SAT-Anschluss
  • energieeffiziente Heizung - Luftwärmepumpe
  • Virtuelle Tour: 360°-Rundgang 3-Zimmer OG




Zur besseren Veranschaulichung wurden teilweise Renderings sowie Beispielbilder verwendet.





Worauf noch warten?



Vereinbaren Sie noch heute eine Besichtigung oder eine persönliche Beratung mit uns!



Sie wollen Ihre Immobilie verkaufen? Dann sind Sie bei uns goldrichtig!

Wir sind gerne für Sie da und unterstützen Sie unverbindlich bei der Bewertung Ihrer Immobilie. Mit viel Sorgfalt stellen wir Ihnen alle wichtigen Informationen und Unterlagen zusammen, damit Sie die besten Entscheidungen treffen können.



In Kooperation mit unserer SFI Vermögenstreuhand begleiten wir Sie bei der Verwirklichung Ihres Traumobjekts und unterstützen Sie beim nachhaltigen Vermögensaufbau. Mit unseren erfahrenen Experten sorgen wir dafür, dass Sie die besten Konditionen erhalten – damit Ihre Träume Wirklichkeit werden!



http://www.schantl-ith.at in Kooperation mit www.sfi-invest.com 


Wir weisen darauf hin, dass zwischen dem Vermittler und dem zu vermittelnden Dritten ein familiäres oder wirtschaftliches Naheverhältnis besteht.


Der Vermittler ist als Doppelmakler tätig.

Infrastruktur / Entfernungen

Gesundheit
Arzt <500m
Apotheke <1.000m

Kinder & Schulen
Schule <500m
Kindergarten <500m

Nahversorgung
Supermarkt <500m
Bäckerei <500m
Einkaufszentrum <7.000m

Sonstige
Bank <500m
Geldautomat <500m
Post <500m
Polizei <1.000m

Verkehr
Bus <500m
Autobahnanschluss <2.000m
Bahnhof <500m

Angaben Entfernung Luftlinie / Quelle: OpenStreetMap

Eckdaten Objektnr. 291892

Art: Wohnung
Land: Österreich
Baujahr: 2022
Zustand: Erstbezug
Alter: Neubau
Kaufpreis: 290.000,00
Provision: Provision bezahlt der Abgeber.
Wohnfläche: 68,50 m²
Nutzfläche: 73,65 m²
Zimmer: 3
Bäder: 1
WC: 1
Balkone: 1
Stellplätze: 1
Heizwärmebedarf:  B  43,60 kWh/m²a
fGEE:  A++  0,44
Immobilie merken Exposé

Ausstattung

Parkett, Fliesen, Fußbodenheizung, Wohnküche / offene Küche, Südbalkon, Bad mit Fenster, Dusche, Kabel/Satelliten-TV, Carport, Parkplatz


Immobilie anfragen


Ihre persönliche Beratung

Schantl ITH Immobilientreuhand GmbH

Patrick Hrauda, BA

Schantl ITH Immobilientreuhand GmbH

T +43 664 54 11 047

H +43 676 3330356