PROVISIONSFREIER ERSTBEZUG | MODERNE DECKENKÜHLUNG | GARAGE

Wohnung , 1130 Wien , Auhofstraße


Dieses exklusive Wohnprojekt im begehrten 13. Bezirk Wiens besticht durch ihre hervorragende Lage. Die Verkehrsanbindung könnte nicht besser sein: In unmittelbarer Nähe finden Sie den Bahnhof Hütteldorf mit Bus-, S- und U-Bahnverbindungen in sämtliche Stadtteile Wiens sowie eine hervorragende Anbindung an den überregionalen öffentlichen Nahverkehr. Weiters zeichnet sich die Lage durch eine Top-Infrastruktur aus. Das St.-Josef-Krankenhaus, Ärzte, Apotheke, Schulen, Kindergarten, Supermärkte, Bäckereien und Banken befinden sich in unmittelbarer Nähe. Besonders hervorzuheben ist die Nähe zur Natur: Der Lainzer Tiergarten, der Wienfluss-Radweg sowie zahlreiche Grün- und Erholungsflächen bieten vielfältige Freizeit- und Sportmöglichkeiten direkt vor der Haustüre. Diese ausgewogene Kombination aus hervorragender Infrastruktur, optimaler Verkehrsanbindung und hoher Lebensqualität macht die Microlage zu einem idealen Wohnort für Familien, Berufstätige und Ruhesuchende gleichermaßen.

Beschreibung der Immobilie

PROVISIONSFREIER ERSTBEZUG | MODERNE DECKENKÜHLUNG | GARAGE

WINTERAKTION – NUR BIS 31.01.2026!



Bei Kaufabschluss bis zum 31.01.2026

erhalten Sie eine Küche im Wert von bis zu 15.000 €



Willkommen in Ihrem neuen Zuhause in 1130 Wien! Diese exklusive Immobilie im Erstbezug bietet Ihnen nicht nur höchsten Wohnkomfort, sondern auch eine unschlagbare Lage, die alle Annehmlichkeiten des urbanen Lebens in greifbare Nähe rückt.



Wohnen, wo Wien am grünsten ist – und die City nur einen Sprung entfernt! Im schönen Hietzing, einem der begehrtesten Bezirke Wiens, wurde vor Kurzem ein hochwertiger Neubau mit 40 modernen Eigentumswohnungen fertiggestellt. Hier trifft zeitgemäßes Wohnen auf nachhaltige Technik.



Betreten Sie eine lichtdurchflutete Wohnung, die mit modernster Bauweise und hochwertigen Materialien begeistert. Mit einer innovativen Luftwärmepumpe genießen Sie stets ein angenehmes Raumklima – umweltfreundlich und energieeffizient.



Die Umgebung bietet alles, was das Herz begehrt: Ärzte, Apotheken und ein Krankenhaus sind in unmittelbarer Nähe, sodass Sie im Bedarfsfall schnell versorgt sind. Für Familien sind Schulen und Kindergärten in der Nähe, die eine optimale Betreuung und Bildung für Ihre Kinder garantieren. Auch die Nahversorgung kommt nicht zu kurz: Supermarkt und Bäckerei sind fußläufig erreichbar und bieten Ihnen alles, was Sie für den täglichen Bedarf benötigen.



Lassen Sie sich von der Kombination aus modernem Wohnkomfort und einer erstklassigen Lage überzeugen. Diese Immobilie ist der perfekte Rückzugsort für Singles, Paare oder kleine Familien, die das Leben in Wien genießen möchten. Zögern Sie nicht – kontaktieren Sie uns für weitere Informationen oder einen Besichtigungstermin. Ihr neues Zuhause wartet auf Sie!



Die Wohnungen verfügen über 2 bis 4 Zimmer mit ca. 45 bis 90 m² Wohnfläche, moderner Wohnküche sowie Balkonen, Loggien, Terrassen oder Eigengärten.



Ausstattung:



  • Alle Aufenthaltsräume sind mit hochwertigen Parkettböden ausgestattet.
  • Fenster mit 3-Scheiben-Isolierverglasung
  • Deckenheziung und -kühlung
  • elektrische Raffstores
  • Markensanitärausstattung
  • Personenlift im Haus
  • Fahrradabstellmöglichkeiten im Haus




Fotos (c) Irene Schanda

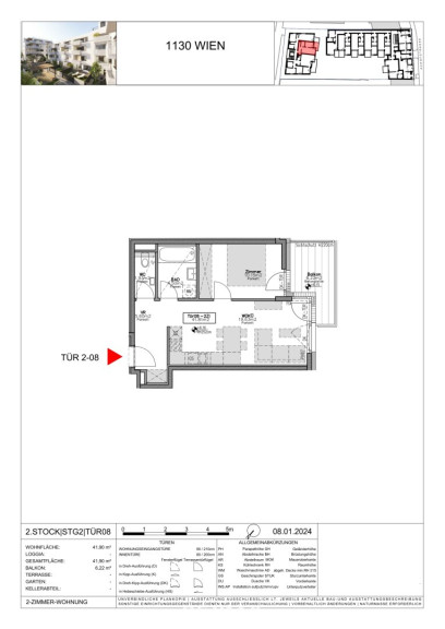
2-Zimmer-Wohnung mit Balkon
Diese gut geschnittene 2-Zimmer-Wohnung bietet 41,90 m² großen Wohnraum mit offener Wohnküche, Schlafzimmer und Bad. Der Balkon schafft einen zusätzlichen Rückzugsort im Freien. Dank der sehr guten urbanen Lage und hervorragenden Erreichbarkeit sind Einkaufsmöglichkeiten und öffentliche Verkehrsmittel schnell erreichbar – ideal für Paare oder Singles, ebenso für Pendler oder als attraktives Anlageobjekt.


Wir weisen darauf hin, dass zwischen dem Vermittler und dem zu vermittelnden Dritten ein familiäres oder wirtschaftliches Naheverhältnis besteht.


Der Vermittler ist als Doppelmakler tätig.

Infrastruktur / Entfernungen

Gesundheit
Arzt <750m
Apotheke <750m
Klinik <2.500m
Krankenhaus <250m

Kinder & Schulen
Schule <250m
Kindergarten <1.000m
Universität <1.500m
Höhere Schule <4.750m

Nahversorgung
Supermarkt <250m
Bäckerei <250m
Einkaufszentrum <3.500m

Sonstige
Geldautomat <250m
Bank <750m
Post <1.250m
Polizei <750m

Verkehr
Bus <250m
Straßenbahn <750m
U-Bahn <250m
Bahnhof <250m
Autobahnanschluss <3.250m

Angaben Entfernung Luftlinie / Quelle: OpenStreetMap

Eckdaten Objektnr. 1609/46814

Art: Wohnung
Land: Österreich
Baujahr: 2025
Zustand: Erstbezug
Alter: Neubau
Kaufpreis: 394.800,00
Betriebskosten: 94,16 €
Heizkosten: 33,93 €
MwSt Gesamt: 15,19 €
Wohnfläche: 41,90 m²
Zimmer: 2
Bäder: 1
WC: 1
Balkone: 1
Heizwärmebedarf:  B  34,80 kWh/m²a
fGEE:  A  0,72
Immobilie merken Exposé

Ausstattung

Fliesen, Parkettboden, Personenaufzug, Badewanne, Garage


Immobilie anfragen


Ihre persönliche Beratung

RE/MAX First - REM Immobilienmakler GmbH & Co KG

Karin Prosenik-Resch

RE/MAX First - REM Immobilienmakler Gmbh & Co KG

T +43 1 997 1000

H +43 699 151 151 01