Gartenwohnung mit 2 Zimmer und kleiner Terrasse in gepflegtem Altbau Zinshaus

Wohnung , 1070 Wien


Beschreibung der Immobilie

Gartenwohnung mit 2 Zimmer und kleiner Terrasse in gepflegtem Altbau Zinshaus

Bitte nur schriftliche Anfragen per E-Mail.



Es werden nur Anfragen mit vollständigem Namen, vollständiger Wohnadresse bzw. Firmenadresse, E-Mail Adresse und Telefonnummer bearbeitet.



Bei Finanzierungsfragen berät Sie unser Finanzierungsberater sehr gerne! Es werden nur verbindliche Kaufanbote mit Finanzierungsnachweis vom Verkäufer akzeptiert.



Für die Wohnung liegen schon verbindliche Kaufanbote vor.





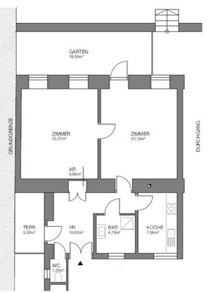
Die gepflegte Erdgeschoßwohnung nahe dem Museumsquartier verfügt über einen 18 m² Garten und eine 5,52 m² große Terrasse.



Der kleine Garten benötigt zwar etwas Pflege, aber mit Geschick kann der Garten und die zusätzliche Terrasse in eine schöne Idylle Nahe der Wiener Innenstadt werden.



Die Raumaufteilung ist gut gelöst mit 2 Zimmer mit jeweils ca. 22 m², Küche, Bad, Extra-WC wie im Grundrissplan ersichtlich.



Die Infrastruktur mit fußläufig erreichbaren Geschäften und Lokalen ist als sehr gut zu bezeichnen, in ein paar Gehminuten ist man beim Museumsquartier.



Gerne merken wir konkrete Interessenten für einen Besichtigungstermin vor.



Weitere Informationen entnehmen Sie bitte dem Exposé.


Hinweis gemäß Energieausweisvorlagegesetz: Ein Energieausweis wurde vom Eigentümer bzw. Verkäufer, nach unserer Aufklärung über die generell geltende Vorlagepflicht, sowie Aufforderung zu seiner Erstellung noch nicht vorgelegt. Daher gilt zumindest eine dem Alter und der Art des Gebäudes entsprechende Gesamtenergieeffizienz als vereinbart. Wir übernehmen keinerlei Gewähr oder Haftung für die tatsächliche Energieeffizienz der angebotenen Immobilie.

Infrastruktur / Entfernungen

Gesundheit
Arzt <500m
Apotheke <500m
Klinik <500m
Krankenhaus <1.500m

Kinder & Schulen
Schule <500m
Kindergarten <500m
Universität <500m
Höhere Schule <500m

Nahversorgung
Supermarkt <500m
Bäckerei <500m
Einkaufszentrum <1.000m

Sonstige
Geldautomat <500m
Bank <500m
Post <1.000m
Polizei <500m

Verkehr
Bus <500m
U-Bahn <1.000m
Straßenbahn <500m
Bahnhof <1.000m
Autobahnanschluss <4.000m

Angaben Entfernung Luftlinie / Quelle: OpenStreetMap

Eckdaten Objektnr. 506

Art: Wohnung
Land: Österreich
Alter: Altbau
Kaufpreis: 390.000,00
Provision: 3% des Kaufpreises zzgl. 20% USt.
Betriebskosten: 121,15 €
Wohnfläche: 69,27 m²
Zimmer: 2
Terrassen: 1
Garten: 18,00 m²
Immobilie merken Exposé

Immobilie anfragen


Ihre persönliche Beratung

Schlager Real Estate GmbH

Peter Schlager

Patria Real Estate GmbH

T +43 664 2212 197