Büro nahe St. Marx und Hyblerpark!

Büro / Praxis , 1110 Wien


St. Marx, Hyblerpark

Beschreibung der Immobilie

Büro nahe St. Marx und Hyblerpark!

Wir bitten um schriftliche Anfragen inkl. Angabe Ihrer vollständigen Kontaktdaten. Bitte keine Anrufe!



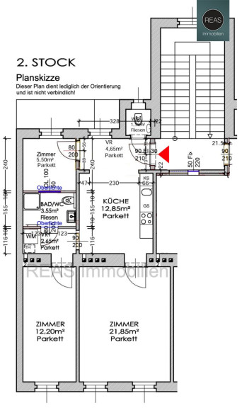
Zur Vermietung gelangt ein tolles Objekt im 2. Stock (ohne Lift) eines gepflegten Hauses nahe St. Marx/Hyblerpark.



Das Objekt besteht aus:



  • 1 Vorraum/Eingangsbereich
  • 1 WC mit Waschbecken und Fenster
  • 1 Küche mit komplett ausgestatteter hochwertiger Einbauküche (inkl. Waschbecken, Geschirrspüler, Backofen, E-Herd, Dunstabzug mit Filter, Kühl-Gefrierkombi) sowie reichlich Platz für einen Ess- bzw. Pausenbereich
  • 1 Bad/WC mit WC, Dusche, Waschbecken samt Unterschrank, Spiegel und Beleuchtung, einem Handtuchheizkörper sowie Oberlichten
  • 1 Gang mit Waschmaschinenanschluss
  • 3 Zimmer


Zur hochwertigen Ausstattung gehören: Echtholz-Parkettböden, Thermo-Fenster, Einbauküche mit allen Geräten, uvm.



Lage: Zwischen St. Marx und Hyblerpark. Die Straßenbahnlinie 71 ist ca. 250m entfernt, die U3 Zipperstraße ca. 500m



Miete: Netto € 14,-/m2 zzgl. BK & Ust. / Monat

Miete Netto € 901,60 zzgl. BK Netto € 117,21 = Netto Gesamt € 1.018,81 zzgl. 20% Ust. € 203,76 = Brutto Gesamt € 1.222,57 / Monat



Vertragserrichtungsgebühr: Netto € 364,60 zzgl. 20% Ust.



Befristete Vermietung: Dauer noch zu besprechen! Langfristige Mieter erwünscht! Kein Eigenbedarf!

Kaution: Höhe noch zu besprechen.



Gerne stehen wir für Rückfragen oder Besichtigungen zur Verfügung!



Wir ersuchen Sie, bereits in Ihrer Anfrage Ihre vollständigen Kontaktdaten (Adresse, Mail, Telefon) anzugeben, damit wir Ihre Anfrage rascher bearbeiten können. Aufgrund der Nachweispflicht gegenüber dem Abgeber sind wir verpflichtet, vor Bekanntgabe der Adresse diese Daten aufzunehmen und ersuchen um Ihr Verständnis.



Der guten Ordnung halber halten wir fest, dass, sofern im Angebot nicht anders vermerkt, bei erfolgreichem Vertragsabschluss eine Provision anfällt, die den in der Immobilienmaklerverordnung BGBI. 262 und 297/1996 festgelegten Provisionssätzen entspricht. Diese Provisionspflicht besteht auch dann, wenn Sie die Ihnen überlassenen Informationen an Dritte weitergeben.



Sämtliche Ihnen hiermit übermittelte Angaben wurden uns, seitens des Abgebers bekannt gegeben. Eine Garantie auf Richtigkeit und Vollständigkeit können wir nicht übernehmen.

Noch nichts gefunden? Wir informieren Sie über geeignete Immobilienangebote noch vor allen anderen.
Legen Sie jetzt Ihren individuellen Suchagenten unter folgendem Link an. Wir schicken Ihnen passende Immobilien exklusiv vorab zu.

Suchagent anlegen - https://reas-realitaeten-asmus.service.immo/registrieren/de


Hinweis gemäß Energieausweisvorlagegesetz: Ein Energieausweis wurde vom Eigentümer bzw. Verkäufer, nach unserer Aufklärung über die generell geltende Vorlagepflicht, sowie Aufforderung zu seiner Erstellung noch nicht vorgelegt. Daher gilt zumindest eine dem Alter und der Art des Gebäudes entsprechende Gesamtenergieeffizienz als vereinbart. Wir übernehmen keinerlei Gewähr oder Haftung für die tatsächliche Energieeffizienz der angebotenen Immobilie.


Wir weisen darauf hin, dass zwischen dem Vermittler und dem zu vermittelnden Dritten ein familiäres oder wirtschaftliches Naheverhältnis besteht.


Der Vermittler ist als Doppelmakler tätig.

Hinweis: Einzelne Bilder oder Visualisierungen in den Vermarktungsunterlagen, Exposés oder Inseraten wurden unter Umständen mithilfe von künstlicher Intelligenz (KI) digital bearbeitet und dienen ausschließlich der Veranschaulichung. Sie können vom tatsächlichen Zustand, der Ausstattung oder Ausführung der Immobilien abweichen. Verbindlich sind ausschließlich die Angaben im Kauf-/Mietangebot sowie bei Besichtigung vor Ort.

Infrastruktur / Entfernungen

Gesundheit
Arzt <500m
Apotheke <500m
Klinik <1.000m
Krankenhaus <2.000m

Kinder & Schulen
Schule <500m
Kindergarten <1.000m
Universität <1.000m
Höhere Schule <1.000m

Nahversorgung
Supermarkt <500m
Bäckerei <500m
Einkaufszentrum <1.000m

Sonstige
Geldautomat <1.000m
Bank <1.000m
Post <500m
Polizei <1.000m

Verkehr
Bus <500m
U-Bahn <500m
Straßenbahn <500m
Bahnhof <500m
Autobahnanschluss <500m

Angaben Entfernung Luftlinie / Quelle: OpenStreetMap

Eckdaten Objektnr. 3990

Art: Büro / Praxis
Land: Österreich
Alter: Altbau
Kaltmiete (netto): 901,60 €
Kaltmiete: 1.018,81 €
Miete / m²: 14,00 €
Provision: 3 Bruttomonatsmieten zzgl. 20% USt.
Betriebskosten: 117,21 €
MwSt Gesamt: 203,76 €
Nutzfläche: 64,40 m²
Bürofläche: 64,40 m²
Zimmer: 3
Bäder: 1
WC: 1
Immobilie merken Exposé

Ausstattung

Fliesen, Parkett, Gas, Etagenheizung, Einbauküche


Immobilie anfragen


Ihre persönliche Beratung

REAS Realitäten Asmus GmbH

REAS Immobilien

REAS Realitäten Asmus GmbH

T +43 664 24 77 08 7