Luxuriöses Penthouse mit historischem Charme und Blick über die Weingärten
Wohnung
- Dachgeschoß,
2352
Gumpoldskirchen
Kremsmünsterhof_Livi
Kremsmünsterhof Saun
Essbereich
Kremsmünsterhof_Bath
Schlafzimmer
Außenansicht
Terrasse
Top 04
1
2
3
4
IMG_20251128_122443
IMG_20251128_122458
IMG_20251128_122725
IMG_20251128_122742
IMG_20251128_123119
IMG_20251128_123306
IMG_20251128_123608
IMG_20251128_124129
IMG_20251128_124159
IMG_20251128_124509
IMG_20251128_124906
IMG_20251128_124957
IMG_20251128_125033
IMG_20251128_125323
IMG_20251128_130452
IMG_20251128_130459
IMG_7480
IMG_7481
IMG_7482
Beschreibung der Immobilie
Luxuriöses Penthouse mit historischem Charme und Blick über die Weingärten
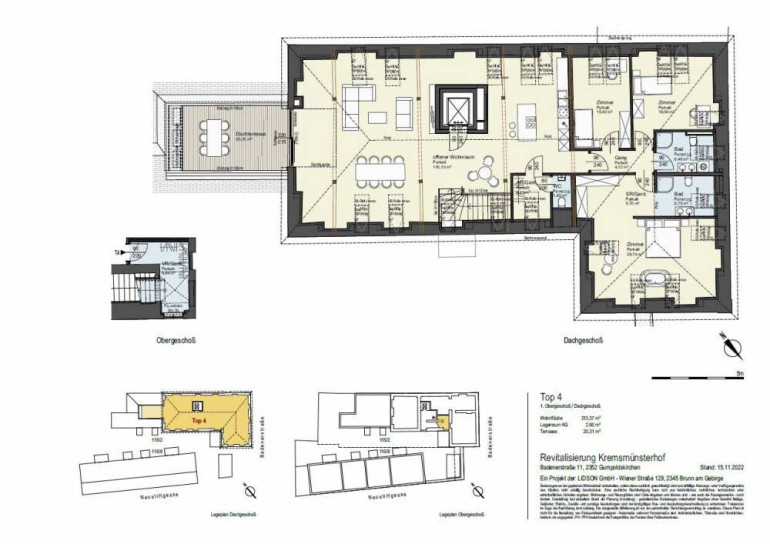
Wohnnutzfläche ca. 213 m² · 4 Zimmer · 2 Bäder · 3 WC · Terrasse ca. 21 m² · 2 TiefgaragenplätzeHistorischer Charme trifft moderne Architektur
Der Kremsmünsterhof – erstmals im 15. Jahrhundert urkundlich erwähnt – diente über Jahrhunderte als Winzerhaus. Im Rahmen einer umfassenden Revitalisierung wurde das Gebäudeensemble behutsam transformiert: historische Bausubstanz wurde erhalten, jüngere Anbauten entfernt und ein moderner Neubau harmonisch integriert. Ergebnis ist ein hochwertiges Wohnprojekt, das Geschichte und zeitgemäßes Wohnen miteinander verbindet.
Das Penthouse befindet sich im obersten Geschoss des ehemaligen Winzerhauses und ist vollständig neu ausgebaut – mit besonderem Augenmerk auf den Erhalt historischer Bauelemente.
Highlights des Penthouses
Architektur & Raumgefühl
Wohnfläche ca. 213 m² auf zwei Ebenen
Raumhöhen bis 4,19 m in den Aufenthaltsräumen
Sichtbare historische Dachstuhl-Balken, sorgfältig restauriert
Großzügige, offene Wohnräume mit außergewöhnlichem Loft-Charakter
Zugang über das Stiegenhaus oder direkt aus der Tiefgarage per Lift
Elektrische VELUX-Dachfenster mit außenliegendem Sonnenschutz
Außenflächen
Sonnenterrasse mit außergewöhnlichem 360°-Weitblick über die Weinberge und die Naturkulisse der Umgebung.
Größe ca. 21 m²
Direkt vom Wohnraum über großflächige Schiebeelemente erreichbar
Raumaufteilung
1. Obergeschoss (Eingangsbereich)
Einladender Vorraum / Gästegarderobe
Interne Treppe ins Dachgeschoss
Zugang auch über den Lift direkt ins Penthouse
Dachgeschoss (Hauptwohnebene)
Großzügiger Wohn- und Essbereich mit offenem Raumkonzept
Direkter Zugang auf die Terrasse
Küchenbereich vorbereitet
Alle Anschlüsse vorhanden
Vorbereitung für Kochinsel
Master Bedroom
Offenes Badezimmer
Anschluss für freistehende Badewanne
Walk-in-Shower
Doppelwaschtisch
Zwei weitere Schlafzimmer
Zweites Badezimmer
Insgesamt 3 WCs
Abstellraum & Schrankraum
Ausstattung & Technik
Fußbodenheizung in allen Räumen
Wärmeversorgung über hauseigene Holz-Pelletsanlage
Vorbereitung für hochwertige Bodenbeläge gemäß Käuferwunsch
Badezimmer-Einrichtung und Armaturen im Kaufpreis enthalten
Großformatige Fensterflächen, helle Räume, perfektes Licht
Historisches Gewölbe (im 1. OG des Hauses) als besonderes architektonisches Highlight im Eingangsbereich des Gebäudes
Haus & Gemeinschaftsbereiche
Wellnessbereich mit Sauna
Eigene Weinkellerabteile & Verkostungsraum
Kellerabteil für das Penthouse
2 reservierte Tiefgaragenplätze
Modernes, stilvolles Stiegenhaus
Revitalisierte Bausubstanz mit modernem Neubau kombiniert
Lage – Gumpoldskirchen / Badener Straße
Gumpoldskirchen liegt direkt an der traditionsreichen Thermenregion Weinstraße und zählt zu den begehrtesten Wohnorten im Süden Wiens. Der Ort verbindet mediterranen Weinort-Charme, historische Bauten, bekannte Heurige und eine außergewöhnliche Lebensqualität.
Kultur & Freizeit
Zahlreiche Weingüter, Heurigenkultur, malerische Wanderwege
Nähe zum Anninger und Föhrenwald
Hochwertige Gastronomie und jährliche Kulturveranstaltungen
Verkehrsanbindung
Mit der S-Bahn in ca. 25 Minuten in Wien
Mit dem Auto über die A2 schnell nach Wien oder Baden
Sehr gute regionale Busverbindungen
Bildung & Infrastruktur
Schulen und Kindergärten im Ort
HTL Mödling in unmittelbarer Nähe
Nahversorger, Apotheken, Ärzte im Umfeld
Zahlreiche Freizeit- und Sportmöglichkeiten
Besonderheiten dieses Penthouses
Einzigartige Kombination aus historischer Architektur und modernem Premium-Ausbau
Loft-Atmosphäre mit außergewöhnlicher Raumhöhe
Seltene Dachterrasse mit spektakulärem Weitblick
Direktlift in die Wohnung
Exklusives Wohnen mit maximaler Privatsphäre
Hochwertige Ausstattungsdetails & flexible Fertigstellung nach Käuferwunsch
Kontakt & Besichtigung
Für Fragen, Unterlagen oder eine persönliche Besichtigung steht Ihnen das Verkaufsteam gerne zur Verfügung:
Monika Riener0676 / 834 34 393
Fischer-Ledholder0676 / 834 34 816
Am Freitag, den 24. April 2026 von 14 bis 18 Uhr findet unser Open House statt. Wir freuen uns auf Ihren Besuch!
Eckdaten Objektnr. 141/79955
| Art: | Wohnung - Dachgeschoß |
| Land: | Österreich |
| Alter: | Altbau |
| Kaufpreis: | 1.699.000,00 € |
| Provision: | 3 % |
| Wohnfläche: | 213,00 m² |
| Zimmer: | 4 |
| Bäder: | 2 |
| WC: | 3 |
| Terrassen: | 1 |
| Heizwärmebedarf: | B 33,40 kWh/m²a |
| fGEE: | A 0,81 |
Ausstattung
Zentralheizung, Personenaufzug
Ihre persönliche Beratung
Dieser Makler ist ein offizielles Mitglied des IR – ir.at Mehr Erfahren