Da ist er – Ihr Wiener Wohntraum! Altbaujuwel im letzten Stock mit Balkon & Klima – jetzt zugreifen!

Wohnung , 1050 Wien , Reinprechtsdorfer Straße


Willkommen in Margareten – einem der spannendsten und vielseitigsten Bezirke Wiens. Die Reinprechtsdorfer Straße verbindet urbanes Flair mit echtem Wiener Charakter: U-Bahn, Bus & Citybike in wenigen Minuten erreichbar Supermärkte, Bäckereien, Apotheken & Ärzte ums Eck Charmante Cafés, internationale Gastronomie & der beliebte Naschmarkt in der Nähe Kurze Wege in den 1. Bezirk, nach Mariahilf & zum Schlosspark Schönbrunn Beliebtes Wohngebiet für Kreative, Junge & alle, die das echte Wien schätzen

Beschreibung der Immobilie

Da ist er – Ihr Wiener Wohntraum! Altbaujuwel im letzten Stock mit Balkon & Klima – jetzt zugreifen!

Da ist er – Ihr Wiener Wohntraum! Altbaujuwel im letzten Stock mit Balkon & Klima – jetzt zugreifen!



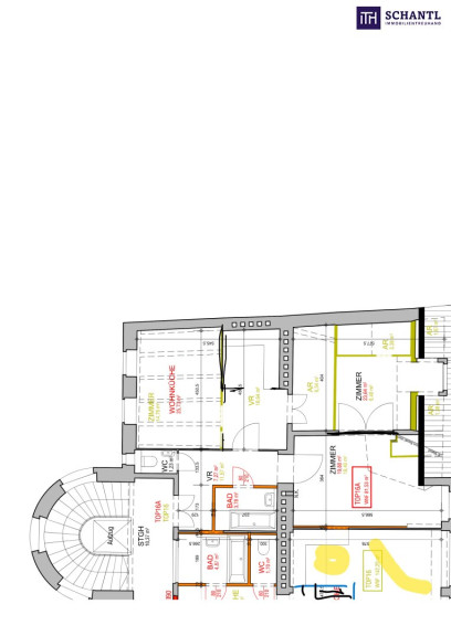
81 m² Traumwohnung mit neuem Balkon, Klimaanlage & Top-Grundriss



Stellen Sie sich vor: Sie öffnen die Türe zu Ihrer neuen Wohnung im letzten Stockwerk – hell, ruhig, mit hohen Decken und dem besonderen Flair eines echten Wiener Altbaus.

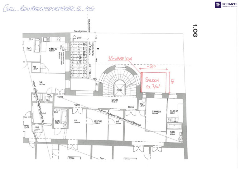
Und das absolute Highlight: Ihre großzügige Wohnküche erhält einen eigenen Balkon Richtung Innenhof – bereits genehmigt und vom Verkäufer errichtet. Ein echtes Stück Lebensqualität, das im Altbau nur selten zu finden ist!



Highlights auf einen Blick:




  • 81,63 m² Wohnfläche im letzten Stock (Lift vorhanden)



  • 2 Schlafzimmer – ideal für Paare, kleine Familien oder Homeoffice



  • Großzügige Wohnküche mit Zugang zum neuen Balkon (ca. 7,5 m², genehmigt & vom Verkäufer errichtet)



  • Separates Badezimmer mit Badewanne & separates WC



  • Charmantes Vorzimmer/Entree mit klassischem Altbaucharme



  • Praktischer Abstellraum für zusätzlichen Stauraum



  • Klimaanlage wird vom Verkäufer eingebaut – inklusive im Kaufpreis!



  • Frisch ausgemalt vor Übergabe



  • Boden wird vom Verkäufer vor Übergabe geschliffen und eingeölt




Kaufpreis: € 530.000,-



(+ ca. € 30.000,- für den Balkon)



Solche Altbauwohnungen mit Balkon im letzten Stock kommen äußerst selten auf den Markt – und sind entsprechend gefragt.



👉 Vereinbaren Sie noch heute Ihren Besichtigungstermin, bevor es jemand anderes tut!
 



Jetzt besichtigen – bevor es zu spät ist!



Bei konkretem Interesse senden wir Ihnen sehr gerne weiterführende Dokumente zu, wie:



o Grundbuchauszug



o Wohnungseigentumsvertrag



o Nutzwertgutachten



o Eigentümerversammlungsprotokoll (Falls vorhanden) etc...



www.schantl-ith.at

Infrastruktur / Entfernungen

Gesundheit
Arzt <250m
Apotheke <250m
Klinik <750m
Krankenhaus <750m

Kinder & Schulen
Schule <250m
Kindergarten <250m
Universität <750m
Höhere Schule <750m

Nahversorgung
Supermarkt <250m
Bäckerei <250m
Einkaufszentrum <1.000m

Sonstige
Geldautomat <250m
Bank <250m
Post <500m
Polizei <500m

Verkehr
Bus <250m
U-Bahn <250m
Straßenbahn <750m
Bahnhof <750m
Autobahnanschluss <3.500m

Angaben Entfernung Luftlinie / Quelle: OpenStreetMap

Eckdaten Objektnr. 291600

Art: Wohnung
Land: Österreich
Baujahr: 1914
Zustand: Gepflegt
Alter: Altbau
Kaufpreis: 530.000,00
Kaufpreis / m²: 6.214,82 €
Wohnfläche: 81,53 m²
Nutzfläche: 85,28 m²
Zimmer: 3
Bäder: 1
WC: 1
Keller: 3,00 m²
Heizwärmebedarf:  D  128,00 kWh/m²a
fGEE:  E  2,51
Immobilie merken Exposé

Ausstattung

Parkett, Fliesen, Gas, Etagenheizung, Wohnküche / offene Küche, Personenaufzug, Badewanne


Immobilie anfragen


Ihre persönliche Beratung

Schantl ITH Immobilientreuhand GmbH

Dejan Ljepoja, MBA

Schantl ITH Immobilientreuhand GmbH

T +43 664 307 00 09

H +43 660 199 20 22