Das schönste Dach Wiens gehört Ihnen – Exquisite Eleganz im exklusiven Penthouse des 1. Bezirks – 3D-Tour ansehen!

Wohnung - Penthouse, 1010 Wien , Schellinggasse


Das luxuriöse Penthouse befindet sich in der renommierten Schellinggasse 12, im Herzen des 1. Wiener Bezirks. Diese exklusive Adresse vereint urbanen Charme mit absoluter Privatsphäre und bietet ein Wohngefühl der Extraklasse – in einer der begehrtesten Lagen Wiens. Weltberühmte Sehenswürdigkeiten wie die Wiener Staatsoper, der Stephansdom oder die Kärntner Straße liegen nur wenige Schritte entfernt und laden zu erstklassigem Shopping, exquisiter Kulinarik und kulturellen Highlights ein. Die luxuriöse Atmosphäre der Umgebung wird durch die Nähe zu renommierten Boutiquen, eleganten Cafés sowie den grünen Oasen des Burggartens und Stadtparks zusätzlich unterstrichen. Dank der hervorragenden Infrastruktur und optimalen Verkehrsanbindung erreichen Sie alle Teile der Stadt mühelos – ob mit öffentlichen Verkehrsmitteln, dem Auto oder zu Fuß. Die Schellinggasse vereint eine ruhige, charmante Atmosphäre mit der pulsierenden Energie der Wiener Innenstadt – die perfekte Lage für anspruchsvolle Stadtliebhaber, die das Besondere suchen.

Beschreibung der Immobilie

Das schönste Dach Wiens gehört Ihnen – Exquisite Eleganz im exklusiven Penthouse des 1. Bezirks – 3D-Tour ansehen!

Das schönste Dach Wiens gehört Ihnen – Exquisite Eleganz im exklusiven Penthouse des 1. Bezirks – 3D-Tour ansehen!





Erleben Sie Wohnen auf höchstem Niveau – Ihr exklusives Penthouse in der Schellinggasse 12, 1010 Wien



Willkommen in einer Residenz, die neue Maßstäbe für luxuriöses Wohnen setzt.

Dieses einzigartige Penthouse im exklusiven 1. Wiener Bezirk vereint beeindruckende Architektur, herausragende Ausstattung und höchsten Wohnkomfort auf einer Wohnfläche von 362 m². Ein privater Aufzug führt Sie direkt in Ihr neues Zuhause, wo Sie ein großzügiger Grundriss, lichtdurchflutete Räume und edle Materialien auf Schritt und Tritt erwarten. Der weitläufige Wohnbereich mit raumhohen Panoramafenstern eröffnet atemberaubende Ausblicke auf die Skyline Wiens.

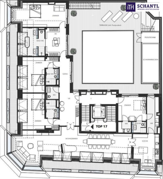
Das absolute Highlight dieses Penthouses ist jedoch die spektakuläre Dachterrasse mit rund 248 m², die einen 360-Grad-Blick über die historischen Dächer der Stadt bietet – inklusive direkter Sicht auf den Stephansdom. Ein privater Swimmingpool mit Gegenstromanlage verleiht diesem exklusiven Rückzugsort zusätzlichen Luxus und Entspannung. Jeder Raum ist mit hochwertigster Ausstattung und raffinierten Details versehen, die den außergewöhnlichen Charakter dieser Immobilie unterstreichen.

Die zentrale Lage im Herzen des 1. Bezirks vereint urbanes Lebensgefühl mit höchster Privatsphäre. Kulturelle Highlights, Gourmetrestaurants, Luxus-Boutiquen und charmante Cafés befinden sich nur wenige Schritte entfernt – Sie wohnen hier an einer der renommiertesten Adressen Wiens. Dieses Penthouse ist mehr als ein Zuhause – es ist ein Statement von Eleganz, Komfort und Prestige.



3D-Tour verfügbar





Eckdaten Penthouse Top 17




  • Wohnfläche: 362,51 m²



  • Obere Terrasse: 115,16 m²



  • Dachterrasse: 133,12 m² mit 360°-Panoramablick, inkl. direkter Sicht auf den Stephansdom



  • Swimmingpool: mit Gegenstromanlage, 17,29 m²



  • Abstellraum: 8,83 m²



  • Privater Weinkeller: 26,50 m²



  • Raumhöhe: 2,65 m bis 3 m



  • Klimaanlage



  • Smart-Home-System



  • Privater Liftzugang



  • Tiefgaragenstellplätze: je € 120.000,00 




Gerne können Sie einen Besichtigungstermin mit uns vereinbaren! Nach Absprache wäre es am Wochenende möglich!





Sie wollen Ihre Immobilie verkaufen? Dann sind Sie bei uns goldrichtig!

Wir sind gerne für Sie da und unterstützen Sie unverbindlich bei der Bewertung Ihrer Immobilie. Mit viel Sorgfalt stellen wir Ihnen alle wichtigen Informationen und Unterlagen zusammen, damit Sie die besten Entscheidungen treffen können.

In Kooperation mit unserer SFI Vermögenstreuhand begleiten wir Sie bei der Verwirklichung Ihres Traumobjekts und unterstützen Sie beim nachhaltigen Vermögensaufbau. Mit unseren erfahrenen Experten sorgen wir dafür, dass Sie die

besten Konditionen erhalten – damit Ihre Träume Wirklichkeit werden!




www.schantl-ith.at in Kooperation mit sfi-invest.com




Die Angaben über das angebotene Objekt erfolgen mit der Sorgfalt eines ordentlichen Immobilienmaklers; für die Richtigkeit solcher Angaben, die auf Informationen der über das Objekt Verfügungsberechtigten beruhen, wird keine Gewähr geleistet!






Der Vermittler ist als Doppelmakler tätig.

Infrastruktur / Entfernungen

Gesundheit
Arzt <250m
Apotheke <250m
Klinik <750m
Krankenhaus <1.000m

Kinder & Schulen
Schule <250m
Kindergarten <750m
Universität <250m
Höhere Schule <250m

Nahversorgung
Supermarkt <250m
Bäckerei <250m
Einkaufszentrum <250m

Sonstige
Geldautomat <250m
Bank <250m
Post <250m
Polizei <750m

Verkehr
Bus <250m
U-Bahn <500m
Straßenbahn <250m
Bahnhof <500m
Autobahnanschluss <3.000m

Angaben Entfernung Luftlinie / Quelle: OpenStreetMap

Eckdaten Objektnr. 291606

Art: Wohnung - Penthouse
Land: Österreich
Zustand: Neuwertig
Alter: Altbau
Kaufpreis: 15.900.000,00
Provision: 3% des Kaufpreises zzgl. 20% USt.
Wohnfläche: 362,51 m²
Zimmer: 6
Bäder: 3
WC: 5
Terrassen: 2
Stellplätze: 4
Keller: 26,50 m²
Heizwärmebedarf:  B  33,83 kWh/m²a
fGEE:  B  0,90
Immobilie merken Exposé

Ausstattung

Parkett, Fernwärme, Fußbodenheizung, Personenaufzug, Bad mit Fenster, Badewanne, Dusche, Kabel/Satelliten-TV, Tiefgarage, Alarmanlage, Hebebühne, Sicherheitskamera, Swimmingpool, Wasch/Trockenraum


Immobilie anfragen


Ihre persönliche Beratung

Schantl ITH Immobilientreuhand GmbH

Ursula Seiwald

Schantl ITH Immobilientreuhand GmbH

T +436645411047

H +43 664 5725475