Beschreibung der Immobilie
Villenflair zwischen Hietzing & Mauer – Wohnen mit Weitblick
Wittgenstein 23 – Villenflair trifft Vorsorgepotenzial zwischen Hietzing und Mauer
In einer der begehrtesten Lagen Wiens, wo Hietzings klassisches Villenflair auf das grüne Lebensgefühl von Mauer trifft, entsteht mit Wittgenstein 23 ein Wohnprojekt mit außergewöhnlichem Potenzial – für Anleger, Vorsorgedenker und Familien, die in bleibende Werte investieren möchten.
Die Wittgensteinstraße zählt zu den traditionsreichsten Adressen Wiens – gesäumt von alten Bäumen, gepflegten Gärten und historischen Villen. Spaziergänge im Lainzer Tiergarten, Radfahrten durch den Wienerwald und der Ausklang des Tages beim Heurigen Wiltschko oder Steinklammer gehören hier zum Lebensstil.
Ein Platz, an dem man investiert, wohnt – und Zukunft gestaltet.
Das Projekt – Architektur mit Wert und Weitblick
Wittgenstein 23 umfasst sieben Eigentumswohnungen und ein Doppelhaus – mit Wohnflächen von 38 bis 156 m² und großzügigen Freiflächen.
Architektonisch verbindet das Projekt klassischen Villencharakter mit moderner Klarheit und nachhaltiger Technik. Lichtdurchflutete Räume, natürliche Materialien und zeitlose Ästhetik schaffen ein Zuhause mit Zukunft.
Highlights:
Tiefgarage mit vorbereiteten E-Ladestationen
Stellplatz optional um € 35.000,-
Kellerabteil pro Einheit
Fahrrad- & Kinderwagenräume im Haus
Geothermie (Heizen/Kühlen) & Photovoltaik – nachhaltig & effizient
Hochwertige Ausstattung mit Fokus auf natürliche Materialien
Wittgenstein 23 steht für Lebensqualität, Wertbeständigkeit und niedrige Betriebskosten – ein Projekt, das Wohnen, Wohlfühlen und Vorsorge auf einzigartige Weise vereint.
Kaufpreise der Vorsorgewohnungen
von EUR 317.775,01- bis EUR 1.437.383,18- netto zzgl. 20% USt.
Zu erwartender Mietertrag
von ca. EUR 17,00 bis EUR 19,50 netto/m²
Provisionsfrei für den Käufer!
Fertigstellung: voraussichtlich 1. Quartal 2028
Bei diesem Angebot handelt es sich um eine Vorsorgewohnung, die zu Vermietungszwecken erworben wird. Der angegebene Kaufpreis versteht sich daher zzgl. 20% USt. Diese Daten sind vorbehaltlich möglicher Änderungen.
Ein detaillierten Überblick finden Sie auf unsere EHL-Projekthomepage: https://www.ehl.at/wohnen/wohnprojekte/wittgensteinstraße 23-1230-wien
Wir weisen darauf hin, dass zwischen dem Vermittler und dem zu vermittelnden Dritten ein familiäres oder wirtschaftliches Naheverhältnis besteht.
Der Vermittler ist als Doppelmakler tätig.
Infrastruktur / Entfernungen
Gesundheit
Arzt <500m
Apotheke <1.000m
Klinik <1.500m
Krankenhaus <1.000m
Kinder & Schulen
Schule <500m
Kindergarten <500m
Universität <3.500m
Höhere Schule <5.500m
Nahversorgung
Supermarkt <1.000m
Bäckerei <1.000m
Einkaufszentrum <2.500m
Sonstige
Geldautomat <500m
Bank <1.000m
Post <1.000m
Polizei <2.500m
Verkehr
Bus <500m
Straßenbahn <500m
U-Bahn <4.000m
Bahnhof <2.000m
Autobahnanschluss <4.000m
Angaben Entfernung Luftlinie / Quelle: OpenStreetMap
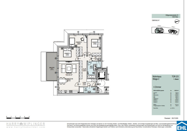
Eckdaten Objektnr. 90828
| Art: | Wohnung |
| Land: | Österreich |
| Baujahr: | 2028 |
| Zustand: | Erstbezug |
| Alter: | Neubau |
| Kaufpreis: | 793.457,94 € |
| Provision: | 3% des Kaufpreises zzgl. 20% USt. |
| Wohnfläche: | 102,03 m² |
| Zimmer: | 4 |
| Bäder: | 2 |
| WC: | 2 |
| Balkone: | 1 |
| Keller: | 4,56 m² |
| Heizwärmebedarf: | B 33,80 kWh/m²a |
| fGEE: | A+ 0,67 |
Ausstattung
Fliesen, Parkett, Erdwärme, Fußbodenheizung, Badewanne, Dusche, Parkplatz
Ihre persönliche Beratung
Dieser Makler ist ein offizielles Mitglied des IR – ir.at Mehr Erfahren
