++NEU++ Augarten-Nähe: 93 m² Altbau – sanierungsbedürftig & voller Möglichkeiten (derzeit Zwei Einheiten)

Wohnung - Etage, 1200 Wien


Beschreibung der Immobilie

++NEU++ Augarten-Nähe: 93 m² Altbau – sanierungsbedürftig & voller Möglichkeiten (derzeit Zwei Einheiten)

Altbaujuwel mit großem Potenzial – ca. 93 m² nur wenige Schritte vom Augarten entfernt
Zwei Einheiten | individuelle Gestaltung | generalsanierungsbedürftig



Sanierung kann nach Absprache durch den Verkäufer erfolgen.




In absolut gefragter Lage des 20. Bezirks, an der Wallensteinstraße / Ecke Streffleurgasse, befindet sich diese klassische Altbauwohnung im 3. Obergeschoss (derzeit ohne Lift) und wartet darauf, neu zum Leben erweckt zu werden.



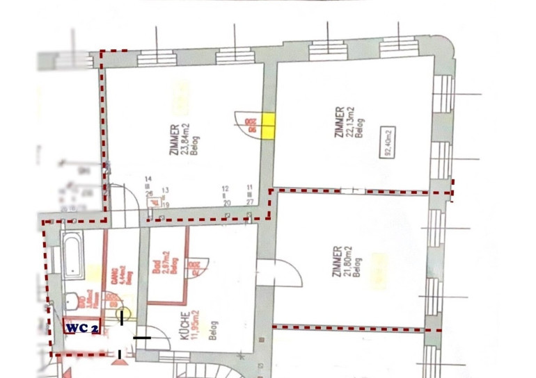
Derzeit besteht die Einheit aus zwei nebeneinanderliegenden Wohnungen, die sich im Zuge einer Sanierung zu einer großzügigen ca. 93 m² großen Eigentumswohnung verbinden lassen – eine seltene Gelegenheit für alle, die ihren Wohntraum individuell gestalten möchten.



Hohe Decken, große Fenster und ein attraktiver Lichteinfall aus zwei Himmelsrichtungen (Süd-West / Süd-Ost) verleihen der Wohnung ihren unverwechselbaren Altbaucharme und schaffen ein helles, freundliches Wohngefühl.



Ein Objekt für Liebhaber klassischer Altbauten, kreative Köpfe und Investoren, die das Potenzial dieser Lage und Immobilie zu schätzen wissen.




Raumaufteilung laut Plan: 




  • 3 große Zimmer ca. 22 -24 m² (Durchbruch möglich)



  • 2 Badezimmer 



  • 2 WCs



  • Zwei Eingänge – kombinierbar 



  • Flexibles Layout für Küche, Homeoffice oder Familiennutzung





Lagevorteile – alles Wichtige in Gehweite:






  • Öffentlicher Verkehr:
      – U6 Jägerstraße // ca. 5 Min. zu Fuß

      – U4 Friedensbrücke // ca. 7 Min. zu Fuß

      – Straßenbahnen 5, 31, 33 



  • Einkauf & Versorgung:
      – Supermärkte (Spar, Billa, Hofer) // BIPA, dm in direkter Umgebung



  • Gesundheit:
      – Hausärzte, Apotheken, Fachärzte im Umkreis



  • Bildung:
      – Kindergärten, Schulen, Gymnasien // HTLs, FHs & Universitäten gut erreichbar



  • Freizeit:
      – Augarten & Donaukanal // grüne Erholung





Top für Eigennutzer



Die perfekte Gelegenheit für alle, die ihren individuellen Wohntraum in zentraler Lage verwirklichen möchten – mit klassischem Altbaugrundriss, sehr guter Infrastruktur und großzügiger Wohnfläche.



Ob als stilvoller Pärchenhaushalt, urbane Stadtwohnung mit Homeoffice oder gemütliches Zuhause für eine kleine Familie: Diese Immobilie bietet die ideale Basis, um Wohnideen nach den eigenen Vorstellungen umzusetzen.





Kaufpreis



Der Kaufpreis für diese potenzielle Wohnung beträgt EUR 329.000.–.







Besichtigung & Kontakt:



VEREINBAREN Sie noch heute einen Besichtigungstermin.





Ihr Ansprechperson: Herr Sadia ALPEROVITS
Telefonnummer: +43 660 380 7232
Email: sa@direktfinanzimmo.at

gerne zur Verfügung!





Firmenname: gb-direkt Finanzberatung & Immobilienhandel GmbH

A-1120 Wien, Aßmayergasse 60/1



Bitte haben Sie Verständnis, dass wir aufgrund der Nachweispflicht gegenüber dem Eigentümer nur Anfragen

mit VOLLSTÄNDIGEN Kontaktdaten (Name, Telefon, Email) beantworten können.





Alle Angaben basieren auf Informationen des Eigentümers. Energieausweis wird noch vorgelegt.



Trotz sorgfältiger Prüfung übernehmen wir keine Gewähr für Vollständigkeit, Richtigkeit und Aktualität dieser Angaben.




*******************************************

Kaufnebenkosten:


3,5 % Grunderwerbsteuer

1,1 % Grundbucheintragungsgebühr 

1,5 % Vertragserrichtungskosten + 20 % MwSt.

3 % Provision + 20 % MwSt.

 

Infrastruktur / Entfernungen

Gesundheit
Arzt <500m
Apotheke <500m
Klinik <1.000m
Krankenhaus <1.500m

Kinder & Schulen
Schule <500m
Kindergarten <500m
Universität <1.000m
Höhere Schule <1.000m

Nahversorgung
Supermarkt <500m
Bäckerei <500m
Einkaufszentrum <1.000m

Sonstige
Geldautomat <500m
Bank <500m
Post <500m
Polizei <500m

Verkehr
Bus <500m
U-Bahn <1.000m
Straßenbahn <500m
Bahnhof <1.000m
Autobahnanschluss <1.500m

Angaben Entfernung Luftlinie / Quelle: OpenStreetMap

Eckdaten Objektnr. 1587/64913

Art: Wohnung - Etage
Land: Österreich
Zustand: Sanierungsbeduerftig
Alter: Altbau
Kaufpreis: 329.000,00
Betriebskosten: 244,27 €
MwSt Gesamt: 24,43 €
Wohnfläche: 93,00 m²
Zimmer: 3
Bäder: 2
WC: 2
Heizwärmebedarf:  C  99,00 kWh/m²a
Immobilie merken Exposé

Ausstattung

Fliesen, Laminatboden, Gas, Etagenheizung, Dusche


Immobilie anfragen


Ihre persönliche Beratung

“gb-direkt” Finanzberatung & Immobilienhandel GmbH

Sadia Alperovits

“gb-direkt” Finanzberatung & Immobilienhandel GmbH

H +43 660 380 72 32