Großzügige Altbauwohnung im 2. Stock mit Potenzial und Klopfbalkon in begehrter Lage!

Wohnung , 1070 Wien,Neubau


Beschreibung der Immobilie

Großzügige Altbauwohnung im 2. Stock mit Potenzial und Klopfbalkon in begehrter Lage!

Die gepflegte Altbauliegenschaft mit gegliedeter Fassade befindet sich in Top Lage des siebenten Bezirkes in der Bandgasse, Nähe Burggasse und Neubaugasse.



Die verkehrsgünstige Anbindung an Bus, U-Bahn, Straßenbahn und Bahnhof ermöglicht es Ihnen, schnell und bequem in die Innenstadt oder andere Stadtteile zu gelangen. Auch für Pendler ist diese Lage ideal, da der Westbahnhof nur wenige Gehminuten entfernt ist. (U3 und U6 - zukünftig auch die U5, Straßenbahnlinie 49, Autobuslinie 48A und 13A).



Doch nicht nur die Anbindung, sondern auch die umliegende Infrastruktur lässt keine Wünsche offen. In unmittelbarer Nähe finden Sie alles, was Sie für den täglichen Bedarf benötigen: Ärzte, Apotheken, Kliniken, Schulen, Kindergärten, Universitäten, höhere Schulen, Supermärkte, Bäckereien und sogar ein Einkaufszentrum. Hier können Sie bequem Ihre Besorgungen erledigen und auch die Freizeitgestaltung kommt nicht zu kurz.




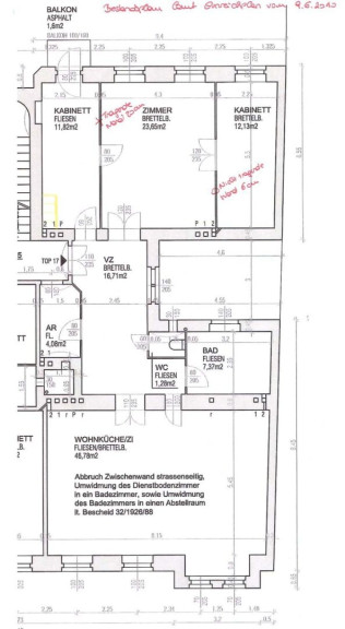
Die Wohnung befindet sich im 1. Stock ohne Lift inkl. Mezzanin (wie 2. Stock) und ist hof- und strassenseitig ausgerichtet - O/W.


Wohnfläche: 123,82 m2 + 1,6 m2 Balkon

Räumlichkeiten derzeit: VR, große Wohnküche (ca. 47 m2 straßenseitig - West), 3 Zimmer (Ausrichtung in den ruhigen Innenhof - OST), Badezimmer mit Dusche und Wanne und Fenster, WC mit Fenster und Waschbecken extra, AR, kleiner Balkon hofseitig





Heizung: Gasetagenheizung mittels Kombitherme



Ausstattung: Holzkastenfenster, Parkett und Flügeltüren





Die Wohnung selbst befindet sich in einem sanierungsbedürftigen Zustand, und bietet Ihnen somit die Möglichkeit Ihre kreativen Ideen und Vorstellungen zu verwirklichen.





Kaufpreis: € 890.000,--



BK brutto: € 201,37 Reparaturrücklage: € 144,68





Energieausweis Gebäude gültig bis: 19.05.2028

Heizwärmebedarf: E 164,64 kWh/m²a

Gesamtenergieeffizienzfaktor: D 2,33





Dieses Objekt wird Ihnen unverbindlich und freibleibend zum Kauf angeboten.

Oben angeführte Angaben basieren auf Informationen und Unterlagen des Eigentümers und sind unsererseits ohne Gewähr.

Als Vermittlungshonorar gelten die allgemeinen Geschäftsbedingungen und die Verordnung für Immobilienmakler des BM für Handel, Gewerbe und Industrie, BGBL. 297/1996. Für den Fall, dass es diesbezüglich zu einem entsprechenden Rechtsgeschäft kommt, verrechnen wir Ihnen eine Vermittlungsprovision von 3 Prozent der Kaufsumme zuzüglich der gesetzlichen Mehrwertsteuer.



Für weitere Informationen bzw. Ihren Besichtigungstermin steht Ihnen unser Herr Musser unter 0699/11105690 oder per Mail unter office@tmu-real.at gerne zur Verfügung!

Infrastruktur / Entfernungen

Gesundheit
Arzt <500m
Apotheke <500m
Klinik <500m
Krankenhaus <1.500m

Kinder & Schulen
Schule <500m
Kindergarten <500m
Universität <500m
Höhere Schule <500m

Nahversorgung
Supermarkt <500m
Bäckerei <500m
Einkaufszentrum <1.000m

Sonstige
Geldautomat <500m
Bank <500m
Post <1.000m
Polizei <500m

Verkehr
Bus <500m
U-Bahn <1.000m
Straßenbahn <500m
Bahnhof <1.000m
Autobahnanschluss <4.500m

Angaben Entfernung Luftlinie / Quelle: OpenStreetMap

Eckdaten Objektnr. 4976/1281

Art: Wohnung
Land: Österreich
Baujahr: 1900
Zustand: Sanierungsbeduerftig
Alter: Altbau
Kaufpreis: 890.000,00
Provision: 3% des Kaufpreises zzgl. 20% USt.
Betriebskosten: 201,37 €
Sonstige Kosten: 144,68 €
Wohnfläche: 123,82 m²
Nutzfläche: 125,42 m²
Zimmer: 4
Bäder: 1
WC: 1
Balkone: 1
Keller: 3,00 m²
Heizwärmebedarf:  E  164,64 kWh/m²a
fGEE:  D  2,33
Immobilie merken Exposé

Ausstattung

Parkett, Fliesen, Gas, Zentralheizung, Bad mit Fenster, Badewanne, Dusche, Kabel/Satelliten-TV


Immobilie anfragen


Ihre persönliche Beratung

TMU-Realitäten

Thomas Musser

TMU-Realitäten

T +43 699/1110 5690

H +43 699 111 056 90

F +43 2687/42 396