ERSTBEZUG „ein viertel grün“: 3-Zimmerwohnung mit Balkon in Top Lage!

Wohnung , 2700 Wiener Neustadt , Stadionstraße


Mitten im Grünen und doch mitten im Leben: Das Wohnprojekt „ein viertel grün“ vereint modernen Wohnkomfort mit einer erstklassigen Lage – direkt gegenüber der Merkurcity in Wiener Neustadt. Hier treffen Ruhe, Natur und Stadtleben aufeinander – und schaffen einen Wohnraum, der keine Wünsche offen lässt. In diesem neuen Stadtquartier finden Sie das passende Zuhause: mit gut durchdachten Grundrissen, großzügigen Freiflächen. Die ausgezeichnete Lage macht Ihren Alltag leichter. Das Stadtzentrum, der Bahnhof sowie die Autobahn A2 sind in wenigen Minuten erreichbar. Zahlreiche Nahversorger, Schulen, Kindergärten und medizinische Einrichtungen befinden sich in unmittelbarer Nähe. Die Merkurcity direkt gegenüber sorgt für kurze Wege beim Einkaufen. Die zweitgrößte Stadt Niederösterreichs bietet nicht nur hervorragende Infrastruktur, sondern auch ein breites Freizeit- und Kulturangebot wie vielfältige Gastronomie, regelmäßige Veranstaltungen, Konzerte und Ausstellungen.

Beschreibung der Immobilie

ERSTBEZUG „ein viertel grün“: 3-Zimmerwohnung mit Balkon in Top Lage!

Willkommen in Ihrem neuen Zuhause in Wiener Neustadt!



In unserem neuen Wohnquartier trifft modernes Wohnen auf naturnahe Umgebung – ideal für junge Familien, Paare sowie Einzelpersonen die Wert auf Lebensqualität, Gemeinschaft und Nachhaltigkeit legen.



Das Projekt bietet besten Wohnkomfort für Familien, direkt im Quartier befindet sich ein moderner Kindergarten. Hier werden Ihre Kleinen optimal betreut - und das ganz in Ihrer Nähe Ihres Wohnortes. 



Nach dem Kindergarten können sich die Kinder noch auf den diversen Spiel- und Bewegungsmöglichkeiten austoben, welche sich über das gesamte Areal erstrecken. 



Ein eigener Quartierstreff sorgt für regen Austausch unter Nachbarn und lässt garantiert neue Freundschaften bei Groß und Klein entstehen. 



Das gesamte Areal ist verkehrsberuhigt und umgeben von Grünflächen. Sie müssen jedoch aufgrund der hervorragenden Lage nicht auf die Annehmlichkeiten der Stadt verzichten. 



Diverse Geschäfte des täglichen Bedarfs befinden sich in unmittelbarer Nähe und sind fußläufig erreichbar (Merkur City).



Hier die Details zu unserem Projekt im Überblick:



  • 42 geförderte Mietwohnungen
  • 2 - 4 Zimmer, ca. 51 m² - 89 m² (nur mehr 3+4 Zimmer verfügbar)
  • Jede Wohnung mit Eigengarten und Terrasse, Balkon oder Dachterrasse 
  • hochwertige Laminatböden
  • gut durchdachte Grundrisse
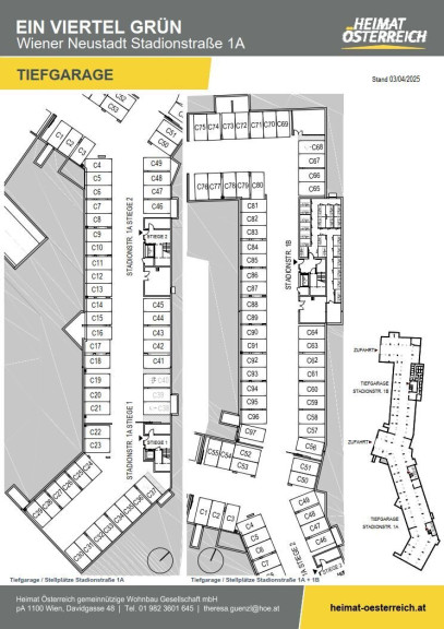
  • Tiefgaragenstellplatz, bereits in der Miete inkludiert
  • Fahrrad- und Kinderwagenräume
  • Einlagerungsräume
  • Personenaufzug
  • Müllraum
  • effiziente Photovoltaikanlage am Dach
  • kontrollierte Wohnraumlüftung mit Wärmerückgewinnung und zentraler Lüftungsanlage
  • HWB Wert ca. 26,26 kWh/m²a, fGEE ca. 0,63
  • beziehbar ab 1.4.2026


Anm.: Fotos mithilfe von Virtual Staging eingerichtet (Musterfotos)



Hier geht es zu weiteren Mietwohnungen: Geförderte Mietwohnungen "ein viertel grün"



Willkommen in Ihrem neuen Zuhause!



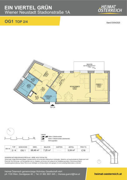
Diese exquisite Wohnung im ersten Obergeschoss kombiniert modernes Wohnen mit einer ausgezeichneten Lage.



Mit einer Fläche von 68,48 m² bietet diese erstklassige 3-Zimmer-Wohnung ausreichend Platz für Ihre individuellen Wohnbedürfnisse. Ob als Paar, Familie oder für Singles – hier findet jeder seinen Rückzugsort. 



Die Wohnung begrüßt Sie mit einem hellen und einladenden Wohnbereich, der mit elegantem Laminatboden ausgestattet ist und Ihnen ein Gefühl von Wärme und Komfort vermittelt.



Ein besonderes Highlight ist der Balkon mit ca. 7m², auf dem Sie die frische Luft und die Sonne genießen können. Stellen Sie sich vor, wie Sie hier entspannte Stunden verbringen, Ihre Freunde zu einem Grillabend einladen oder einfach das Sonntagsfrühstück mit der Familie genießen! 



Ein praktischer Abstellraum ist direkt vom Flur aus begehbar. Ein Zimmer ist ebenfalls zentral vom Flur aus begehbar, das zweite Zimmer erreichen Sie direkt vom Wohnzimmer aus – ideal zur flexiblen Nutzung als Schlaf-, Kinder- oder Arbeitszimmer.



Das Badezimmer ist modern verfliest und mit einer Badewanne, einem Handwaschbecken sowie einem Waschmaschinenanschluss ausgestattet. Das WC ist separat angelegt und neben dem Badezimmer vorzufinden.



Ein privates Kellerabteil bietet zusätzlichen Stauraum. Für Ihren PKW steht ein Tiefgaragenstellplatz zur Verfügung – dieser ist bereits in der Miete inkludiert!



Befristung: unbefristet, 1 Jahr Kündigungsverzicht, 3 Monate Kündigungsfrist

Bezug: beziehbar ab 1.4.2026

Energiekennzahlen: Der Heizwärmebedarf beträgt ca. 26,26 kWh/m²a, Klasse B, und der Gesamtenergieeffizienz-Faktor ca. 0,63, Klasse A+.



Monatliche Miete: € 895,47 inkl. BK und USt.

Einmaliger Finanzierungsbeitrag: € 23.968,00



Diese einmalige Gelegenheit sollten Sie sich nicht entgehen lassen. Erleben Sie selbst, wie viel Lebensqualität und Komfort Ihnen diese Wohnung in Wiener Neustadt zu bieten hat!





Hier geht es zu weiteren Mietwohnungen:
Geförderte Mietwohnungen - ein viertel grün



Anm.: Fotos mithilfe von Virtual Staging eingerichtet



Noch nichts gefunden? Wir informieren Sie über geeignete Immobilienangebote noch vor allen anderen.
Legen Sie jetzt Ihren individuellen Suchagenten unter folgendem Link an. Wir schicken Ihnen passende Immobilien exklusiv vorab zu.
Suchagent anlegen - https://heimat-oesterreich.service.immo/registrieren/de

Infrastruktur / Entfernungen

Gesundheit
Arzt <1.000m
Apotheke <250m
Klinik <2.500m
Krankenhaus <1.000m

Kinder & Schulen
Schule <250m
Kindergarten <500m
Höhere Schule <1.750m
Universität <2.000m

Nahversorgung
Supermarkt <500m
Bäckerei <750m
Einkaufszentrum <250m

Sonstige
Bank <750m
Geldautomat <750m
Post <750m
Polizei <750m

Verkehr
Bus <250m
Autobahnanschluss <3.000m
Bahnhof <1.500m
Flughafen <2.250m

Angaben Entfernung Luftlinie / Quelle: OpenStreetMap

Eckdaten Objektnr. 5024

Art: Wohnung
Land: Österreich
Baujahr: 2025
Zustand: Erstbezug
Alter: Neubau
Gesamtmiete: 895,47
Kaltmiete (netto): 895,47 €
Kaltmiete: 895,47 €
Wohnfläche: 68,48 m²
Zimmer: 3
Bäder: 1
WC: 1
Balkone: 1
Stellplätze: 1
Keller: 3,24 m²
Heizwärmebedarf:  B  26,26 kWh/m²a
fGEE:  A+  0,63
Immobilie merken Exposé

Ausstattung

Fliesen, Laminatboden, Solarenergie, Personenaufzug, Badewanne, Tiefgarage


Immobilie anfragen


Ihre persönliche Beratung

Theresa Günzl

Heimat Österreich gemeinnützige Wohnungs- und Siedlungsgesellschaft m.b.H.

T +431 9823601 645

H 0676 3717805