Leben und Arbeiten unter einem Dach – großzügige Gewerbefläche trifft vier Wohneinheiten

Gastgewerbe , 4563 Micheldorf in Oberösterreich


Die Immobilie befindet sich in Ottsdorf, einem Ortsteil von Micheldorf. Die Lage verbindet ruhiges Wohnen in naturnaher Umgebung mit einer gleichzeitig ausgezeichneten Infrastruktur. Familien finden in unmittelbarer Nähe alle wichtigen Einrichtungen des täglichen Bedarfs: Kindergarten, Schulen, Ärzte, Nahversorger und die Bezirkshauptstadt Kirchdorf an der Krems sind in wenigen Minuten mit dem Auto erreichbar. Auch Freizeitangebote wie Rad- und Wanderwege im Kremstal oder das Naherholungsgebiet rund um die Krems sorgen für eine hohe Lebensqualität. Besonders attraktiv ist der Standort auch für den Gastronomiebetrieb im Erdgeschoss: Das Wirtshaus liegt direkt an der beliebten Strecke auf den Ziehberg, die von zahlreichen Wanderern, Radfahrern und Ausflugsgästen aus Kirchdorf und Umgebung genutzt wird. Viele kehren auf dem Heimweg von einer Tour hier ein. Zusätzlich wird die Lage durch den Durchzugsverkehr in Richtung Gmunden und das Salzkammergut stark frequentiert. Damit verbindet das Haus eine treue lokale Kundschaft mit einem stetigen Zustrom an Ausflugsgästen – ein klarer Vorteil für die gastronomische Nutzung. Die gute Verkehrsanbindung mit Bahnhof, Bus und der nahen Pyhrnautobahn (A9) macht die Liegenschaft zudem auch für Pendler und Gäste von außerhalb schnell und unkompliziert erreichbar.

Beschreibung der Immobilie

Leben und Arbeiten unter einem Dach – großzügige Gewerbefläche trifft vier Wohneinheiten

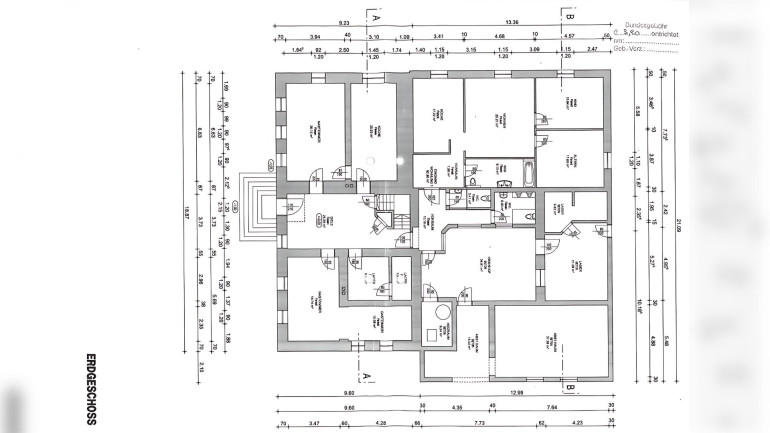
Dieses Objekt bietet eine seltene Kombination: Wohnen, Arbeiten und Gastgebersein in einem Haus. Die großzügige Geschäftsfläche im Erdgeschoss – bisher als Gastronomie genutzt – bildet das Herzstück dieser Immobilie. Stellen Sie sich vor, wie Sie den Raum nach Ihren Vorstellungen neu interpretieren: als Café oder Bistro, als helle Praxis, als inspirierendes Studio, als Workshopraum, Büro oder Treffpunkt für Ihre Community.



Die bestehende technische Infrastruktur schafft dafür ein stabiles Fundament und ermöglicht unterschiedliche Konzepte – von kleinen kulinarischen Projekten über kreative Angebote bis hin zu gewerblichen oder sozialen Initiativen.



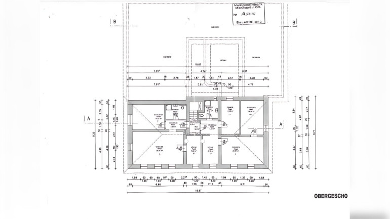
Darüber hinaus bietet das Haus zwei zusätzliche Wohneinheiten, die Sie selbst nutzen, für Mitarbeiter:innen bereitstellen oder vermieten können. Diese Kombination macht das Objekt besonders attraktiv für Menschen, die Wohnen und Selbstständigkeit harmonisch verbinden möchten.



Das Haus wurde laufend gepflegt und modernisiert und präsentiert sich in einem sehr ordentlichen Zustand. Die Lage sorgt für gute Sichtbarkeit, leichte Erreichbarkeit und ausreichend Parkmöglichkeiten.



Ob als Zuhause mit integrierter beruflicher Vision, als Basis für Ihr Herzensprojekt oder als Standort für Ihr Unternehmen – hier können Sie Ihre Vorstellungen unmittelbar umsetzen und ein Umfeld schaffen, das zu Ihnen passt.



Ausstattung im Überblick



  • Bodenbeläge: Laminat, Steinböden und Fliesen
  • Heizung: moderne Pelletsanlage (Umstellung 2015, 5-6 Tonnen Speicherbehälter)
  • Küche: neu saniert mit neuem Lüftungssystem und Küchengeräten
  • Wohnungen renoviert und laufend in Stand gehalten
  • Fenster: dreifach verglaste Kunststofffenster
  • Lüftungssystem und Stromleitungen im Gastrobereich 2022 erneuert
  • Vollwärmeschutz auf der Wohnseite ca. 2018
  • Sat-Anschluss vorhanden




Zusatzinformationen:



Das Haus ist bewohnt, das Restaurant aber aktuell nicht geführt.



Die Wohnungen und das Restaurant kann mit Hilfe der getrennten Ablesemöglichkeiten getrennt bewohnt bzw. vermietet werden.



Die Angaben basieren auf Informationen und Unterlagen der Eigentümer und sind ohne Gewähr.




Der Vermittler ist als Doppelmakler tätig.

Infrastruktur / Entfernungen

Gesundheit
Arzt <3.000m
Apotheke <3.000m
Klinik <3.000m
Krankenhaus <3.500m

Kinder & Schulen
Schule <3.000m
Kindergarten <6.500m

Nahversorgung
Supermarkt <2.500m
Bäckerei <3.000m

Sonstige
Bank <3.000m
Geldautomat <3.000m
Polizei <3.000m
Post <3.000m

Verkehr
Bus <500m
Bahnhof <2.500m
Autobahnanschluss <5.000m
Flughafen <3.000m

Angaben Entfernung Luftlinie / Quelle: OpenStreetMap

Eckdaten Objektnr. 7446/525

Art: Gastgewerbe
Land: Österreich
Baujahr: 1973
Zustand: Gepflegt
Alter: Altbau
Kaufpreis: 750.000,00
Provision: 3% des Kaufpreises zzgl. 20% USt.
Wohnfläche: 254,00 m²
Nutzfläche: 420,00 m²
Grundstücksfl.: 2.634,00 m²
Zimmer: 9
Bäder: 4
WC: 6
Terrassen: 1
Stellplätze: 8
Heizwärmebedarf:  E  158,00 kWh/m²a
fGEE:  C  1,73
Immobilie merken Exposé

Ausstattung

Fliesen, Laminatboden, Steinboden, Fußbodenheizung, Zentralheizung, Einbauküche, Ostbalkon, Westbalkon, Dusche, Bad mit Fenster, Badewanne, Kabel/Satelliten-TV, Parkplatz, Gastterrasse, Rampe


Immobilie anfragen


Ihre persönliche Beratung

PRIMO

Roman Oberndorfinger

PRIMO

T +43 660 4816849