EISKALT REDUZIERT - 6,5% WENIGER ZAHLEN, WARM WOHNEN!

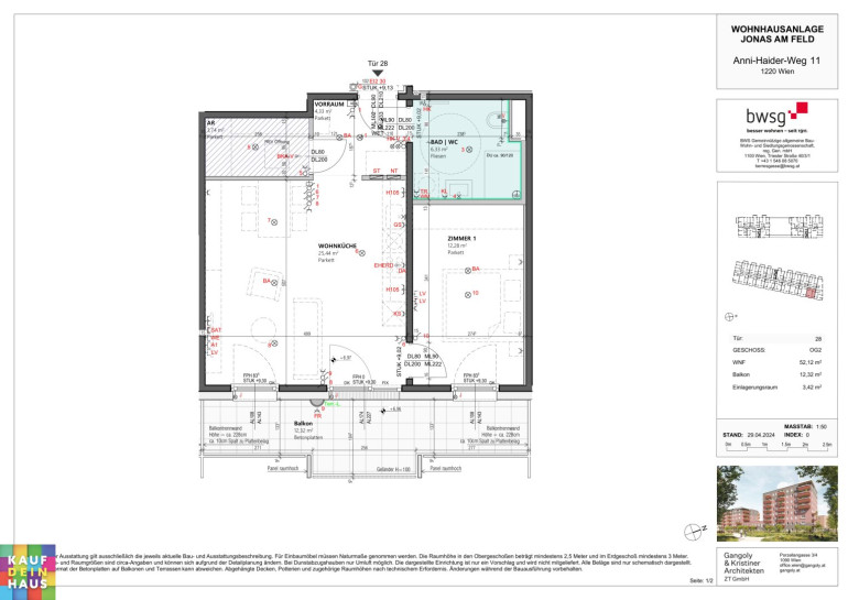
Wohnung , 1220 Wien , Anni-Haider-Weg 11


NÄHE HIRSCHSTÄTTNER BADETEICH

Beschreibung der Immobilie

EISKALT REDUZIERT - 6,5% WENIGER ZAHLEN, WARM WOHNEN!

EISKALT REDUZIERT - 6,5% WENIGER ZAHLEN, WARM WOHNEN!



ZUSÄTZLICH GIBT ES PRO ZIMMER EINEN € 1000,- GUTSCHEIN VON XXXLUTZ!





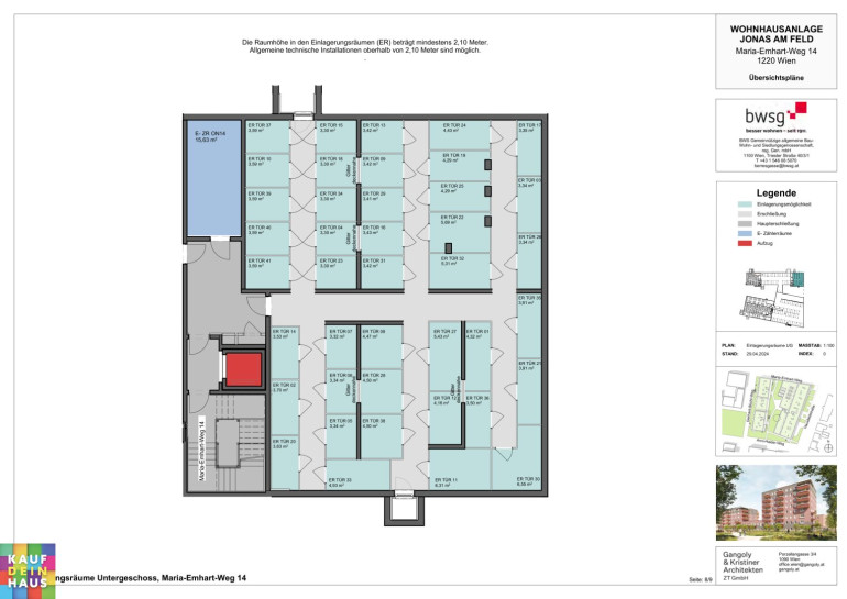
WOHNEN IM JONAS AM FELD - Bauplatz J, Anni-Haider-Weg 9+11; Maria-Emhart-Weg 14, 1220 Wien




In sehr guter Lage, wenige Minuten zu Fuß vom Hirschstettner Badesee, entstehen hier 148 freifinanzierte Eigentumswohnungen



In verschiedenen Größen 1 bis 5 Zimmer-Wohnungen - perfekte Grundrisse!




Es erwartet Sie ausgezeichnete Infrastruktur und ein Nahversorger direkt im Objekt.


Es sind 73 Tiefgaragenplätze vorhanden - Kaufpreis pro Stellplatz € 29.345,75. Mit dem Auto erreichen Sie die City in ca. 20 Minuten, mit den Öffis in nur ca. 30 Minuten.



Am angrenzenden Bildungscampus Berresgasse finden Sie vom Kindergarten bis zur Mittelschule ausgezeichnete Bildungseinrichtungen für Ihren Nachwuchs.

Infrastruktur / Entfernungen

Gesundheit
Arzt <600m
Apotheke <450m
Klinik <1.325m
Krankenhaus <3.250m

Kinder & Schulen
Schule <250m
Kindergarten <375m
Universität <2.525m
Höhere Schule <2.525m

Nahversorgung
Supermarkt <375m
Bäckerei <675m
Einkaufszentrum <2.200m

Sonstige
Bank <750m
Geldautomat <400m
Post <775m
Polizei <1.350m

Verkehr
Bus <100m
U-Bahn <1.025m
Straßenbahn <350m
Bahnhof <1.150m
Autobahnanschluss <1.825m

Angaben Entfernung Luftlinie / Quelle: OpenStreetMap

Eckdaten Objektnr. 2957

Art: Wohnung
Land: Österreich
Baujahr: 2025
Zustand: Erstbezug
Alter: Neubau
Kaufpreis: 264.112,00
Betriebskosten: 64,26 €
MwSt Gesamt: 7,32 €
Wohnfläche: 52,12 m²
Zimmer: 2
Balkone: 1
Heizwärmebedarf:  B  27,00 kWh/m²a
fGEE: 0,74
Immobilie merken Exposé

Ausstattung

Fliesen, Parkett


Immobilie anfragen


Ihre persönliche Beratung

KDH Immobilien GmbH

Simone Unger-Ullmann

KDH Immobilien GmbH

T +43 660 340 32 29