Provisionsfrei: Exklusive 110m² DG-Wohnung + 37m² Terrassen in Toplage - 1070 Wien

Wohnung - Dachgeschoß, 1070 Wien


Neubaugasse

Beschreibung der Immobilie

Provisionsfrei: Exklusive 110m² DG-Wohnung + 37m² Terrassen in Toplage - 1070 Wien

Klimatisierte 110m² DG-Maisonette + 37m² Terrassen und Einbauküche! 



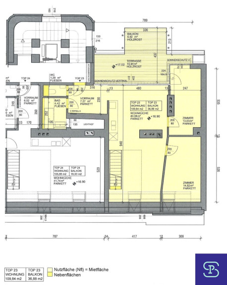
Vom Architekten Ende 2015 aufwendig ausgebaute und hochwertig ausgestattete Dachwohnung in einem repräsentativen Altbau-Stilhaus in Toplage. Die Wohnung verfügt über 2 Wohnebenen im DG (mit Lift) und besteht aus 4 Zimmern, davon 3 zentral begehbare Zimmer, 1 großer Wohn-Essbereich mit offener Küche, 2 Bäder (1x mit WC), Vorraum, 1 separates WC sowie 2 große Terrassen mit 23m² und 14m²,.



Ausstattung: Designerküche mit hochwertigen Geräten inkl. Geschirrspüler, dunkle Echtholzparketten, Gasetagenheizung mit Brennwerttherme, Klimaanlage, hochwertige Badezimmerausstattung mit Wanne und Dusche, Fenster mit Mehrfachverglasung und Sonnenschutz, Lift, Telekabel- und Internet-Vorbereitung, Sprechanlage, Fahrradraum,.



Schöne, moderne Wohnung mit besonderem Flair, im besten Teil der Neubaugasse, in unmittelbarer Nähe zur Mariahilfer Straße. Hervorragende Infrastruktur mit allen Einkaufsmöglichkeiten, zahlreichen Lokalen und bester öffentlicher Verkehrsanbindung. Die Wohnung wird vor der Neuvermietung nochmals adaptiert und aufgefrischt! 



Die Wohnung wird ab 15.2.2026 in befristeter Hauptmiete (5Jahre+) vermietet.

Gesamtmiete inkl. Bk, Lift, Fensterreinigung und 10% USt. € 2.350,-
(HMZ € 1.824,37 + Bk € 271,54 + Lift € 39,54 + 10% USt. € 213, 50 + Manip.€ 1,-)

Kaution € 7.050,-



KONTAKT: Frau Anna Sitarz  0664 403 83 83
Email: as@sitarz.at

 



Besuchen Sie für unsere weiteren Angebote bitte auch unsere Homepage: www.sitarz.at


Der Immobilienmakler erklärt, dass er – entgegen dem in der Immobilienwirtschaft üblichen Geschäftsgebrauch des Doppelmaklers – einseitig nur für den Vermieter tätig ist.

Infrastruktur / Entfernungen

Gesundheit
Arzt <500m
Apotheke <500m
Klinik <500m
Krankenhaus <1.000m

Kinder & Schulen
Schule <500m
Kindergarten <500m
Universität <500m
Höhere Schule <1.000m

Nahversorgung
Supermarkt <500m
Bäckerei <500m
Einkaufszentrum <500m

Sonstige
Geldautomat <500m
Bank <500m
Post <500m
Polizei <500m

Verkehr
Bus <500m
U-Bahn <500m
Straßenbahn <500m
Bahnhof <500m
Autobahnanschluss <4.500m

Angaben Entfernung Luftlinie / Quelle: OpenStreetMap

Eckdaten Objektnr. 7693

Art: Wohnung - Dachgeschoß
Land: Österreich
Baujahr: 2015
Zustand: Neuwertig
Alter: Altbau
Gesamtmiete: 2.349,99
Kaltmiete (netto): 1.824,37 €
Kaltmiete: 2.136,45 €
Provision: Gemäß Erstauftraggeberprinzip bezahlt der Abgeber die Provision.
Betriebskosten: 271,54 €
MwSt Gesamt: 213,54 €
Wohnfläche: 110,00 m²
Zimmer: 4
Bäder: 2
WC: 2
Balkone: 1
Terrassen: 2
Heizwärmebedarf:  C  62,30 kWh/m²a
fGEE:  C  1,20
Immobilie merken Exposé

Ausstattung

Fliesen, Parkett, Gas, Etagenheizung, Einbauküche, Wohnküche / offene Küche, Personenaufzug, Bad mit Fenster, Badewanne, Dusche, Kabel/Satelliten-TV


Immobilie anfragen


Ihre persönliche Beratung

Sitarz & Partner Immobilien GmbH

Anna Sitarz

Sitarz & Partner Immobilien GmbH

T +43 664 403 83 83