EXKLUSIVES NEUBAUPROJEKT IM ZENTRUM VON NEUNKIRCHEN!

Zinshaus Renditeobjekt , 2620 Neunkirchen


Wenige Meter vom Hauptplatz in Neunkirchen entfernt

Beschreibung der Immobilie

EXKLUSIVES NEUBAUPROJEKT IM ZENTRUM VON NEUNKIRCHEN!

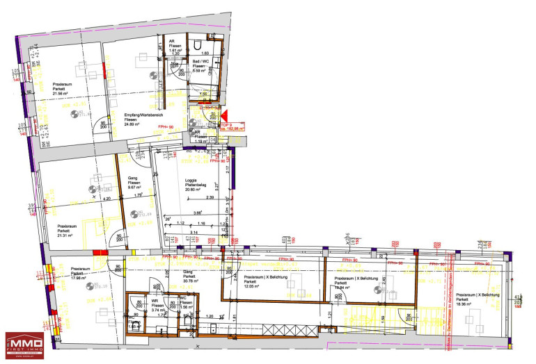
TOP Ordinationsfläche im Zentrum von Neunkirchen



Neunkirchen ist dank seiner historischen, sehr gut erhaltenen Altstadt nicht nur als kulturelles und kulinarisches Zentrum bekannt, sondern aufgrund seiner speziellen Lage am Fuße der Wiener Alpen auch ein Ort der Gesundheit und der Genesung.



Es beherbergt nicht zuletzt deswegen das Landesklinikum und das Kinderambulatorium Neunkirchen.



Ab 2025 soll hier ein neues Ärztezentrum entstehen und Sie können ein Teil davon sein!



Nur wenige Meter vom charmanten Hauptplatz entfernt, erstrahlt ein Haus nach umfassender Sanierung bald im neuen Glanz und bietet unter anderem moderne Wohnungen und ein Ärztezentrum.



Im Erdgeschoss und direkt von der ruhigen Straße zugänglich befinden sich zwei ebenerdige Praxisräume mit 30 und 64 m² und großzügigen Auslagenflächen.



Das zweite OG wurde bereits an einen Kinderarzt verkauft, weswegen sich tolle Synergiemöglichkeiten ergeben.



Die Ordinationsfläche im 1. OG umfasst 183m² und 21m² Loggia.



Die Fläche ist sowohl über das Treppenhaus als auch durch den ebenerdig zu begehenden Aufzug zu erreichen.



Die aktuelle Planung sieht ausreichend Nasszellen sowie Empfangsbereiche vor.



Die Praxisräume sind teils auf die ruhige Straße, teils in den Innenhof orientiert, was für ausgesprochene Ruhe sorgt.



Bitte beachten Sie, dass beim vorliegenden Mietpreis die Ausbaustufe "Belagsfertig" angeboten wird.



Sie haben also noch die Möglichkeit, die Raumaufteilung, die Beläge, die Nasszellen, usw. nach Ihren eigenen Vorstellungen zu gestalten.



Auf Anfrage lassen wir Ihnen gerne einen detaillierten Lagebericht zukommen.



Bei den angezeigten Bildern handelt es sich um Symbolbilder.



Für genauere Informationen, weitere Fragen und Besichtigungen steht Ihnen Herr Mario Moisi, MA, MBA jederzeit gerne unter +43 676 844 752 200 oder unter office@1mmo.at zur Verfügung!



Über die Vermittlungstätigkeit hinaus unterstützen wir Sie gerne auch bei der Kauf- bzw. Mietvertragsprüfung, Wohnungsübergabe, Strom- und Gasummeldungen, etc. .



Unsere Zusatzleistungen für Sie auf einem Blick: Zusatzleistungen - 1MMO MK GmbH & Co KG - FIRST IMMO



Weitere interessante Angebote finden Sie auf www.1mmo.at



Folgen Sie uns auf Social Media:

Facebook: www.facebook.com/1mmo.at 
Instagram: www.instagram.com/firstimmo
Youtube: www.youtube.com/channel/UCH5UJnC6GRldivaBe4eBaMA



Obige Angaben basieren auf Informationen und Unterlagen des Eigentümers. Der guten Ordnung halber möchten wir festhalten, dass im Falle eines Abschlusses mit Ihnen oder einem von Ihnen namhaft gemachten Dritten unser Honorar (lt. Honorarverordnung für Immobilienmakler, BGBl. 262 und 297/1996) 3% des Verkaufspreises zzgl. der gesetzlichen MwSt. bzw. 3 Bruttomonatsmieten zzgl. der gesetzlichen MwSt. beträgt. Wir weisen auf ein wirtschaftliches Naheverhältnis zum Eigentümer hin. Es gelten unsere allgemeinen Geschäftsbedingungen. Irrtum vorbehalten.



Datenschutzinformation:

Die 1MMO MK GmbH & Co KG verarbeitet personenbezogene Daten nach den datenschutzrechtlichen Bestimmungen.

Weitergehende Informationen sind unter www.1mmo.at/de/datenschutzinformation zu finden.


Hinweis gemäß Energieausweisvorlagegesetz: Ein Energieausweis wurde vom Eigentümer bzw. Verkäufer, nach unserer Aufklärung über die generell geltende Vorlagepflicht, sowie Aufforderung zu seiner Erstellung noch nicht vorgelegt. Daher gilt zumindest eine dem Alter und der Art des Gebäudes entsprechende Gesamtenergieeffizienz als vereinbart. Wir übernehmen keinerlei Gewähr oder Haftung für die tatsächliche Energieeffizienz der angebotenen Immobilie.


Wir weisen darauf hin, dass zwischen dem Vermittler und dem zu vermittelnden Dritten ein familiäres oder wirtschaftliches Naheverhältnis besteht.


Der Vermittler ist als Doppelmakler tätig.

Infrastruktur / Entfernungen

Gesundheit
Arzt <500m
Apotheke <500m
Krankenhaus <1.000m

Kinder & Schulen
Schule <500m
Kindergarten <1.500m

Nahversorgung
Supermarkt <500m
Bäckerei <500m
Einkaufszentrum <500m

Sonstige
Bank <500m
Geldautomat <500m
Polizei <500m
Post <500m

Verkehr
Bus <500m
Autobahnanschluss <2.000m
Bahnhof <1.500m

Angaben Entfernung Luftlinie / Quelle: OpenStreetMap

Eckdaten Objektnr. 145075

Art: Zinshaus Renditeobjekt
Land: Österreich
Baujahr: 2025
Zustand: Erstbezug
Alter: Neubau
Gesamtmiete: 2.678,00
Kaltmiete (netto): 2.328,00 €
Kaltmiete: 2.678,00 €
Miete / m²: 12,00 €
Provision: 3 Bruttomonatsmieten zzgl. 20% USt.
Betriebskosten: 350,00 €
Nutzfläche: 194,00 m²
Bürofläche: 183,00 m²
Immobilie merken Exposé

Ausstattung

Fliesen, Parkett


Immobilie anfragen


Ihre persönliche Beratung

1MMO MK GmbH & Co KG - FIRST IMMO

Mario Moisi, MA, MBA

1MMO MK GmbH & Co KG - FIRST IMMO

H +43 676 844 752 200