Renovieren / sanieren in Ruhelage. 1 Zimmer, kl. Küche, Dusche und WC.

Wohnung , 1170 Wien


Beschreibung der Immobilie

Renovieren / sanieren in Ruhelage. 1 Zimmer, kl. Küche, Dusche und WC.

Kleine 1 Zimmer Variante mit möglicher Küche im Vorraum oder als Wohnküche ausgelegt, wenn dies bevorzugt wird. Eine Dusche und WC liegen im extra Raum im vorderen Bereich. 



Je nachdem, ob für Eigennutzung oder Vermietung. Lt. Abgeber auch als Praxis / Ordination oder Behandlungsraum für Physiotherapie o.ä. zu verwenden.



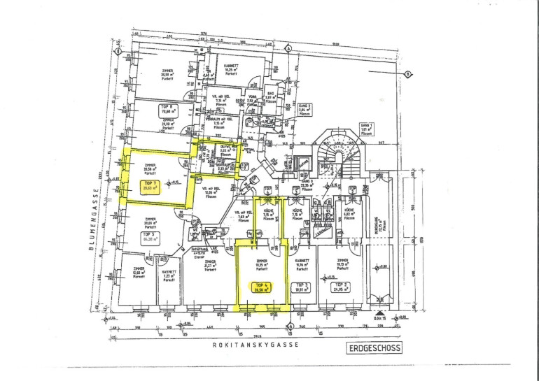
Am beigefügten Grundriss können Sie die abgebildete Top Nr. 7 (ca. 28,63 m², lt. Plan) sehen.



Objekt ist mindestens renovierungs-/ teils sanierungsbedürftig.





Gesamt gibt es auch noch ein Paket von Wohnungen in verschiedenen Lagen von Wien.



Nutzen Sie die Gelegenheit und schauen Sie es sich an.



Öffentlich ist die BIM-Linie 9, 2 und 43 nur wenige Meter entfernt und die U6 mit dem AKH auch in der Nähe. Zudem mit dem Hernalser Bahnhof und der S45 schnell und bequem durch die halbe Stadt. Nahversorgung genau wie Schulen, Kindergärten, Restaurants und Cafés, etc. alles in der Umgebung zu finden.

Zur Erholung bietet der Lidlpark, in direkter Nachbarschaft, eine feine Gelegenheit. Und sollten Sie gerne ein bisschen Sport treiben, haben Sie am Diepoldplatz in ca. 150 m Entfernung die Möglichkeit.





Ihr Ansprechpartner vor Ort, für Fragen und Besichtigungen ist: Ing. Carsten Mähler, +43 664 211 48 10 oder c.maehler@remax-first.at





Nebenkosten bei Kauf:

3,5% Grunderwerbsteuer; 1,1% Grundbucheintrag; ca. 1-3% zuzügl. Ust. für den Notar zur Vertragserrichtung, Veranlassung des GB-Eintrages; 3% Vermittlungsprovision zuzügl. Ust. die bei Annahme des Kaufanbots direkt fällig wird, da wir in Vorleistung treten (Begleitung bis zur KV-Unterzeichnung und Übergabe selbstverständlich inkl.), ggf. Finanzierungskosten und Gebühren der Bank oder des Kreditinstitutes, sofern erforderlich.





Doppelmaklertätigkeit:

Wir (die REM Immobilienmakler GmbH & Co. KG) informieren Sie darüber, dass wir bei diesem Objekt eine Doppelmaklertätigkeit ausüben

(§ 5 Abs. 3 MaklerG).





wirtschaftliches Naheverhältnis:

Zudem weisen wir darauf hin, dass zum Abgeber ein wirtschaftliches Naheverhältnis besteht (30b Abs 1 KschG und §6 Abs. 4 MaklerG).





Alle Angaben beruhen auf Informationen der Eigentümerschaft sowie der Hausverwaltung und sind ohne Gewähr.!





Falls eine Finanzierung erforderlich ist, prüfen sie bitte vorab die Möglichkeiten mit nachstehenden Kriterien:

> min. 20% Eigenmittelanteil vom Kaufpreis oder überdurchschnittliches Einkommen

> die Höhe der Tilgungsrate darf max. 40% des Haushaltseinkommens betragen

> max. 35 Jahre Laufzeit der Finanzierung

> lassen Sie dies bitte vorab von der Bank ihres Vertrauens prüfen, danke vielmals



 


Wir weisen darauf hin, dass zwischen dem Vermittler und dem zu vermittelnden Dritten ein familiäres oder wirtschaftliches Naheverhältnis besteht.


Der Vermittler ist als Doppelmakler tätig.

Infrastruktur / Entfernungen

Gesundheit
Arzt <500m
Apotheke <500m
Klinik <500m
Krankenhaus <1.500m

Kinder & Schulen
Schule <500m
Kindergarten <500m
Universität <2.000m
Höhere Schule <1.000m

Nahversorgung
Supermarkt <500m
Bäckerei <500m
Einkaufszentrum <500m

Sonstige
Geldautomat <500m
Bank <500m
Post <500m
Polizei <500m

Verkehr
Bus <500m
U-Bahn <1.000m
Straßenbahn <500m
Bahnhof <1.000m
Autobahnanschluss <3.500m

Angaben Entfernung Luftlinie / Quelle: OpenStreetMap

Eckdaten Objektnr. 1609/44004

Art: Wohnung
Land: Österreich
Baujahr: 1905
Zustand: Voll_saniert
Möbliert: Teil
Alter: Altbau
Kaufpreis: 121.000,00
Provision: 3% des Kaufpreises zzgl. 20% USt.
Betriebskosten: 65,06 €
MwSt Gesamt: 6,51 €
Wohnfläche: 28,63 m²
Zimmer: 1
Bäder: 1
WC: 1
Keller: 2,00 m²
Heizwärmebedarf:  D  101,70 kWh/m²a
fGEE:  D  2,16
Immobilie merken Exposé

Ausstattung

Gas, Etagenheizung, Personenaufzug


Immobilie anfragen


Ihre persönliche Beratung

RE/MAX First - REM Immobilienmakler GmbH & Co KG

Ing. Carsten Mähler

RE/MAX First - REM Immobilienmakler Gmbh & Co KG

T +43 1 997 10 00

H +43 664 211 48 10