Stockwerke in bestandsfreiem Bürohaus zu vermieten | Unbefristet

Büro / Praxis - Bürofläche, 1200 Wien


Hannovermarkt | U6 Jägerstraße | U4 Friedensbrücke

Beschreibung der Immobilie

Stockwerke in bestandsfreiem Bürohaus zu vermieten | Unbefristet

Zur unbefristeten Vermietung gelangen einzelne Stockwerke in einem bestandsfreien Büro- Gewerbehaus in sehr gutem Zustand. Das ganze Haus erstreckt sich barrierefrei über 7 Etagen. Die einzelnen Geschosse haben ca. zwischen ca. 270m² und ca. 300m². Ein Highlight ist sicher die ca. 245m² große Dachterrasse mit 360-Grad-Blick über Wien. 



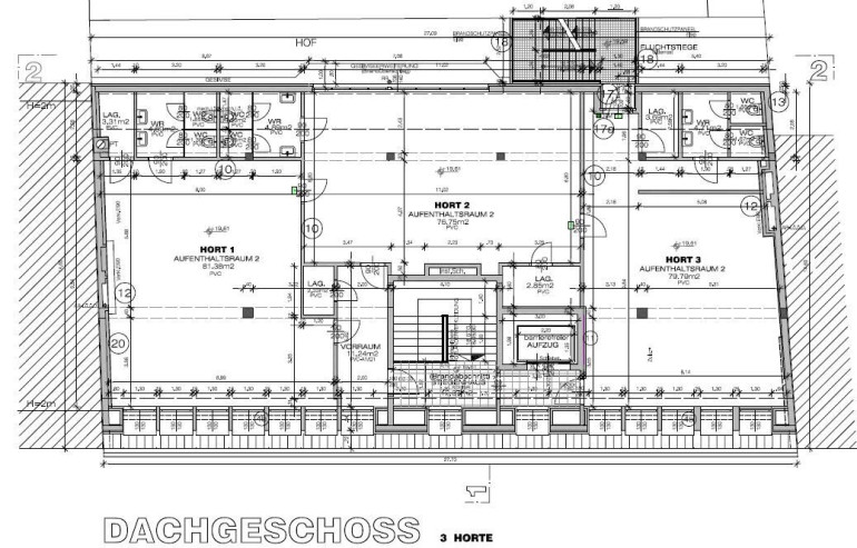
In diesem Angebot wird beispielhaft das Dachgeschoss (ca. 285m²) angeboten und berechnet. Die Betriebskosten inkludieren Warmwasser & Heizung!



Je nach Bedarf besteht die Möglichkeit auch mehrere Etagen anzumieten.



Für detaillierte Informationen oder einen Besichtigungstermin stehe ich gerne zur Verfügung!



Bernhard FRIEDRICH, MSc

+43 660 117 9020

bf@finallyhome.at


Hinweis gemäß Energieausweisvorlagegesetz: Ein Energieausweis wurde vom Eigentümer bzw. Verkäufer, nach unserer Aufklärung über die generell geltende Vorlagepflicht, sowie Aufforderung zu seiner Erstellung noch nicht vorgelegt. Daher gilt zumindest eine dem Alter und der Art des Gebäudes entsprechende Gesamtenergieeffizienz als vereinbart. Wir übernehmen keinerlei Gewähr oder Haftung für die tatsächliche Energieeffizienz der angebotenen Immobilie.


Wir weisen darauf hin, dass zwischen dem Vermittler und dem zu vermittelnden Dritten ein familiäres oder wirtschaftliches Naheverhältnis besteht.

Infrastruktur / Entfernungen

Gesundheit
Arzt <500m
Apotheke <500m
Klinik <1.000m
Krankenhaus <1.500m

Kinder & Schulen
Schule <500m
Kindergarten <500m
Universität <1.000m
Höhere Schule <1.000m

Nahversorgung
Supermarkt <500m
Bäckerei <500m
Einkaufszentrum <1.000m

Sonstige
Geldautomat <500m
Bank <500m
Post <500m
Polizei <500m

Verkehr
Bus <500m
U-Bahn <500m
Straßenbahn <500m
Bahnhof <500m
Autobahnanschluss <1.000m

Angaben Entfernung Luftlinie / Quelle: OpenStreetMap

Eckdaten Objektnr. 1819/57

Art: Büro / Praxis - Bürofläche
Land: Österreich
Zustand: Gepflegt
Kaltmiete (netto): 3.420,00 €
Kaltmiete: 4.132,50 €
Miete / m²: 12,00 €
Provision: 14.877,00 € inkl. 20% USt.
Betriebskosten: 712,50 €
MwSt Gesamt: 826,50 €
Bürofläche: 285,00 m²
Immobilie merken Exposé

Ausstattung

Estrichboden, Zentralheizung, Personenaufzug


Immobilie anfragen


Ihre persönliche Beratung

Bernhard FRIEDRICH, MSc

finallyHOMEreal GmbH

T +43 660 117 9020