++NEU++ 50 Meter zum Augarten! Traumhafte 3-Zimmer-Altbauwohnung mit 10 m² große Terrasse ins Grüne!

Wohnung - Etage, 1200 Wien,Brigittenau


Beschreibung der Immobilie

++NEU++ 50 Meter zum Augarten! Traumhafte 3-Zimmer-Altbauwohnung mit 10 m² große Terrasse ins Grüne!

++THE AUGARTEN IS AROUND THE CORNER++



Exklusive 3-Zimmer-Wohnung mit Balkon 10 m²!




Erstbezug nach Sanierung | Lichtdurchflutet | Küche inkl. Geräte | Markenarmaturen im Bad | Großzügige Terrasse | Top-Nahversorgung | Augarten – 1 Minute!





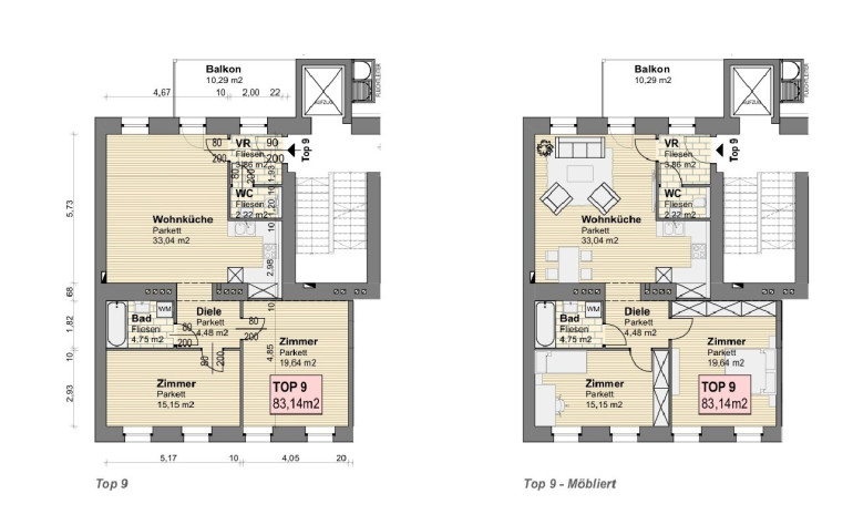
Diese sehr helle 3-Zimmer-Terrassenwohnung mit ca. 83 m² Wohnfläche und einer 10 m² großen Terrasse steht ab sofort zum Verkauf.

Die Wohnung befindet sich im 3. Obergeschoss eines gepflegten Stilaltbaus und ist bequem per Lift (barrierefrei) erreichbar.





Raumaufteilung – ca. 83,15 m² + Terrasse | Raumhöhe ca. 3,10 m



+ einladender Vorraum



+ separates WC mit Handwaschbecken



+ große Wohnküche ca. 33 m² (vollausgestattet) mit Ausgang auf die Terrasse



+ 10 m² Terrasse mit Fernblick



+ zwei separat begehbare Schlafzimmer (ca. 15 m² und 19,64 m²)



+ hochwertiges Badezimmer mit Wanne, Waschtisch und Waschmaschinenanschluss



+ Kellerabteil





Gehobene Ausstattung – Liegenschaft generalsaniert:




  • Vollholz-Parkettboden



  • stilvolle Fliesen



  • Markenarmaturen



  • Gasetagenheizung



  • moderne Einbauküche inkl. aller Geräte



  • optimaler Einbauschrank im Schlafzimmer



  • Innenbeschattung






Top-Lage & perfekte Infrastruktur:



Die Wohnung befindet sich in der Kunzgasse – in wenigen Minuten erreichen Sie die Innenstadt sowie zahlreiche Geschäfte des täglichen Bedarfs.

Im Umkreis von 5 Gehminuten: BILLA, HOFER, LIDL, BIPA, Bäckereien, Apotheken, Banken u. v. m.



Öffentliche Verkehrsmittel:
Straßenbahnlinien 2, 5 sowie Buslinien 5A, 5B befinden sich in unmittelbarer Nähe.



Freizeit & Erholung:
Der grüne Augartenpark ist nur 1 Minute zu Fuß entfernt.

Auch der Donaukanal mit seinen zahlreichen Restaurants und Bars ist rasch mit den Öffis erreichbar.






Vereinbaren Sie noch heute einen Besichtigungstermin!


Kaufpreis: EUR 570.000,-





Kontakt für Informationen & Besichtigungen:




Herr Sadia Alperovits
Telefon: +43 660 380 7232
E-Mail: sa@direktfinanzimmo.at



Firmenname: gb-direkt Finanzberatung & Immobilienhandel GmbH

A-1120 Wien, Aßmayergasse 60/1



Bitte haben Sie Verständnis, dass wir aufgrund der Nachweispflicht gegenüber dem Eigentümer nur Anfragen

mit VOLLSTÄNDIGEN Kontaktdaten (Name, Telefon, Email) beantworten können.




*******************************************

Kaufnebenkosten:
3,5 % Grunderwerbsteuer

1,1 % Grundbucheintragungsgebühr 

1,0 % Vertragserrichtungskosten + 20 % MwSt.

3 %  Vermittlungsprovision + 20 % MwSt.



Alle Angaben beruhen auf Informationen des Eigentümers. Für die Richtigkeit und Vollständigkeit kann keine Haftung übernommen werden.



Maßangaben sind unverbindlich. Änderungen, Irrtümer und Zwischenverkauf vorbehalten.








Wir weisen darauf hin, dass zwischen dem Vermittler und dem zu vermittelnden Dritten ein familiäres oder wirtschaftliches Naheverhältnis besteht.

Infrastruktur / Entfernungen

Gesundheit
Arzt <500m
Apotheke <500m
Klinik <1.000m
Krankenhaus <1.000m

Kinder & Schulen
Schule <500m
Kindergarten <1.000m
Universität <1.500m
Höhere Schule <1.000m

Nahversorgung
Supermarkt <500m
Bäckerei <500m
Einkaufszentrum <1.500m

Sonstige
Geldautomat <1.000m
Bank <1.000m
Post <1.000m
Polizei <500m

Verkehr
Bus <500m
U-Bahn <1.000m
Straßenbahn <500m
Bahnhof <1.000m
Autobahnanschluss <2.000m

Angaben Entfernung Luftlinie / Quelle: OpenStreetMap

Eckdaten Objektnr. 1587/64907

Art: Wohnung - Etage
Land: Österreich
Baujahr: 1900
Zustand: Erstbezug
Alter: Altbau
Kaufpreis: 570.000,00
Provision: 3% des Kaufpreises zzgl. 20% USt.
Betriebskosten: 200,00 €
MwSt Gesamt: 20,00 €
Wohnfläche: 84,00 m²
Zimmer: 3
Bäder: 1
WC: 1
Terrassen: 1
Keller: 2,00 m²
Heizwärmebedarf:  C  90,00 kWh/m²a
Immobilie merken Exposé

Ausstattung

Fliesen, Parkett, Gas, Etagenheizung, Einbauküche, Personenaufzug, Badewanne, DV-Verkabelung


Immobilie anfragen


Ihre persönliche Beratung

“gb-direkt” Finanzberatung & Immobilienhandel GmbH

Sadia Alperovits

“gb-direkt” Finanzberatung & Immobilienhandel GmbH

H +43 660 380 72 32