++NEW++ AMBIENTE22-NEUBAU: Exklusiver 3-Zimmer-Wohntraum mit großer Terrasse & Tiefgarage bei den Blumengärten Hirschstetten!

Wohnung - Terrassenwohnung, 1220 Wien , Kolletschkagasse


Beschreibung der Immobilie

++NEW++ AMBIENTE22-NEUBAU: Exklusiver 3-Zimmer-Wohntraum mit großer Terrasse & Tiefgarage bei den Blumengärten Hirschstetten!

Modernes Wohnen mit Urlaubsflair – 3-Zimmer-Eigentumswohnung mit großer Terrasse und Garagenplatz beim Blumengärten Hirschstetten (Baurechtzins bis 2100)




(Alleinbeauftragt)



Die Wohnung – durchdacht, hochwertig & sofort bezugsbereit


Diese lichtdurchflutete 3-Zimmer-Wohnung im modernen Neubau (Baujahr 2021) verbindet stilvolles Design mit praktischer Raumaufteilung – perfekt für Paare, kleine Familien oder Homeoffice-Suchende.





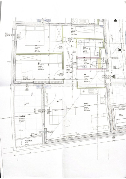
Auf rund 69 m² Wohnfläche plus 11,30 große Terrasse bietet die Wohnung:



Offene Wohnküche mit großzügiger Glasfront zur Terrasse



Zwei geräumige Schlafzimmer – ideal als Schlaf- und Arbeits-/Kinderzimmer



Hochwertiges Badezimmer mit Badewanne, Waschmaschinenanschluss & Handtuchheizkörper



Separates WC mit Handwaschbecken



Praktischer Abstellraum, nutzbar als begehbarer Kleiderschrank oder Stauraum



11,30 m² große, sonnige Terrasse mit idealer Nordwest-Ausrichtung – perfekt für laue Abende



Trockenes, geräumiges ca. 5 m² Kellerabteil mit Liftzugang



Tiefgaragenplatz im Eigentum – im Preis inkludiert



Die Wohnung befindet sich im 1. Dachgeschoss (ohne Dachschrägen!) und ist barrierefrei erreichbar.





Ausstattung – modern, stilvoll, bezugsfertig:


Erstbezug ab 2021 – alles neuwertig



Hochwertiger Parkettboden & elegante Fliesen



Moderne Einbauküche inkl. aller Geräte



Elektrisch bedienbare Jalousien an allen Fenstern



Holztürstöcke & Kunststoff-Alufenster mit Isolierverglasung



Wartungsfreie Fernwärmeheizung



Internet- & TV-Anschluss über A1, Magenta sowie eigene SAT-Anlage





Anlage & Umgebung – grün, ruhig, familienfreundlich:


Die Wohnanlage in der Kolletschkagasse 2 bietet Ihnen eine ruhige, beinahe ländliche Atmosphäre – und das inmitten der Stadt!



Direkt vor der Tür: der beliebte Badeteich Hirschstetten und die Blumengärten Hirschstetten mit Tiergarten und weitläufigen Gartenanlagen – Urlaubsgefühl inklusive!



Zusätzlich bietet die Anlage:



Kleinkinderspielplatz



Jugendspielraum



Fahrrad- & Kinderwagenabstellraum





Perfekte Infrastruktur mit allem, was Sie brauchen:


Öffentliche Anbindung:
    – Mit der Straßenbahn 26 perfekte Anbindung (zu U1 Kagraner Platz, U2 Hausfeldstraße, S-Bahn Floridsdorf)

    – Buslinien 95A & 95B



Top Einkaufsmöglichkeiten:
    – Billa, Lidl, Hofer, Bipa, DM, Libro in unmittelbarer Nähe



Weitere Infrastruktur:
    – Schulen, Kindergärten, Apotheke, Restaurants, Gewerbepark Stadlau





💶 Kaufpreis: € 315.000,-
🚗 inklusive Tiefgaragenplatz



📌 Wichtiger Hinweis:
Diese Wohnung befindet sich auf einem Baurechtsgrund.



Laufzeit des Baurechts: bis 31.12.2099



Monatlicher Baurechtszins: € 116,-





Bieterverfahren:
Die Immobilie wird im Rahmen eines Bieterverfahrens angeboten. Der angegebene Preis versteht sich als Mindestgebot für die Wohnung inkl. Tiefgaragenplatz.







Highlights auf einen Blick:


Moderner Neubau (Baujahr 2020-2021)



Erstbezug, hochwertige Ausstattung



3-Zimmer-Wohnung im 1. Dachgeschoss – ohne Dachschrägen



11,30 m² große Terrasse (NW-Ausrichtung)



Große Glasfront im Wohnzimmer zur Terrasse



Elektrische Jalousien, Parkettboden, moderne Verfliesung



Hochwertige Küche mit Geräten



Geräumiges Badezimmer mit Badewanne



Separates WC, Abstellraum



Internet & TV über A1, Magenta & SAT



Tiefgaragenplatz inklusive



Barrierefreier Zugang mit Lift



Trockener Kellerraum



Familienfreundliche Wohnanlage mit Spielplatz & Fahrradraum



Direkt am Badeteich Hirschstetten & bei den Blumengärten



Gute Öffi-Anbindung (Bim 26, Busse, U-Bahn & S-Bahn)



Nahversorger & Gewerbepark Stadlau ums Eck



Baurechtsgrund bis 2099, monatlich € 116,-





Interesse geweckt?
Kontaktieren Sie uns für weitere Informationen oder einen Besichtigungstermin – wir freuen uns, Ihnen diese besondere Wohnung persönlich zeigen zu dürfen.





Besichtigung & Kontakt:



Ihr Ansprechperson: Herr Sadia ALPEROVITS
Telefonnummer: +43 660 380 7232
Email: sa@direktfinanzimmo.at

gerne zur Verfügung!





Firmenname: gb-direkt Finanzberatung & Immobilienhandel GmbH

A-1120 Wien, Aßmayergasse 60/1



Bitte haben Sie Verständnis, dass wir aufgrund der Nachweispflicht gegenüber dem Eigentümer nur Anfragen

mit VOLLSTÄNDIGEN Kontaktdaten (Name, Telefon, Email) beantworten können.




*******************************************

Kaufnebenkosten:
3,5 % Grunderwerbsteuer

1,1 % Grundbucheintragungsgebühr 

1,0 % Vertragserrichtungskosten + 20 % MwSt.

3 % Provision + 20 % MwSt.



Alle Angaben beruhen auf Informationen des Eigentümers. Für die Richtigkeit und Vollständigkeit kann keine Haftung übernommen werden.



Maßangaben sind unverbindlich. Änderungen, Irrtümer und Zwischenverkauf vorbehalten.

Infrastruktur / Entfernungen

Gesundheit
Arzt <250m
Apotheke <500m
Klinik <1.500m
Krankenhaus <2.500m

Kinder & Schulen
Schule <500m
Kindergarten <500m
Universität <3.000m
Höhere Schule <3.000m

Nahversorgung
Supermarkt <250m
Bäckerei <750m
Einkaufszentrum <1.500m

Sonstige
Geldautomat <250m
Bank <250m
Post <750m
Polizei <250m

Verkehr
Bus <250m
U-Bahn <1.000m
Straßenbahn <250m
Bahnhof <1.000m
Autobahnanschluss <1.250m

Angaben Entfernung Luftlinie / Quelle: OpenStreetMap

Eckdaten Objektnr. 1587/64909

Art: Wohnung - Terrassenwohnung
Land: Österreich
Baujahr: 2021
Zustand: Erstbezug
Alter: Neubau
Kaufpreis: 315.000,00
Betriebskosten: 136,02 €
MwSt Gesamt: 13,60 €
Wohnfläche: 69,00 m²
Nutzfläche: 80,00 m²
Zimmer: 3
Bäder: 1
WC: 1
Terrassen: 1
Keller: 5,00 m²
Heizwärmebedarf:  A  24,97 kWh/m²a
fGEE:  A  0,73
Immobilie merken Exposé

Ausstattung

Fliesen, Parkett, Etagenheizung, Fernwärme, Personenaufzug, Badewanne, DV-Verkabelung


Immobilie anfragen


Ihre persönliche Beratung

“gb-direkt” Finanzberatung & Immobilienhandel GmbH

Sadia Alperovits

“gb-direkt” Finanzberatung & Immobilienhandel GmbH

H +43 660 380 72 32