Altbau-Zinshaus mit Ausbaupotenzial – im Paket oder wohnungsweise zu kaufen
Wohnung
,
8020
Graz
Gaswerkstraße 62 – zentrale Lage im aufstrebenden Bezirk Eggenberg. Nur wenige Gehminuten zur FH Joanneum, zum UKH und zur Straßenbahn. Alles da: Nahversorger, Parkanlagen und die Auster-Therme. Beliebte Wohnlage mit stabiler Nachfrage.
Beschreibung der Immobilie
Altbau-Zinshaus mit Ausbaupotenzial – im Paket oder wohnungsweise zu kaufen
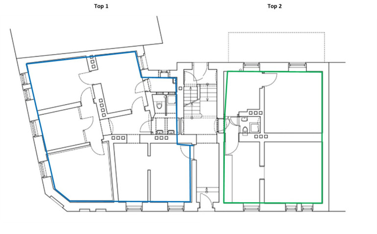
Zum Verkauf steht ein klassisches Eckzinshaus aus dem Jahr 1912 in attraktiver Lage von Graz-Eggenberg, Gaswerkstraße 62. Das gepflegte Altbauhaus umfasst insgesamt sieben Einheiten: eine seit 2014 vermietete Ordination im Erdgeschoss sowie sechs Wohnungen mit Wohnflächen von rund 57 m² bis ca. 105 m². Die Beheizung der Einheiten erfolgt derzeit mittels Gas. Ein besonderes Plus: Die Einheiten können sowohl im Paket als ganzes Zinshaus als auch einzeln erworben werden.
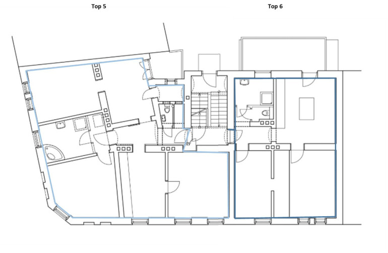
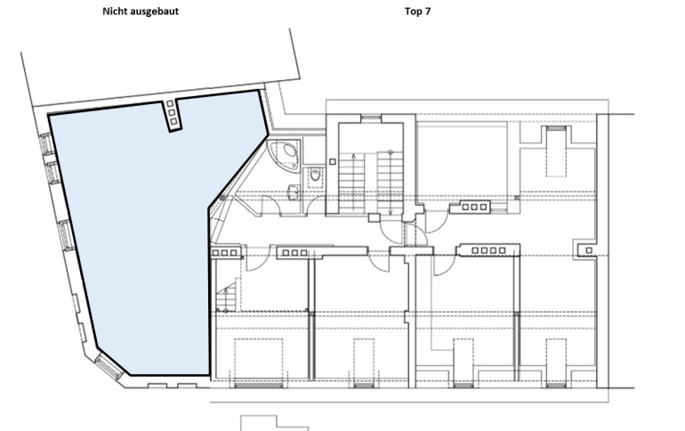
Die Nutzung ist gemischt aus langfristig vermieteten und freiwerdenden Einheiten: Mehrere Wohnungen sind seit vielen Jahren unbefristet vermietet und sorgen für laufende, gut kalkulierbare Mieteinnahmen. Zwei großzügige Altbauwohnungen im 1. Obergeschoss sind bereits bestandsfrei und eignen sich ideal für Eigennutzung, Neuvermietung oder Mietoptimierung. Die Dachgeschosswohnung Top 7 wird mit Jänner 2026 frei und bietet – neben der Möglichkeit zur Eigennutzung oder Neuvermietung – ein besonderes Entwicklungspotenzial: Direkt angrenzend liegt der Rohdachboden, der bei entsprechendem Ausbau eine deutliche Wohnflächenerweiterung dieser Einheit ermöglichen kann.
Typische Altbauattribute wie hohe Räume, Fischgrätparkett, große Fensterflächen und teilweise modernisierte Bäder und Küchen unterstreichen den Charme der Liegenschaft. Insgesamt präsentiert sich das Zinshaus in einem dem Alter entsprechenden, gepflegten Zustand mit interessantem Wertsteigerungs- und Entwicklungspotenzial.
Die Lage im Westen von Graz punktet mit sehr guter Anbindung: Nähe FH Joanneum, UKH Graz, Straßenbahn, Auster, Nahversorger und diverse Freizeitangebote sorgen für eine dauerhaft gefragte Wohn- und Ordinationslage.
Highlights im Überblick:
Klassisches Eckzinshaus aus 1912 in attraktiver Lage Eggenberg
Gemischte Nutzung: Ordination + Wohnungen
Großteils langfristig vermietet, laufende Mieteinnahmen
Mehrere bestandsfreie bzw. freiwerdende Einheiten (inkl. Top 7 ab Jänner 2026)
Ausbaupotenzial durch angrenzenden Rohdachboden neben Top 7
Charmante Altbaumerkmale (hohe Räume, Parkett, große Fenster)
Gute Infrastruktur und öffentliche Anbindung, Nähe FH und UKH Graz
Gesamtkaufpreis: € 1.380.500,-
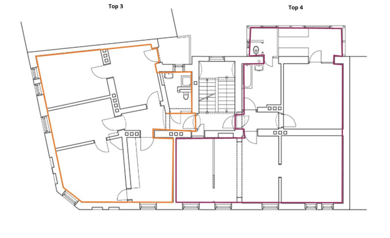
| TOP | Kaufpreis | Größe | m²-Preis | Miete p.m. | vermietet |
1 |
249.800 € | 84,40 m² | 2.960 € | 1.111 € | ja |
| 2 | 131.465 € | 57,66 m² | 2.280 € | 154 € | ja |
| 3 | 189.605 € | 80,08 m² | 2.310 € | 698 € | nein |
| 4 | 229.165 € | 93,92 m² | 2.440 € | 798 € | nein |
| 5 | 210.021 € | 100,01 m² | 2.100 € | 262 € | ja |
| 6 | 136.595 € | 59,91 m² | 2.280 € | 248 € | ja |
| 7 | 233.882 € | 104,88 m² | 2.230 € | 944 € | nein |
Der Vermittler ist als Doppelmakler tätig.
Eckdaten Objektnr. 8044/596
| Art: | Wohnung |
| Land: | Österreich |
| Baujahr: | 1912 |
| Kaufpreis: | 1.380.500,00 € |
| Heizwärmebedarf: | D 123,39 kWh/m²a |
Ausstattung
Gas
Ihre persönliche Beratung
Mario Deuschl
Sinnvestment Immobilien GmbH
T +43 732 67 67 77
H +43 676 32 61 444
F +43 732 67 67 78