Top Raumaufteilung | 3,5 Zimmer | Ruhelage in Einbahnseitenstraße | beste Infrastruktur & Anbindung

Wohnung - Etage, 1150 Wien , Sperrgasse 3


6 Gehminuten zum Westbahnhof (U3, U6) | 1150 Wien | Rudolfsheim-Fünfhaus | äußere Mariahilferstraße

Beschreibung der Immobilie

Top Raumaufteilung | 3,5 Zimmer | Ruhelage in Einbahnseitenstraße | beste Infrastruktur & Anbindung

IMPULS Immobilien bietet nachfolgende Wohnung ab sofort zum KAUF an:



3,5 Zimmer-Wohnung in einem 1977 erbauten Haus, 1. Stock mit Lift, Top Lage in ruhiger Einbahnseitenstraße





HERZLICH WILLKOMMEN ...



Mit unserem 3D-Rundgang, dürfen wir Sie bereits vorab digital einladen, mit uns eine kleine Führung durch diese tolle Immobilie zu machen und sich einen ersten Eindruck von diesem ganz besonderen Objekt zu machen:



>> 3D-Rundgang <<





ÜBER DIE WOHNUNG



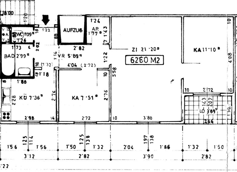
RAUMAUFTEILUNG



  • zentral begehbar
  • Vorraum
  • Badezimmer mit Badewanne
  • separates WC
  • separate Küche
  • großzügiges Wohnzimmer
  • Schlafzimmer mit Loggia
  • Kinder-/Arbeitszimmer
  • Abstellraum

     


Diese 3,5-Zimmer-Wohnung liegt im 1. Stock eines gepflegten Neubaus aus dem Jahre 1977, ist barrierefrei per Lift erreichbar und überzeugt mit einem durchdachten Raumkonzept.

Auf 59 m² Grundfläche plus 4 m² Loggia präsentiert sich ein Zuhause, das jeden Quadratmeter optimal nutzt.



Der Eingangsbereich bietet ausreichend Platz für eine Garderobe und verbindet alle zentralen Räume der Wohnung (ausgenommen das Schlafzimmer). Rechterhand befinden sich das separate WC sowie das Badezimmer mit Badewanne. Geradeaus gelangen Sie in die separate Küche sowie in ein ca. 8 m² großes Arbeits- bzw. Kinderzimmer.



Besonders praktisch: die aktuelle Küche und das kleine Zimmer können auf Wunsch zu einem ca. 15 m² großen Schlafzimmer verbunden werden – im Wohnzimmer könnte man dann eine offene Küche realisieren. So passt sich die Wohnung flexibel Ihren Lebensgewohnheiten und -bedürfnissen an.



Vom Vorraum aus erreichen Sie außerdem den praktischen Abstellraum sowie das gut proportionierte Wohnzimmer mit großer Fensterfläche. Dieses führt weiter in das Schlafzimmer, an das die ca. 4 m² große Loggia anschließt. Sie ist derzeit in den Raum integriert, kann jedoch jederzeit wieder geöffnet werden – ideal, um einen feinen, privaten Außenbereich zu schaffen.



Das Objekt wird mittels günstiger Gas-Zentralheizung beheizt (aktuelle Vorschreibung EUR 89,-- pro Monat für Warmwasser und Heizung).





ZUM HAUS & ZUR INFRASTRUKTUR



Das 1977 erbaute Haus liegt in der Sperrgasse, einer ruhigen Einbahnstraße, und bietet eine sehr gute Infrastruktur im nahen Umkreis.



Die neu gestaltete äußere Mariahilferstraße liegt direkt vor der Haustüre. Begrünung, Verkehrsberuhigung, breitere Gehsteige und sichere Radwege laden zum Bummeln und zu einem Besuch im Schanigarten ein. Alle Einrichtungen des täglichen Bedarfs (Supermarkt, Trafik, Restaurants, Ärzte...) und die Mariahilferstraße mit vielen Geschäften sind in unmittelbarer Umgebung innerhalb weniger Minuten erreichbar! 



Öffentlich sind Sie hier ebenfalls bestens angebunden, denn nur ca. 6 Gehminuten entfernt befindet sich der Wiener Westbahnhof (U3/U6, S-Bahn, Straßenbahn, Airport Bus). 



Praktischerweise liegt auch ein SPAR nur 3 Gehminuten entfernt.





KLINGT INTERESSANT?



DANN SENDEN SIE UNS GERNE EINE ANFRAGE!



Wir stehen jederzeit für einen persönlichen Termin oder Rückfragen aller Art

unter office@impuls-immobilien.atbzw. telefonisch unter 0650/8566764 zur Verfügung!


Wir weisen darauf hin, dass zwischen dem Vermittler und dem zu vermittelnden Dritten ein familiäres oder wirtschaftliches Naheverhältnis besteht.

Infrastruktur / Entfernungen

Gesundheit
Arzt <25m
Apotheke <150m
Klinik <275m
Krankenhaus <975m

Kinder & Schulen
Schule <175m
Kindergarten <325m
Universität <625m
Höhere Schule <1.550m

Nahversorgung
Supermarkt <125m
Bäckerei <100m
Einkaufszentrum <1.125m

Sonstige
Geldautomat <500m
Bank <500m
Post <500m
Polizei <500m

Verkehr
Bus <175m
U-Bahn <375m
Straßenbahn <175m
Bahnhof <450m
Autobahnanschluss <4.025m

Angaben Entfernung Luftlinie / Quelle: OpenStreetMap

Eckdaten Objektnr. 470

Art: Wohnung - Etage
Land: Österreich
Baujahr: 1977
Zustand: Teil_vollrenovierungsbed
Alter: Neubau
Kaufpreis: 265.000,00
Provision: 3% des Kaufpreises zzgl. 20% USt.
Betriebskosten: 172,24 €
MwSt Gesamt: 17,22 €
Wohnfläche: 63,00 m²
Zimmer: 3,50
Bäder: 1
WC: 1
Heizwärmebedarf:  C  82,52 kWh/m²a
fGEE:  F  3,25
Immobilie merken Exposé

Ausstattung

Fliesen, Parkett, Gas, Zentralheizung, Einbauküche, Wohnküche / offene Küche, Personenaufzug, Badewanne, Wasch/Trockenraum


Immobilie anfragen


Ihre persönliche Beratung

IMPULS Immobilien

Mag. (FH) Markus Verner

Impuls Immobilien Verner OG

T +43 650 8566764