INA - Pärchenwohnung mit Freifläche nähe Wasserspielplatz Leberberg

Wohnung , 1110 Wien , Rosa-Jochmann-Ring


Simmering, Kaiserebersdorf, Wasserspielplatz Leberberg, Wiener Zentralfriedhof, Schloss Neugebäude, Einkaufszentrum Huma eleven, Albern, Simmeringer Bad, Prater Spitz, Schwechat

Beschreibung der Immobilie

INA - Pärchenwohnung mit Freifläche nähe Wasserspielplatz Leberberg

Zwischen Großstadt und Erholungsraum erwartet Sie mit ina am Leberberg leistbarer, nachhaltiger Wohnraum, der einerseits Gemeinschaft fördert und andererseits Ihre individuellen Bedürfnisse erfüllt. Ob als erste Wohnung alleine oder zu zweit, hier finden Sie ein Zuhause in Wien, in dem es an nichts fehlen wird.



Jede Wohneinheit ist so gestaltet, dass sie ein Maximum an Tageslicht und eine private Freifläche wie einen Eigengarten, Terrasse, Balkon oder Loggia bietet. Die moderne, energieeffiziente Fußbodenheizung und die Deckenkühlung (Free Cooling) garantieren ganzjährigen Komfort. Die Verbindung von Solarenergie und geothermischen Heizsystemen senkt die Heizkosten der Fernwärme spürbar. Zudem gibt es in jeder Wohnung die Möglichkeit zur Integration modernster Smart-Home-Technologien.



Autofreie Wege zum Spazieren und liebevoll gestaltete Grünflächen laden zum Verweilen ein. Das Auto findet sich versteckt in der Tiefgarage, die natürlich auch E-Tankplätze anbietet. Der multifunktionale Gemeinschaftsraum kann auch als Shared-Office genutzt werden.



Das Wohnprojekt ina genießt eine privilegierte Lage in Wien-Simmering. Hier finden Sie das Beste aus zwei Welten – die Dynamik der Stadt und die Ruhe grüner Erholungsgebiete. Dank einzigartiger Lage sind alle Einrichtungen des täglichen Bedarfs, wie Supermärkte, Schulen, Kindergärten, Ärzte und Apotheken, in unmittelbarer Nähe und in 5-10 Minuten zu Fuß erreichbar. Zudem sorgen zahlreiche Cafés, Restaurants und Einkaufsmöglichkeiten für Lebensqualität und Vielfalt.



Gleichzeitig ist die Anbindung an das öffentliche Verkehrsnetz nahtlos, sodass die Wiener Innenstadt in nur 30 Minuten bequem erreicht werden kann. Der Flughafen befindet sich mit dem Auto keine 15 Minuten entfernt und für Naturliebhaber bietet die Umgebung ausgedehnte Grünflächen und Parks, die zum Spazieren, Joggen oder einfach zum Entspannen im Grünen einladen.



Öffentliche Verkehrsmittel in nächste Nähe:

Straßenbahnlinien
11 (Richtung Favoriten) und 71 (Richtung Innenstadt),

Buslinien 71A, 71B, 73A, 73B, 79A und 79B



Bonität / Nachweis der Leistbarkeit
Für die Anmietung der Wohnungen ist ein Mindest-Einkommen nachzuweisen: Die Miete darf nicht höher sein als 40% Ihres Netto Einkommens. Der Einsatz eines bonitätsstarken Bürgen ist möglich.



Kontakt:
Bei Fragen oder zur Vereinbarung eines Besichtigungstermins wenden Sie sich bitte an Frau Edita Drina unter drina@estina.at oder mobil unter 0676 480 32 48.



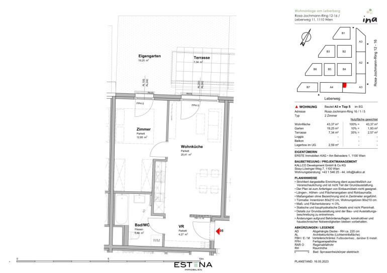
Raumaufteilung:
- Vorraum

- geräumige Wohnküche mit Zugang zur Terrasse und Garten

- großes Schlafzimmer 

- Badezimmer mit Badewanne, Waschbecken, Waschmaschinenanschluss und Toilette

- Terrasse und Garten 



Kosten:
Miete: € 964,99 inkl. BK und 10% USt.

Kaution: € 2.894,97



Ein Stellplatz ab Brutto € 110,00 kann zusätzlich angemietet werden. 



Kontakt:
Bei Fragen oder zur Vereinbarung eines Besichtigungstermins wenden Sie sich bitte an Frau Edita Drina unter drina@estina.at oder mobil unter 0676 480 32 48. 


Der Immobilienmakler erklärt, dass er – entgegen dem in der Immobilienwirtschaft üblichen Geschäftsgebrauch des Doppelmaklers – einseitig nur für den Vermieter tätig ist.

Eckdaten Objektnr. 25810

Art: Wohnung
Land: Österreich
Baujahr: 2024
Zustand: Neuwertig
Alter: Neubau
Gesamtmiete: 964,99
Kaltmiete (netto): 786,34 €
Kaltmiete: 877,27 €
Provision: Gemäß Erstauftraggeberprinzip bezahlt der Abgeber die Provision.
Betriebskosten: 90,93 €
MwSt Gesamt: 87,72 €
Wohnfläche: 43,37 m²
Zimmer: 2
Bäder: 1
WC: 1
Terrassen: 1
Garten: 19,25 m²
Heizwärmebedarf:  B  25,60 kWh/m²a
fGEE:  A+  0,58
Immobilie merken Exposé

Ausstattung

Parkett, Fliesen, Fußbodenheizung, Wohnküche / offene Küche, Personenaufzug, Nordbalkon, Dusche, Tiefgarage


Immobilie anfragen


Ihre persönliche Beratung

ESTINA Immobilien GmbH

Edita Drina

WH2 Immobilienverwertungs GmbH

H +43 676 480 32 48