Gründerzeit-Mittelzinshaus mit 100 % Befristungen sowie bewilligtem zweigeschossigen Dachausbau

Zinshaus Renditeobjekt , 1150 Wien


Beschreibung der Immobilie

Gründerzeit-Mittelzinshaus mit 100 % Befristungen sowie bewilligtem zweigeschossigen Dachausbau

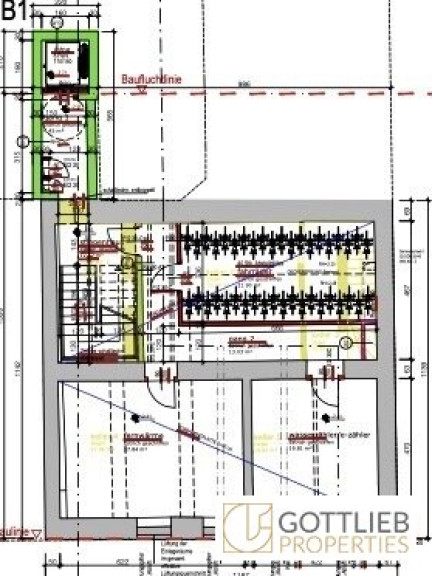
Bei der zum sofortigen Verkauf stehenden Liegenschaft handelt es sich um ein dreigeschossiges Mittelzinshaus aus der Gründerzeit mit Rohdachboden sowie einem Geschäftslokal.



Die gesamte Liegenschaft umfasst derzeit eine Gesamtnutzfläche von ca. 744,74 m².



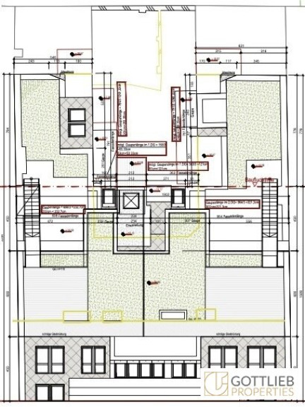
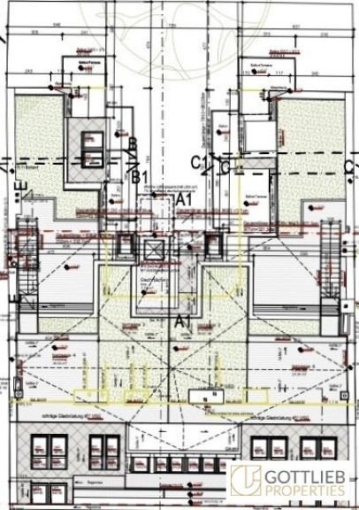
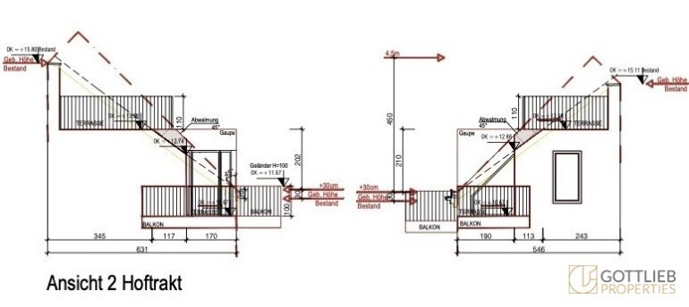
Die Baubewilligung vom Februar 2025 sieht eine Sanierung, einen Zu- und zweigeschossigen Ausbau des Dachgeschosses vor. Die Gesamterweiterung beträgt insgesamt siebzehn Wohnungen mit ca. 1.059,78 m² Wohn-Nutzfläche sowie Terrassen und Balkone von 264,40 m² und zwei Büroeinheiten mit ca. 100,33 m² Nutzfläche.





Der Bestand



9 Wohnungen sowie ein Geschäftslokal, davon



+ 9 Wohnungen mit insgesamt ca. 516,26 m² mit Befristung



+ Geschäftslokal mit ca. 228,48 m²mit Befristung bis 28.02.2026



+ Rohdachboden mit ca. 316,56 m²





Die Flächenwidmung 



+ Wohngebiet



+ Bauklasse II



+ Beschränkung der Gebäudehöhe auf 15 m



+ geschlossene Bauweise





Der Ertrag



Laut aktueller Zinsliste ca. € 73.869,96 netto p.a.





Das Potential



+ Abbruch des bestehenden Dachgeschosses und Aufstockung eines 1. und 2. Dachgeschosses zur Erweiterung auf insgesamt 17 Wohnungen mit ca. 1.059,28 m² Wohn-Nutzfläche sowie Terrassen und Balkone von 264,40 m²



+ zwei Büroeinheiten mit ca. 100,33 m² Nutzfläche



+ Zubau bis zur Baufluchtlinie



+ Zusammenlegung von Wohnungen in den Festgeschossen



+ mögliche Gesamtfläche nach genehmigten Umbau inklusive Balkone, Terrassen und Allgemeinflächen ca. 1.670,20 m²



+ die Baugenehmigung erfolgte im Februar 2025





Verkehrsanbindung



Aufgrund der sehr guten Verkehrsanbindung erreichen Sie sowohl mit dem PKW, als auch mit diversen U-Bahn- und Autobus-Linien in ungefähr 20 Minuten die Wiener Innenstadt, den Wienerwald und in wenigen Minuten den Wiener Westbahnhof sowie den Hauptbahnhof.





+ U-Bahn-Linien U4, U6



+ Autobus-Linien 10A, 12A, 57A und 63A



+ Wiener Westbahnhof





Lage und Infrastruktur




Die ausgesprochen gute Lage dieser Liegenschaft bietet nicht nur eine hervorragende Infrastruktur, sondern auch eine ideale Verkehrsanbindung. Rudolfsheim-Fünfhaus, der 15. Wiener Gemeindebezirk, zählt seit einigen Jahren zu den florierenden und gefragten Wohngegenden Wiens.



Zahlreiche Geschäfte des täglichen Bedarfs, der Meiselmarkt, Cafés und Gastronomiebetriebe befinden sich in Gehnähe. Auch die unmittelbare Nähe zur U-Bahn-Station Längenfeldgasse garantiert eine perfekte Verkehrsanbindung.



Das nahe gelegene Schloss Schönbrunn mit seinen weitläufigen Parkanlagen, dem Tiergarten und seiner Orangerie, der Auer-Welsbach-Park und das Technische Museum, der Wienerwald mit Grünflächen, Spielplätzen und Lokalen oder die Wiener Stadthalle mit diversen Veranstaltungen und Konzerten laden zu vielfältigen Spazier- und Freizeitmöglichkeiten ein.





Sonstiges



Wir ersuchen um Verständnis, dass wir aufgrund unserer Nachweispflicht gegenüber dem Eigentümer nur Anfragen mit vollständigen Kontaktdaten (Name, Adresse, Mobilnummer, Email) bearbeiten können.


Hinweis gemäß Energieausweisvorlagegesetz: Ein Energieausweis wurde vom Eigentümer bzw. Verkäufer, nach unserer Aufklärung über die generell geltende Vorlagepflicht, sowie Aufforderung zu seiner Erstellung noch nicht vorgelegt. Daher gilt zumindest eine dem Alter und der Art des Gebäudes entsprechende Gesamtenergieeffizienz als vereinbart. Wir übernehmen keinerlei Gewähr oder Haftung für die tatsächliche Energieeffizienz der angebotenen Immobilie.


Wir weisen darauf hin, dass zwischen dem Vermittler und dem zu vermittelnden Dritten ein familiäres oder wirtschaftliches Naheverhältnis besteht.


Der Vermittler ist als Doppelmakler tätig.

Infrastruktur / Entfernungen

Gesundheit
Arzt <500m
Apotheke <500m
Klinik <500m
Krankenhaus <1.500m

Kinder & Schulen
Schule <500m
Kindergarten <500m
Universität <500m
Höhere Schule <1.000m

Nahversorgung
Supermarkt <500m
Bäckerei <500m
Einkaufszentrum <1.000m

Sonstige
Geldautomat <500m
Bank <500m
Post <1.000m
Polizei <500m

Verkehr
Bus <500m
U-Bahn <500m
Straßenbahn <1.000m
Bahnhof <500m
Autobahnanschluss <3.500m

Angaben Entfernung Luftlinie / Quelle: OpenStreetMap

Eckdaten Objektnr. 3889

Art: Zinshaus Renditeobjekt
Land: Österreich
Baujahr: 1900
Alter: Altbau
Kaufpreis: 2.850.000,00
Provision: 3% des Kaufpreises zzgl. 20% USt.
Wohnfläche: 516,26 m²
Nutzfläche: 744,74 m²
Grundstücksfl.: 536,00 m²
Verkaufsfläche: 228,48 m²
Keller: 94,69 m²
Immobilie merken Exposé

Immobilie anfragen


Ihre persönliche Beratung

Desirée Gottlieb

Gottlieb Properties Immobilientreuhand GmbH

H + 43 699 14702557