Komfortables Wohnen mit Geschichte – 1-Zimmer-Wohnung mit Donaublick in Linz Urfahr

Wohnung , 4040 Linz


Beschreibung der Immobilie

Komfortables Wohnen mit Geschichte – 1-Zimmer-Wohnung mit Donaublick in Linz Urfahr

Willkommen in einer außergewöhnlichen Mietwohnung im Herzen von Linz Urfahr! Diese ca. 31 m² große 1-Zimmer-Wohnung befindet sich in einem historischen Gebäude – dem ehemaligen Hotel Landgraf – und vereint stilvollen Altbau-Charme mit modernem Wohnkomfort und ist ideal für Singles oder Pendler, die stilvolles Wohnen mit urbanem Flair und geschichtsträchtigem Ambiente schätzen.



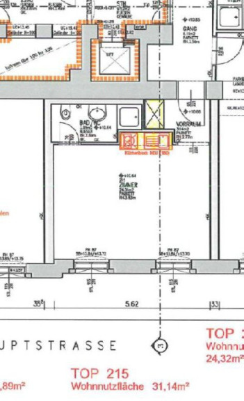
Der großzügige Wohnraum ist hell und freundlich dank großer Fenster, die einen wunderbaren Blick zum Magistrat und zur Donau bieten. Die integrierte Küchenzeile ist funktional gestaltet und fügt sich dezent in den Raum ein. Das Badezimmer verfügt über eine Dusche. Im Keller stehen eine Waschmaschine, ein Trockner sowie ein privates Kellerabteil zur Verfügung.



Ein echtes Highlight ist das denkmalgeschützte Stiegenhaus sowie der einzigartige Eingangsbereich, der noch immer den eleganten Charakter des ehemaligen Hotels versprüht. Ein Lift ist vorhanden und sorgt für bequemen Zugang zur Wohnung.



Lage & Umgebung:



Direkt an der Hauptstraße Urfahr gelegen, genießen Sie hier die perfekte Mischung aus zentraler Lage, bester Infrastruktur und unmittelbarer Nähe zur Donau. Öffentliche Verkehrsmittel, Einkaufsmöglichkeiten, Cafés und Freizeitangebote sind nur wenige Schritte entfernt. Die Innenstadt erreichen Sie in wenigen Minuten – zu Fuß oder mit der Straßenbahn.



Kostenhinweis:
Die Stromkosten werden verbrauchsabhängig direkt vom jeweiligen Versorgungsunternehmen vorgeschrieben.



Kontakt:
Für weitere Informationen oder zur Vereinbarung eines Besichtigungstermins kontaktieren Sie uns bitte  per E-Mail.



Lydia Berger - Mobil 0664 18 774 96 - lydia.berger@abra.at


Wir weisen darauf hin, dass zwischen dem Vermittler und dem zu vermittelnden Dritten ein familiäres oder wirtschaftliches Naheverhältnis besteht.


Der Immobilienmakler erklärt, dass er – entgegen dem in der Immobilienwirtschaft üblichen Geschäftsgebrauch des Doppelmaklers – einseitig nur für den Vermieter tätig ist.

Infrastruktur / Entfernungen

Gesundheit
Arzt <500m
Apotheke <500m
Klinik <1.000m
Krankenhaus <1.500m

Kinder & Schulen
Kindergarten <500m
Schule <500m
Universität <500m
Höhere Schule <1.500m

Nahversorgung
Supermarkt <500m
Bäckerei <500m
Einkaufszentrum <500m

Sonstige
Bank <500m
Geldautomat <500m
Post <500m
Polizei <500m

Verkehr
Bus <500m
Straßenbahn <500m
Bahnhof <500m
Autobahnanschluss <1.500m
Flughafen <4.500m

Angaben Entfernung Luftlinie / Quelle: OpenStreetMap

Eckdaten Objektnr. 5908/1702

Art: Wohnung
Land: Österreich
Gesamtmiete: 553,50
Kaltmiete (netto): 385,42 €
Kaltmiete: 463,76 €
Provision: Gemäß Erstauftraggeberprinzip bezahlt der Abgeber die Provision.
Betriebskosten: 78,34 €
Heizkosten: 34,74 €
MwSt Gesamt: 55,00 €
Nutzfläche: 31,14 m²
Zimmer: 1
Bäder: 1
Heizwärmebedarf:  C  54,70 kWh/m²a
fGEE:  C  1,14
Immobilie merken Exposé

Ausstattung

Fernwärme, Einbauküche, Personenaufzug, Dusche


Immobilie anfragen


Ihre persönliche Beratung

ABRA IC GmbH

Lydia Berger

ABRA IC GmbH

T +43 664 18 774 96

H +43 664 18 774 96