Renovierungsbedürftiges Apartmenthaus (3 Häuser!) – Ihr neues Investitionsprojekt! Wohnen, Praxis oder Ordination

Haus , 2540 Bad Vöslau


Dieses charmante Apartmenthaus bei 2540 Bad Vöslau besticht durch seine ideale Lage im Südosten. In unmittelbarer Nähe finden Sie alles, was das Herz begehrt: Ärzte, Schulen, Kindergärten sowie Bäckereien und Banken sind bequem erreichbar. Ein Geldautomat und die Post sind nur einen kurzen Fußweg entfernt. Die gute Anbindung an den öffentlichen Nahverkehr mit Buslinien sorgt für eine optimale Erreichbarkeit der Umgebung. Hier wohnen oder arbeiten Sie zentral und dennoch ruhig!

Beschreibung der Immobilie

Renovierungsbedürftiges Apartmenthaus (3 Häuser!) – Ihr neues Investitionsprojekt! Wohnen, Praxis oder Ordination

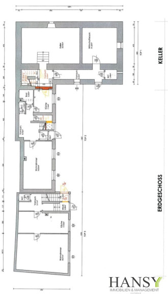
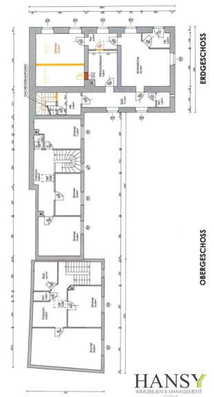
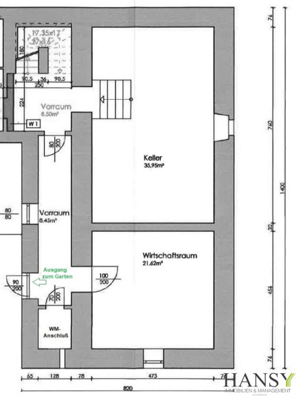
Willkommen in Ihrem zukünftigen Arbeitsplatz oder Zuhause – Dieses Apartmenthaus (3 Häuser) ehemals als Kindergarten genutzt stehen in der malerischen Stadt Bad Vöslau, Niederösterreich. Dieses großzügige Objekt bietet Ihnen eine beeindruckende Fläche von 419,43 m² und wartet darauf, von Ihnen in neuem Glanz erstrahlt zu werden. Mit einem Kaufpreis von nur 920.000,00 € bietet sich Ihnen hier eine einmalige Gelegenheit, Ihr Traumprojekt zu verwirklichen.



Das Gesamtobjekt ist sanierungsbedürftig, wobei es eignet sich sowohl zum Wohnen als



Die Häuser sind sanierungsbedürftig, was Ihnen die Möglichkeit gibt, Ihre eigenen Ideen und Vorstellungen umzusetzen. Egal ob zu wohnen, als Arztpraxis, Büro oder auch kombiniert. Stellen Sie sich vor, wie Sie die Räumlichkeiten nach Ihren Wünschen gestalten und dabei gleichzeitig den Charme und Charakter des Gebäudes bewahren. Die vorhandene Einbauküche, die komfortable Badewanne sowie die Dusche bieten bereits eine solide Basis, auf der Sie aufbauen können.



Die Häuser könnten auch nach der Innensanierung auch einzeln weiterverkauft werden. (für Bauträger geeignet)



6 Abstellplätze auf Eigengrund stehen zu Verfügung wie auch jedes Haus davor über eine kleine Gartenfläche verfügt.



Haus 1 ist noch ein Althaus aus dem Jahre 1920 das die größte Sanierung benötigt. Die beiden weiteren Häuser wurden gegen 1995 gebaut und sind in einem relativen guten Zustand.



Die Lage des Objekts ist ein weiterer Pluspunkt. Bad Vöslau ist bekannt für seine hohe Lebensqualität und die hervorragende Infrastruktur. In der unmittelbaren Umgebung finden Sie alles, was Sie für den täglichen Bedarf benötigen: Ärzte, Schulen, Kindergärten und eine gemütliche Bäckerei sind nur wenige Minuten entfernt. Die gute Verkehrsanbindung durch die Buslinie sorgt dafür, dass Sie auch schnell in die umliegenden Städte gelangen.



Das Apartmenthaus ist mit Fertigparkett / Fliesen ausgestattet und verfügt über eine Gas-Etagenheizung, die für behagliche Wärme sorgt. Kabel- und Satelliten-TV-Anschlüsse sind ebenfalls vorhanden.



Lassen Sie sich diese Gelegenheit nicht entgehen! Nutzen Sie die Chance, diese Liegenschaft in Bad Vöslau zu erwerben und gestalten Sie es nach Ihren persönlichen Wünschen. Diese Liegenschaft hat viel Potenzial, ein wahres Schmuckstück zu werden – sowohl für Sie als auch für zukünftige Bewohner / Mieter.



Vereinbaren Sie noch heute einen Besichtigungstermin und lassen Sie sich von den Möglichkeiten dieser Immobilie begeistern!

Infrastruktur / Entfernungen

Gesundheit
Arzt <500m
Apotheke <500m
Klinik <5.000m
Krankenhaus <5.500m

Kinder & Schulen
Kindergarten <1.000m
Schule <500m

Nahversorgung
Supermarkt <1.000m
Bäckerei <500m
Einkaufszentrum <4.000m

Sonstige
Bank <1.000m
Geldautomat <1.000m
Post <1.000m
Polizei <500m

Verkehr
Bus <500m
Bahnhof <2.000m
Autobahnanschluss <2.000m
Straßenbahn <5.500m
Flughafen <4.000m

Angaben Entfernung Luftlinie / Quelle: OpenStreetMap

Eckdaten Objektnr. 2441

Art: Haus
Land: Österreich
Baujahr: 1985
Zustand: Teil_vollrenovierungsbed
Alter: Neubau
Kaufpreis: 910.000,00
Kaufpreis / m²: 2.169,61 €
Provision: 3% des Kaufpreises zzgl. 20% USt.
Nutzfläche: 419,43 m²
Grundstücksfl.: 830,00 m²
Terrassen: 3
Stellplätze: 6
Immobilie merken Exposé

Ausstattung

Fliesen, Parkettboden, Gas, Etagenheizung, Einbauküche, Badewanne, Dusche, Kabel/Satelliten-TV, Parkplatz


Immobilie anfragen


Ihre persönliche Beratung

Hansy GmbH

Rene Hansy

Hansy GmbH

T +43 664 4232494

H +43 664 4232494