Erstbezug in U-Bahn-Nähe! Liebevoll generalsanierte 2-Zimmer-Wohnung in Gründerzeithaus

Wohnung , 1160 Wien


Beschreibung der Immobilie

Erstbezug in U-Bahn-Nähe! Liebevoll generalsanierte 2-Zimmer-Wohnung in Gründerzeithaus

In einem liebevoll generalsanierten Haus der Gründerzeit kommen insgesamt 13 hochwertig ausgestattete Liegenschaften - darunter ein Geschäftslokal, ein Büro, mehrere Wohnungen sowie ein Penthouse mit sonnigen Freiflächen - zur Vermarktung.

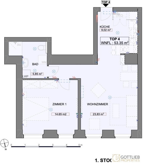
Über einen Eingangsbereich mit integrierter Küche gelangen Sie in das geräumige Wohnzimmer. Ein Schlafzimmer sowie das Duschbad mit Toilette komplettieren den Grundriss dieser sehr gut geschnittenen Altbauwohnung.





+ ca. 53,35 m2 Wohnfläche



+ ca. 23,83 m2 Wohnzimmer



+ ca. 14,65 m2 Schlafzimmer



+ ca. 9,02 m2 Küche



+ ca. 5,85 m2 Bad





Ausstattung



+ Holzparkett Klasse II, Eiche rustikal



+ Boden-Fliesen in den Nassräumen



+ Waschtisch mit Unterbauschrank



+ Armaturen der Marke GROHE



+ Walk-In Dusche mit Hartglastüre



+ Villeroy & Boch Wand-Tiefspüler-WC



+ Handtuchwärmer



+ Innentüren der Firma DANA, glatt, sperrbar



+ Kunststoff-Fenster mit 3-fach Isolierverglasung



+ Luftwärmepumpe der Firma DAIKIN für Fußbodenheizung und Warmwasseraufbereitung



+ Fancoils – Wandgerät für optimale Raumkühlung



+ Kabel-TV/Internet



+ Sprechanlage



+ Sicherheitstüre



+ Fahrradabstellplätze im Innenhof und im Keller



+ Gemeinschaftskeller







Infrastruktur



+ U-Bahn-Linien U3 und U6



+ Straßenbahn-Linien 2, 9, 10, 44 und 46



+ Schnellbahn S45



+ Wien Westbahnhof





Lage



Der 16. Wiener Gemeindebezirk Ottakring liegt westlich der Wiener Innenstadt und erstreckt sich von den Ausläufern des Wienerwaldes bis hin zum Lerchenfelder Gürtel. Seit einigen Jahren floriert dieser Bezirk und entwickelt sich immer mehr zu einer äußerst beliebten und attraktiven Wohngegend.



Gründerzeithäuser neben Gemeindebauanlagen und Villenvierteln oder alteingesessenen Industriebetrieben, wie z.B. der Delikatessenhandel der Firma Staud, die Kaffeerösterei Julius Meinl, die Firma Manner sowie die Ottakringer Brauerei - um nur einige zu nennen - ebenso wie die Multikulturalität dieses Bezirks machen den unvergleichlichen Charme von Ottakring aus.



Sämtliche Schulen und Kindergärten, Restaurants, Cafés, Bars, sowie Geschäfte und Einrichtungen des täglichen Bedarfs befinden sich in Gehnähe. Die Thaliastraße sowie Ottakringer Straße, der nahegelegene Brunnen- und Yppenmarkt - mit dem vor einiger Zeit neu gestaltetem Yppenplatz - laden zum Verweilen und Einkaufen ein.



Erholung und Freizeitgestaltung findet man in den kleinen Parkanlagen ebenso wie im Wienerwald mit der Jubiläumswarte, dem nahe gelegenen Wilhelminenberg mit seinem Schloss Wilhelminenberg, welches inmitten von Weingärten liegt und von dem aus man einen wunderbaren Blick über Wien genießt. Das beinahe einhundertjährige Kongressbad mit seiner unverkennbaren Architektur, die Tschauner-Bühne oder kleine, alteingesessene Heurigen bieten weitere Entspannungs- und Freizeitmöglichkeiten.





Sonstiges



Die Wohnung wird schlüsselfertig übergeben.



Die Fotos zeigen bereits fertiggestellte Wohnungen im gleichen Hause.



Wir weisen im Sinne der Offenlegungspflichten darauf hin, dass die Fotos teilweise mit Hilfe von KI generiert wurden.



Wir ersuchen um Verständnis, dass wir aufgrund unserer Nachweispflicht gegenüber dem Eigentümer nur Anfragen mit vollständigen Kontaktdaten (Name, Adresse, Mobilnummer, Email) bearbeiten können.


Wir weisen darauf hin, dass zwischen dem Vermittler und dem zu vermittelnden Dritten ein familiäres oder wirtschaftliches Naheverhältnis besteht.


Der Vermittler ist als Doppelmakler tätig.

Infrastruktur / Entfernungen

Gesundheit
Arzt <500m
Apotheke <500m
Klinik <1.000m
Krankenhaus <1.500m

Kinder & Schulen
Schule <500m
Kindergarten <500m
Universität <1.500m
Höhere Schule <1.000m

Nahversorgung
Supermarkt <500m
Bäckerei <500m
Einkaufszentrum <1.000m

Sonstige
Geldautomat <500m
Bank <500m
Post <500m
Polizei <500m

Verkehr
Bus <500m
U-Bahn <1.000m
Straßenbahn <500m
Bahnhof <1.000m
Autobahnanschluss <4.500m

Angaben Entfernung Luftlinie / Quelle: OpenStreetMap

Eckdaten Objektnr. 3893

Art: Wohnung
Land: Österreich
Baujahr: 1900
Zustand: Erstbezug
Alter: Altbau
Kaufpreis: 329.000,00
Provision: 3% des Kaufpreises zzgl. 20% USt.
Betriebskosten: 82,89 €
MwSt Gesamt: 9,89 €
Wohnfläche: 53,35 m²
Nutzfläche: 53,35 m²
Zimmer: 2
Bäder: 1
WC: 1
Heizwärmebedarf:  C  73,30 kWh/m²a
fGEE:  A  0,73
Immobilie merken Exposé

Ausstattung

Fliesen, Parkett, Fußbodenheizung, Personenaufzug, Dusche, Kabel/Satelliten-TV


Immobilie anfragen


Ihre persönliche Beratung

Desirée Gottlieb

Gottlieb Properties Immobilientreuhand GmbH

H + 43 699 14702557