Moderne Altbauwohnung mit besten Zukunftsaussichten

Wohnung - Etage, 1170 Wien , Rosensteingasse 14


Wien-Hernals, Rosensteingasse Die zentrale Lage der Wohnung ermöglicht es Ihnen, die Vorzüge des urbanen Lebens in vollen Zügen zu genießen. In unmittelbarer Nähe finden Sie eine Vielzahl von Einkaufsmöglichkeiten, gemütlichen Cafés und Restaurants, die zum Verweilen einladen. Auch die Anbindung an öffentliche Verkehrsmittel ist hervorragend, sodass Sie schnell und unkompliziert in die Innenstadt gelangen. Öffentliche Verkehrsanbindung: Straßenbahnlinien 2, 9 und 43 sind fußläufig erreichbar. Sowohl mit der Linie 2, also auch mit dem 43er gelangen Sie rasch in die Innere Stadt, dem Herzen der Metropole Wien. Eine weitere Aufwertung der Lage wird der Bau der U5-Station am Elterleinplatz bringen. Einkaufsmöglichkeiten: Diese finden Sie z.B. ausreichend auf der Hernalser Hauptstraße sowie im EKZ am Elterleinplatz. Medizin: Ärzte verschiedenster Fachrichtungen und eine Apotheke finden Sie in fußläufiger Entfernung zur gegenständlichen Liegenschaft. Bildung: In direkter Umgebung befinden sich Schulen und Kindergärten.

Beschreibung der Immobilie

Moderne Altbauwohnung mit besten Zukunftsaussichten

Sehr geehrte Damen und Herren,



willkommen in Ihrem neuen Zuhause in der charmanten und aufstrebenden Umgebung des 17. Wiener Gemeindebezirks. Diese moderne Altbauwohnung bietet Ihnen nicht nur ein stilvolles Ambiente, sondern auch den perfekten Rückzugsort inmitten des pulsierenden Lebens der Stadt.



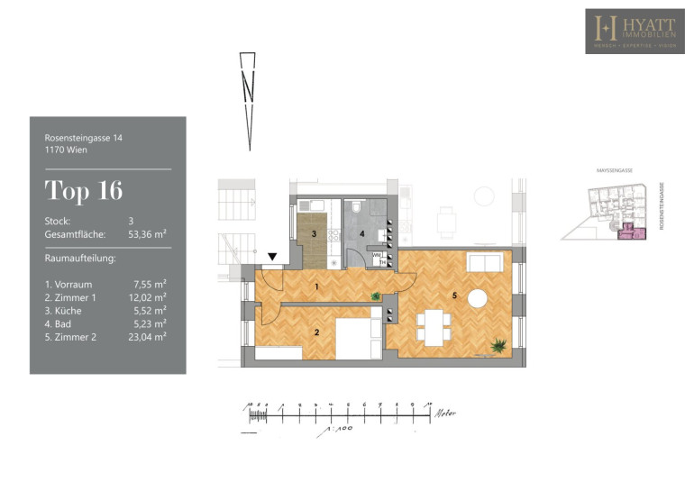
Diese liebevoll und hochwertig sanierte 2 Zimmer Wohnung, welche über ca. 53,26 m² verfügt, findet man im 3. Obergeschoss, ist mit einem Lift barrierefrei erreichbar, und bietet gleichermaßen Singles, also auch Pärchen ein neues wunderschönes Zuhause



Die Zimmer sind zentral begehbar und damit auch für Wohngemeinschaften interessant.





Der Wohnung ist ein Kellerabteil zugeordnet, im Keller befindet sich auch ein Kinderwagen- und Fahrradabstellraum.





Achtung: Nicht nur gegenständliche Wohnung, sondern auch noch einige weitere Wohnungen erstrahlen nach erfolgter Sanierung in neuem Glanz und so können Sie zurzeit noch aus dem vollen schöpfen!



Darüber hinaus wurde die gesamte Liegenschaft generalsaniert, das Dachgeschoss ausgebaut und nichts unversucht lassen, aus diesem Wohngebäude ein repräsentatives Schmuckstück zu schaffen.





Lassen Sie sich dieses Angebot nicht entgehen und vereinbaren Sie noch heute einen Besichtigungstermin.





Ausführliche Informationen und entsprechende Unterlagen werden Ihnen gerne übermittelt. Für dies und zwecks Vereinbarung eines Besichtigungstermines kontaktieren Sie bitte Herrn Felix Kunej ausschließlich schriftlich unter kunej@isidex.at oder Sie verwenden das jeweilige Anfrageformular.



In Entsprechung des FAGG (Fern- und Auswärtsgeschäfte-Gesetz) und des VRUG (Verbraucherrechte-Richtlinie-Umsetzungsgesetz) ist es uns leider nur mehr möglich Termine nach Erhalt einer schriftlichen Anfrage mit vollständigen Kontaktangaben (Name, Adresse, Telefon, Email) zu vereinbaren, Unterlagen zu übermitteln und zu diesem Objekt Auskunft zu erteilen.






Wir weisen darauf hin, dass zwischen dem Vermittler und dem zu vermittelnden Dritten ein familiäres oder wirtschaftliches Naheverhältnis besteht.


Der Vermittler ist als Doppelmakler tätig.

Infrastruktur / Entfernungen

Gesundheit
Arzt <175m
Apotheke <200m
Klinik <325m
Krankenhaus <1.375m

Kinder & Schulen
Schule <150m
Kindergarten <50m
Universität <1.425m
Höhere Schule <1.100m

Nahversorgung
Supermarkt <225m
Bäckerei <200m
Einkaufszentrum <525m

Sonstige
Geldautomat <375m
Bank <375m
Post <500m
Polizei <575m

Verkehr
Bus <25m
U-Bahn <1.025m
Straßenbahn <25m
Bahnhof <1.125m
Autobahnanschluss <3.800m

Angaben Entfernung Luftlinie / Quelle: OpenStreetMap

Eckdaten Objektnr. 1945/2123

Art: Wohnung - Etage
Land: Österreich
Baujahr: 1900
Zustand: Erstbezug
Alter: Altbau
Kaufpreis: 289.000,00
Provision: 3% des Kaufpreises zzgl. 20% USt.
Betriebskosten: 87,51 €
MwSt Gesamt: 8,75 €
Wohnfläche: 53,36 m²
Zimmer: 2
Bäder: 1
WC: 1
Keller: 1,50 m²
Heizwärmebedarf:  B  35,77 kWh/m²a
fGEE:  B  0,91
Immobilie merken Exposé

Ausstattung

Fliesen, Parkett, Gas, Etagenheizung, Fußbodenheizung, Personenaufzug, Dusche


Immobilie anfragen


Ihre persönliche Beratung

Hyatt Immobilien GmbH

Sia Hyatt

Hyatt Immobilien GmbH

T +43 664 140 47 04

H +43 664 140 47 04