Branchenfreies Gassenlokal - kein Gastro

Büro / Praxis - Bürofläche, 1180 Wien , Kreuzgasse 15


Die Büro- oder Praxisfläche in der Kreuzgasse 1180 Wien besticht durch ihre zentrale Lage. Nur wenige Schritte entfernt befinden sich das AKH sowie die U6-Station, die eine hervorragende Anbindung garantiert. In unmittelbarer Umgebung finden Sie alles, was das Leben erleichtert: Ärzte, Apotheken, Kliniken, Schulen und Universitäten. Auch Supermärkte, Bäckereien und ein Einkaufszentrum sind in der Nähe. Optimal für vielfältige Nutzung!

Beschreibung der Immobilie

Branchenfreies Gassenlokal - kein Gastro

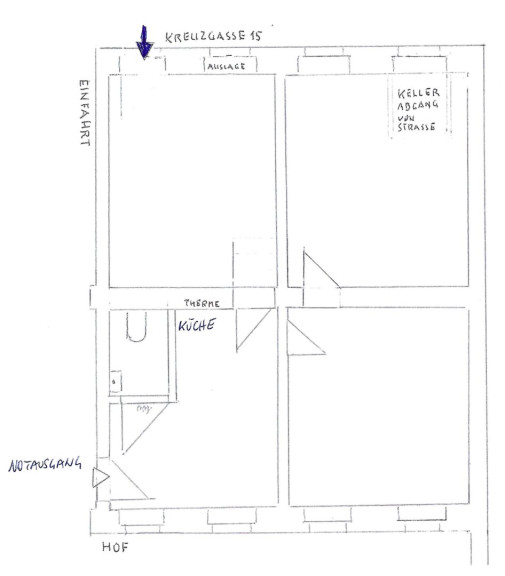
Helles Gassenlokal in der Kreuzgasse 15.



Ideale Lage für ein Büro oder Praxis - 4 Gehminuten zum AKH und U6.



Ca. 81 m² Nutzfläche - 



3 Räume - Aufenthaltsraum mit Küchenanschlüssen - Toilette - Notausgang 



Straßenseitig Eingang und Auslage - vom ersten Raum kommt man in den



Aufenthaltsraum, WC und weiter in die beiden anderen Räume.



Für nähere Informationen und Besichtigungen steht Ihnen 



Herr Stubenvoll gerne unter 0664/30 88 930 zur Verfügung.

Infrastruktur / Entfernungen

Gesundheit
Arzt <125m
Apotheke <150m
Klinik <50m
Krankenhaus <425m

Kinder & Schulen
Schule <225m
Kindergarten <250m
Universität <750m
Höhere Schule <625m

Nahversorgung
Supermarkt <75m
Bäckerei <175m
Einkaufszentrum <800m

Sonstige
Geldautomat <175m
Bank <175m
Post <150m
Polizei <150m

Verkehr
Bus <175m
U-Bahn <200m
Straßenbahn <100m
Bahnhof <250m
Autobahnanschluss <2.500m

Angaben Entfernung Luftlinie / Quelle: OpenStreetMap

Eckdaten Objektnr. 6115/3335020

Art: Büro / Praxis - Bürofläche
Land: Österreich
Zustand: Gepflegt
Alter: Altbau
Kaltmiete (netto): 1.150,00 €
Kaltmiete: 1.150,00 €
Provision: 3 Bruttomonatsmieten zzgl. 20% USt.
Nutzfläche: 81,00 m²
Bürofläche: 81,00 m²
Zimmer: 3
WC: 1
Heizwärmebedarf: 46,30 kWh/m²a
Immobilie merken Exposé

Ausstattung

Fliesen, Parkett, Gas, Etagenheizung


Immobilie anfragen


Ihre persönliche Beratung

Stubenvoll Immobilien

Ferdinand Stubenvoll

Stubenvoll Immobilien

T +43 664 30 88 940

H +436643088940