AB MÄRZ 2026 | 1 MONAT MIETFREI | 4. ETAGE | 2 ZIMMER | REININGHAUSPARK | GRAZER HAUPTBAHNHOF

Wohnung - Etage, 8020 Graz


Beschreibung der Immobilie

AB MÄRZ 2026 | 1 MONAT MIETFREI | 4. ETAGE | 2 ZIMMER | REININGHAUSPARK | GRAZER HAUPTBAHNHOF

Modernes Neubauprojekt "Reininghaus Zehn"



Mit Wohnungsgrößen von ca. 46 m² bis ca. 92 m² verfügen Sie über eine breite Auswahl von 2 bis 4 Zimmer-Wohnungen.



Ein besonderes Highlight dieses Projektes sind die Hochbeete am Dach.





Informationen zum Objekt und zur Ausstattung



Mittels Fernwärme und Fußbodenheizung werden die Einheiten versorgt.



In den einzelnen Wohneinheiten finden Sie hochwertige Küchen samt Kühlschränken, E-Herden, Backrohren, Dunstabzugshauben sowie Geschirrspülern. 



Innerhalb der Badezimmer finden Sie zusätzlich noch Handtuchtrockner und Waschmaschinenanschlüsse.



In sämtlichen Wohn- und Schlafräumen wurden Eichen-Parkettböden verlegt.



Für SAT-Fernsehen ist in den Wohnzimmern gesorgt.



Der Personenaufzug führt Sie bequem in Ihre Wohnung. In den allgemeinen Bereichen finden Sie Räume für Ihren Kinderwagen sowie für Ihr Fahrrad.



In der hauseigenen Tiefgarage haben Sie die Möglichkeit, einen oder mehrere der PKW-Stellplätze zusätzlich anzumieten, insofern zum Zeitpunkt der Anmietung Plätze verfügbar sind.



Weiters gibt es noch E-Car-Sharing sowie E-Bike-Ladestationen.





Lage



Das Projekt liegt in einer hervorragend angebundenen Verkehrslage mit dem Grazer Hauptbahnhof in der Nähe. Der Reininghauspark lädt zum Entspannen ein.



Vor allem für StudentInnen ergänzt die in der Nähe liegende FH Joanneum Graz das Bildungsangebot dieser Liegenschaft. 





An Kaution sind 3 BMM zu hinterlegen, das Abwicklungshonorar für die Hausverwaltung beträgt 349 €.

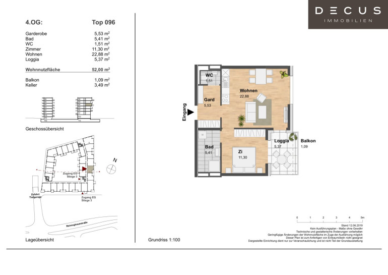
Top 96 befindet sich in der 4. Etage, ist östlich ausgerichtet und teilt sich wie folgt auf: 



  • Vorraum
  • WC
  • Bad mit Dusche
  • Zimmer 1
  • Wohnküche mit Essbereich
  • Balkon + Loggia




Bei den Bildern handelt es sich um Musterbilder aus verschiedenen Wohnungen aus dem Gebäude. Die Wohnungen werden unmöbliert vermietet.


Wir weisen darauf hin, dass zwischen dem Vermittler und dem zu vermittelnden Dritten ein familiäres oder wirtschaftliches Naheverhältnis besteht.


Der Immobilienmakler erklärt, dass er – entgegen dem in der Immobilienwirtschaft üblichen Geschäftsgebrauch des Doppelmaklers – einseitig nur für den Vermieter tätig ist.

DECUS Immobilien GmbH – Wir beleben Räume

Für weitere Informationen und Besichtigungen steht Ihnen gerne Herr  Martin Steinbauer unter der Mobilnummer +43 660 661 60 82und per E-Mail unter steinbauer@decus.at persönlich zur Verfügung.

www.decus.at | office@decus.at 

Wichtige Informationen

Bitte beachten Sie, dass per 13.06.2014 eine neue Richtlinie für Fernabsatz- und Auswärtsgeschäfte in Kraft getreten ist.

Ab 1.4.2024 entfallen die Grundbuchs- und Pfandrechtseintragungsgebühren vorübergehend für Eigenheime bis zu einer Bemessungsgrundlage von EUR 500.000,-. Voraussetzung ist das dringende Wohnbedürfnis, ausgenommen davon sind vererbte oder geschenkte Immobilien. Die Befreiung ist jedoch für den Einzelfall zu prüfen, DECUS Immobilien übernimmt hierzu keine Haftung.

Ab 01.07.2023 gilt das Erstauftraggeber-Prinzip bei Wohnungsmietverträgen, ausgenommen davon sind Dienst-/Natural-/Werkswohnungen. Wir dürfen gem. § 17 Maklergesetz darauf hinweisen, dass wir auf die Doppelmaklertätigkeit gem. § 5 Maklergesetz bei Wohnungsmietverträgen verzichten und nur noch einseitig tätig sind (bei den restlichen Vermittlungsarten nicht) und ein wirtschaftliches Naheverhältnis zu unseren Auftraggebern besteht. 

Im Falle eines Abschlusses mit Ihnen oder einem von Ihnen namhaft gemachten Dritten bzw. bei beidseitiger Willensübereinstimmung beträgt unser Honorar (lt. Honorarverordnung für Immobilienmakler) 2 Bruttomonatsmieten (BMM) bei Dienst-/Natural-/Werkwohnungen sowie Suchaufträgen, 3 BMM bei Gewerbe-, PKW-, Keller- und Lagermietverträgen sowie bei Kaufobjekten 3 % des Kaufpreises, zuzüglich der gesetzlichen Umsatzsteuer.

Dieses Objekt wird Ihnen unverbindlich und freibleibend angeboten. Oben angeführte Angaben basieren auf Informationen und Unterlagen des Eigentümers und sind unsererseits ohne Gewähr.

Nähere Informationen sowie unsere AGBs und die Nebenkostenübersichtsblatt finden Sie auf unserer Homepage www.decus.at unter "Service" - "Rechtliches zum FAGG" sowie im Anhang der zugesendeten Objekt-Exposés!

Infrastruktur / Entfernungen

Gesundheit
Arzt <500m
Apotheke <1.000m
Klinik <500m
Krankenhaus <1.000m

Kinder & Schulen
Schule <500m
Kindergarten <500m
Universität <500m
Höhere Schule <500m

Nahversorgung
Supermarkt <500m
Bäckerei <500m
Einkaufszentrum <1.500m

Sonstige
Geldautomat <500m
Bank <500m
Post <500m
Polizei <500m

Verkehr
Bus <500m
Straßenbahn <500m
Autobahnanschluss <4.000m
Bahnhof <500m
Flughafen <9.000m

Angaben Entfernung Luftlinie / Quelle: OpenStreetMap

Eckdaten Objektnr. 1151639

Art: Wohnung - Etage
Land: Österreich
Baujahr: 2018
Gesamtmiete: 769,00
Kaltmiete (netto): 556,09 €
Kaltmiete: 699,09 €
Provision: Gemäß Erstauftraggeberprinzip bezahlt der Abgeber die Provision.
Betriebskosten: 143,00 €
MwSt Gesamt: 69,91 €
Wohnfläche: 52,00 m²
Zimmer: 2
Bäder: 1
WC: 1
Balkone: 1
Keller: 3,49 m²
Heizwärmebedarf:  B  27,00 kWh/m²a
fGEE:  A  0,82
Immobilie merken Exposé

Ausstattung

Fliesen, Parkett, Fernwärme, Einbauküche, Wohnküche / offene Küche, Personenaufzug


Immobilie anfragen


Ihre persönliche Beratung

DECUS Immobilien GmbH

Martin Steinbauer

DECUS Immobilien GmbH

T +43 660 661 60 82

H +43 660 661 60 82

F +43 1 35 600 10