Rarität am BRUNNERBERG - Exklusives Baugrundstück mit Wienblick inkl. Baubewilligung für 2 Villen samt Ausführungsplanung

Haus - Einfamilienhaus, 2345 Brunn am Gebirge


Brunnerberg

Beschreibung der Immobilie

Rarität am BRUNNERBERG - Exklusives Baugrundstück mit Wienblick inkl. Baubewilligung für 2 Villen samt Ausführungsplanung

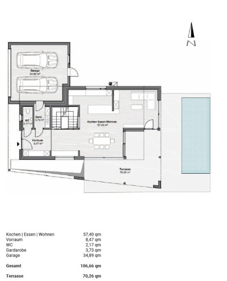
Zum Verkauf gelangen zwei außergewöhnliche Baugrundstücke mit jeweils 802 m² lt. Grundbuch in einer der exklusivsten Wohnlagen von Brunn am Gebirge – dem wunderschönen von Weingärten umgebenen Brunnerberg. Die beiden Grundstücke liegen direkt nebeneinander und können bei Bedarf auch gerne zusammen mit einer Gesamtfläche von 1.604 m² lt. Grundbuch angekauft werden. Dies eröffnet Ihnen die seltene Chance, Ihre Wunschimmobilie nach individuellen Vorstellungen zu realisieren. Ihrer Kreativität sind dabei kaum Grenzen gesetzt, und nach Fertigstellung Ihres Projekts können Sie einen beeindruckenden Fernblick bis nach Wien genießen.



Im Kaufpreis enthalten ist die bereits genehmigte Einreichplanung inklusive sämtlicher Unterlagen für die Errichtung von zwei traumhaften Villen in hochwertiger Holzbauweise.



Damit steht einem raschen Baustart Ihres künftigen Traumhauses nichts mehr im Wege. 



Auf Wunsch können die beiden Villen auch schlüsselfertig angekauft werden! (Kaufpreis auf Anfrage!)





Nutzen Sie diese einmalige Gelegenheit, in eine Wohnzukunft mit außergewöhnlichem Potenzial zu investieren, und sichern Sie sich einen der wenigen noch verfügbaren Bauplätze in dieser begehrten Umgebung.





Für weitere Informationen oder eine persönliche Besichtigung stehen wir Ihnen selbstverständlich gerne zur Verfügung.




Lage



Das Grundstück befindet sich in einer sonnigen Höhenlage im bevorzugten Wohngebiet von Brunn am Gebirge am wunderschönen Brunnerberg. 





Weitblick & Natur



Die Umgebung ist geprägt von gepflegten Grünflächen, Wiesen und einem sanft geneigten Hang, der ein besonders angenehmes Wohngefühl vermittelt. Die erhöhte Position garantiert freie Panoramaaussichten – insbesondere auf das Stadtbild Wiens – und bietet damit einen besonderen Mehrwert für Ihr zukünftiges Zuhause.





Optimale Erreichbarkeit & Infrastruktur




  • Rasche Anbindung: In wenigen Fahrminuten erreichen Sie die Auffahrt A21 (Südautobahn) und somit eine schnelle Verbindung nach Wien oder Mödling



  • Öffentlicher Verkehr: Bushaltestelle in unmittelbarer Nähe, S-Bahn-Station Mödling ebenfalls schnell erreichbar



  • Nahversorgung: Bäckerei, Supermarkt und weitere Einkaufsmöglichkeiten sind in rund 5 Minuten erreichbar



  • Familienfreundliche Infrastruktur: Schulen, Kindergärten, Ärzte und Apotheken befinden sich im Umkreis von 5–10 Minuten






Freizeit direkt vor Ort




  • Spazier- und Laufwege führen durch die nahen Grünzonen



  • Ideale Erholung: Nähe zum Wienerwald, zum Golfclub Brunn am Gebirge sowie zur Perchtoldsdorfer Heide



  • Kultur & Freizeit in Wien: in etwa 20–25 Minuten mit dem Auto oder bequem mit öffentlichen Verkehrsmitteln erreichbar



Wir weisen darauf hin, dass zwischen dem Vermittler und dem zu vermittelnden Dritten ein familiäres oder wirtschaftliches Naheverhältnis besteht.

Infrastruktur / Entfernungen

Gesundheit
Arzt <1.000m
Apotheke <1.500m
Klinik <3.000m
Krankenhaus <2.000m

Kinder & Schulen
Schule <500m
Kindergarten <1.000m
Höhere Schule <4.500m
Universität <9.000m

Nahversorgung
Supermarkt <1.500m
Bäckerei <1.500m
Einkaufszentrum <3.500m

Sonstige
Bank <1.500m
Geldautomat <1.500m
Post <1.500m
Polizei <1.500m

Verkehr
Bus <500m
U-Bahn <4.500m
Straßenbahn <3.000m
Bahnhof <2.000m
Autobahnanschluss <1.000m

Angaben Entfernung Luftlinie / Quelle: OpenStreetMap

Eckdaten Objektnr. 199397033

Art: Haus - Einfamilienhaus
Land: Österreich
Zustand: Projektiert
Alter: Neubau
Kaufpreis: 990.000,00
Provision: 3% des Kaufpreises zzgl. 20% USt.
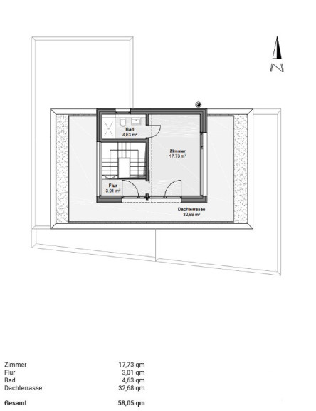
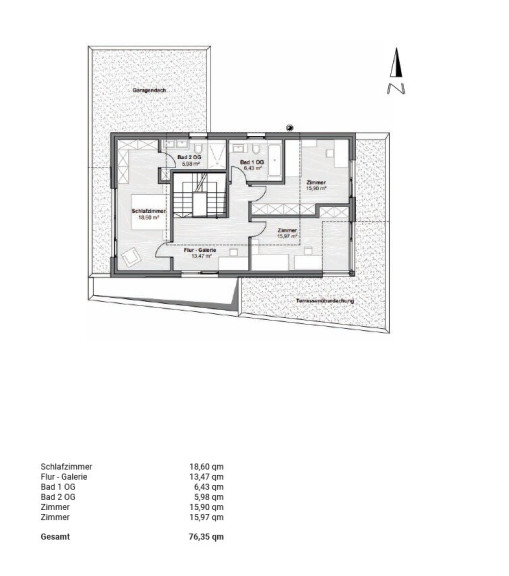
Wohnfläche: 208,38 m²
Nutzfläche: 275,88 m²
Grundstücksfl.: 802,00 m²
Zimmer: 5
Bäder: 4
WC: 5
Terrassen: 2
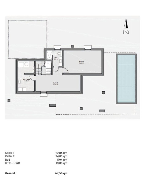
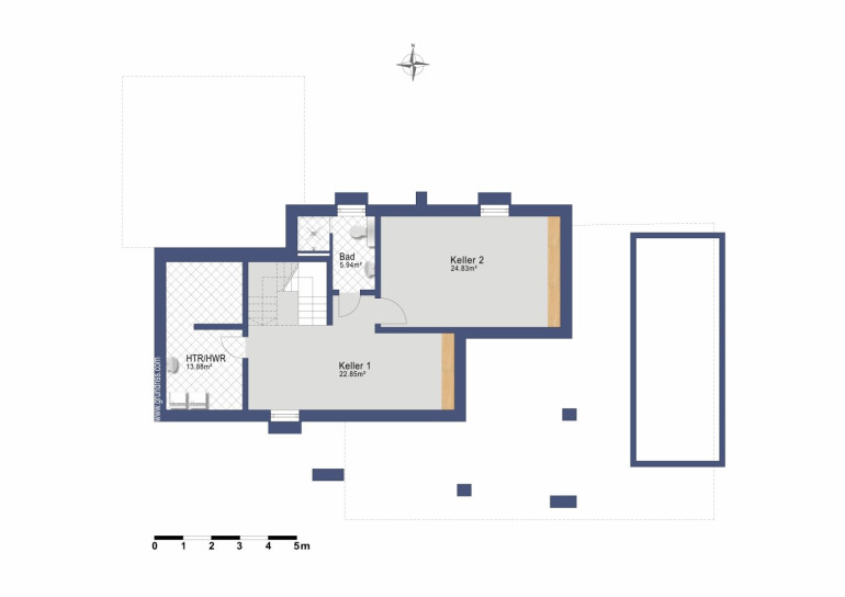
Keller: 67,50 m²
Heizwärmebedarf:  B  39,10 kWh/m²a
fGEE:  A+  0,62
Immobilie merken Exposé

Immobilie anfragen


Ihre persönliche Beratung

Lorenz Real Construct Immobilien GmbH

Ing. Dominic Lorenz

Lorenz Real Construct Immobilien GmbH

T +43 1 9977290

H +43 660 37 99 66 1