Exklusives, schlüsselfertiges Reihenhaus nahe der Seestadt Aspern – sofort beziehbar! - Haus 6

Haus - Reihenhaus, 1220 Wien


Essling - nahe der Seestadt Aspern

Beschreibung der Immobilie

Exklusives, schlüsselfertiges Reihenhaus nahe der Seestadt Aspern – sofort beziehbar! - Haus 6

Zum Verkauf steht ein hochwertig ausgestattetes, schlüsselfertiges Reihenhaus, das modernes Wohnen mit einem großzügigen Raumangebot vereint. Ideal für Familien, Paare oder alle, die Komfort und Qualität schätzen. Die ruhige Lage in der Esslinger Wohnstraße bietet Erholung im Grünen, während die Seestadt Aspern nur wenige Minuten entfernt liegt.





Highlights



  • Wohnfläche: 112,49 m² (EG, OG + DG)
  • Freiflächen ca. 46,02 m²
  • Nutzfläche gesamt: ca. 158,51 m² (KG, EG, OG + DG)
  • Studio im Dachgeschoss – ideal als Homeoffice oder Gästezimmer
  • Großzügige Wohnküche mit direktem Zugang zur Terrasse und in den Garten
  • Drei helle Schlafzimmer im Obergeschoss
  • Hochwertige Ausstattung mit Eichenparkett, Feinsteinzeug, großzügigen Fensterflächen mit elektrischem Sonnenschutz, Luftwärmepumpe & Fußbodenheizung
  • Sofort verfügbar – Erstbezug




Der Grundriss gliedert sich wie folgt:



Erdgeschoss



  • Vorraum
  • WC
  • Wohnküche (ca. 26,12 m²)
  • Terrasse (ca. 8,75 m²)
  • Garten (ca. 68,1 m²)




Obergeschoss



  • Vorraum
  • Zimmer 1 (ca. 10,57 m²)
  • Zimmer 2 (ca. 11,01 m²)
  • Zimmer 3 (ca. 13,08 m²)
  • Badezimmer mit WC, Badewanne und Doppelwaschtisch
  • 2 Balkone (ca. 6,20 m² und 2,92 m²)




Dachgeschoss



  • Großes Studio (ca. 23,72 m²)
  • separates WC mit Handwaschbecken




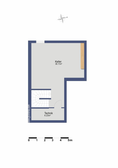
Keller



  • Großer Kellerraum (ca. 36,11 m²)
  • Technikraum (ca. 6,23 m²)




Virtueller Rundgang:



https://my.matterport.com/show/?m=yDxBe1nN4eF



(Link bitte kopieren und in Ihrem Browser einfügen)





Ausstattung & Bauweise



Das Projekt wurde in hochwertiger Massivbauweise (MABA-System) errichtet und überzeugt mit langlebigen, hochwertigen Materialien:



  • Eiche-Parkettboden und edles Feinsteinzeug
  • Sanitärausstattung von Laufen, Armaturen von Hansgrohe
  • 3-fach verglaste Kunststoff-Alu-Fenster mit elektrischem Sonnenschutz
  • Fußbodenheizung & Warmwasser über energieeffiziente Luftwärmepumpe
  • Hochwertige Balkon- & Terrassenbeläge, moderne Außenanlagen




Lage – Wohnen im Grünen mit perfekter Anbindung



Die attraktive Grünlage verbindet ruhige Wohnqualität mit urbaner Infrastruktur. Das neue Wohnensemble liegt im beliebten Stadtteil Essling, nahe der Seestadt Aspern.





Infrastruktur & Anbindung



  • U2 Seestadt in ca. 10 Minuten zu Fuß erreichbar
  • Bus 99A/99B nur 3 Gehminuten entfernt
  • Bahnhof Aspern Nord in wenigen Minuten erreichbar
  • Einkaufsmöglichkeiten (Spar, Billa, Lidl, Pagro) im Umkreis von nur 2 km
  • Klinik Donaustadt (SMZ Ost) ca. 10 Minuten per Auto
  • Himmelteich nur 250 m entfernt
  • Nähe zur Lobau




Fazit



Hier haben Sie die Chance ein hochwertiges, modernes Reihenhaus zu erwerben, das sofort bezogen werden kann – perfekt für alle, die ein neues, energieeffizientes Zuhause ohne Bauverzögerungen und mit viel Platz suchen.





Ein nahezu identes Reihenhaus auf der selben Liegenschaft ist ebenfalls noch verfügbar.



Gerne senden wir Ihnen auch von diesem Objekt weiterführende Unterlagen zu.





Anmerkung: Einige Fotos wurden mit KI bearbeitet. Die auf den Fotos ersichtliche Möblierung im Wohnzimmer ist lediglich ein visueller Einrichtungsvorschlag.





Fotos by © RealAgency


Wir weisen darauf hin, dass zwischen dem Vermittler und dem zu vermittelnden Dritten ein familiäres oder wirtschaftliches Naheverhältnis besteht.

Infrastruktur / Entfernungen

Gesundheit
Arzt <1.000m
Apotheke <1.500m
Klinik <1.500m
Krankenhaus <4.500m

Kinder & Schulen
Schule <1.000m
Kindergarten <1.000m
Universität <1.000m
Höhere Schule <1.500m

Nahversorgung
Supermarkt <1.000m
Bäckerei <1.000m
Einkaufszentrum <3.000m

Sonstige
Geldautomat <3.000m
Bank <1.500m
Post <1.500m
Polizei <1.500m

Verkehr
Bus <500m
U-Bahn <1.000m
Straßenbahn <1.500m
Bahnhof <1.000m
Autobahnanschluss <5.000m

Angaben Entfernung Luftlinie / Quelle: OpenStreetMap

Eckdaten Objektnr. 199397036

Art: Haus - Reihenhaus
Land: Österreich
Baujahr: 2023
Zustand: Erstbezug
Alter: Neubau
Kaufpreis: 679.000,00
Provision: 3% des Kaufpreises zzgl. 20% USt.
Wohnfläche: 112,49 m²
Nutzfläche: 158,51 m²
Zimmer: 4
Balkone: 2
Terrassen: 3
Garten: 72,69 m²
Keller: 46,02 m²
Heizwärmebedarf:  B  37,80 kWh/m²a
fGEE:  A+  0,70
Immobilie merken Exposé

Ausstattung

Parkett, Fliesen, Fußbodenheizung, Wohnküche / offene Küche, Ostbalkon, Westbalkon, Bad mit Fenster, Badewanne, Kabel/Satelliten-TV


Immobilie anfragen


Ihre persönliche Beratung

Lorenz Real Construct Immobilien GmbH

Ing. Dominic Lorenz

Lorenz Real Construct Immobilien GmbH

T +43 1 9977290

H +43 660 37 99 66 1