Beschreibung der Immobilie
2-Zimmer-Eigentumswohnung in gefragter Lage
961/35848
Lage:
Diese attraktive 2-Zimmer-Eigentumswohnung befindet sich in einer begehrten und zentralen Wohnlage im beliebten Stadtteil Leoben-Judendorf.
Dank ihrer Nähe zum Stadtzentrum genießen Sie sämtliche Vorteile einer ausgezeichneten Infrastruktur: Einkaufsmöglichkeiten, Restaurants, Ärzte und Apotheken sind nur wenige Gehminuten entfernt.
Das Zentrum von Leoben sowie die Universität und der Bahnhof sind ebenfalls schnell erreichbar – eine perfekte Kombination aus urbaner Lebensqualität und ruhigem Wohnen.
Objektbeschreibung:
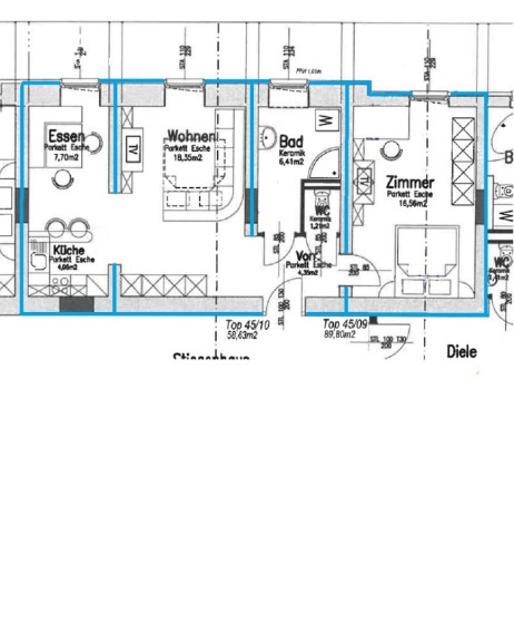
Die Wohnung befindet sich im 2. Stock (ohne Lift) eines 2011 umfassend sanierten Mehrparteienhauses und hat eine Wohnnutzfläche von 58,36m² und zeichnet sich durch eine durchdachte Raumaufteilung aus.
Raumaufteilung: Eingangsbereich ,Küche-Essbereich, Wohnzimmer, Schlafzimmer, Badezimmer, WC.
Die Wohnung verfügt über eine moderne Küche inkl. Elektrogeräten, die in der Wohnung verbleibt.
Der südseitig ausgerichete Balkon ist im Halbstock über das Treppenhaus zu erreichen und hat eine Nutzfläche von 13,34m².
Die Beheizung erfolgt über eine Gas-Zentralheizung mit Fußbodenheizung. Die Kosten sind in der monatlichen Vorschreibung bereits enthalten.
Epoxidharzböden runden das moderne Wohngefühl ab.
Ausstattung & Highlights:
Tolle Raumaufteilung: Die Wohnung besticht durch ihre ideale Raumaufteilung, die sowohl gemütlich als auch funktional ist. Der Eingangsbereich führt direkt in den großzügigen Wohnbereich mit offenem Zugang zum Essbereich und der modernen Küche.
Balkon: Der Balkon bietet zusätzlichen Freiraum und lädt zum Entspannen ein – ein wahres Highlight, um den Feierabend in Ruhe zu genießen.
Parkplatz: Zur Wohnung gehört ein eigener Stellplatz, der Ihnen komfortables Parken ermöglicht.
Beheizung: Die Beheizung erfolgt über eine Gas-Zentralheizung (Fußbodenheizung), was für eine angenehme Wärme sorgt und gleichzeitig eine energiesparende Lösung darstellt.
Gute Infrastruktur: Bushaltestelle in unmittelbarer Nähe. Hauptbahnhof Bahnhof, s Bahnhofe Leoben-Lerchenfeld und die Autobahnanbindung erreichen Sie in wenigen Minuten.
Kellerabteil: eigenes Kellerabteil und Allgemeinflächen für Fahrräder usw.
sofort beziehbar
günstige BK inkl. Heizungskosten
Wenn Sie Interesse an der angebotenen Immobilie haben bitte ich um Kontaktaufnahme per Mail unter markus.letonja@sreal.at
Bitte mit Angabe ihrer Daten (Name, Adresse, Ort, PLZ, Telefonnummer, und Mailadresse)
HWB: 50,7 kWh/m²a
Kaufpreis: € 129.000,- Lastenfreie Übernahme
BK: € 261,16.- (inkl. Heizung, Instandhaltung)
Honorar: 3% vom Kaufpreis zzgl. 20% MwSt.
Infrastruktur / Entfernungen
Gesundheit
Arzt <500m
Apotheke <500m
Krankenhaus <1.500m
Kinder & Schulen
Schule <500m
Kindergarten <1.500m
Universität <500m
Höhere Schule <1.000m
Nahversorgung
Supermarkt <500m
Bäckerei <1.000m
Einkaufszentrum <1.000m
Sonstige
Bank <1.000m
Geldautomat <1.000m
Post <1.000m
Polizei <1.000m
Verkehr
Bus <500m
Autobahnanschluss <2.000m
Bahnhof <1.000m
Angaben Entfernung Luftlinie / Quelle: OpenStreetMap
Eckdaten Objektnr. 961/35848
| Art: | Wohnung |
| Land: | Österreich |
| Baujahr: | 1900 |
| Möbliert: | Voll |
| Kaufpreis: | 129.000,00 € |
| Provision: | 3% des Kaufpreises zzgl. 20% USt. |
| Betriebskosten: | 84,17 € |
| Heizkosten: | 90,00 € |
| MwSt Gesamt: | 26,42 € |
| Nutzfläche: | 58,63 m² |
| Zimmer: | 2 |
| Bäder: | 1 |
| WC: | 1 |
| Balkone: | 1 |
| Stellplätze: | 1 |
| Heizwärmebedarf: | C 50,70 kWh/m²a |
| fGEE: | B 0,98 |
Ausstattung
Gas, Fußbodenheizung
Ihre persönliche Beratung
Dieser Makler ist ein offizielles Mitglied des IR – ir.at Mehr Erfahren

