Einziehen und wohlfühlen: modernes Einfamilienhaus mit schönem Weitblick in Obermarkersdorf

Haus , 2073 Obermarkersdorf


Nähe Retz

Beschreibung der Immobilie

Einziehen und wohlfühlen: modernes Einfamilienhaus mit schönem Weitblick in Obermarkersdorf

Modernes Einfamilienhaus in Obermarkersdorf, ca. 133 m² Wohnfläche, ca. 500 m² Grund, 5 Zimmer, Wärmepumpe, Fußbodenheizung, Weitblick.



Dieses moderne Einfamilienhaus in ruhiger Wohnlage in Obermarkersdorf bietet auf ca. 133 m² Wohnfläche ein hochwertiges Zuhause für Familien oder Paare mit Platzbedarf. Die durchdachte Raumaufteilung auf zwei Ebenen, die zeitgemäße Haustechnik mit Wärmepumpe und Fußbodenheizung sowie der sehr schöne Weitblick schaffen ein angenehmes Wohnambiente. Glasfaseranschluss und Jalousien erhöhen den Wohnkomfort zusätzlich. Die Lage kombiniert ruhiges Wohnen mit guter Erreichbarkeit zum Bahnhof & Nahversorgern in Retz.



Eckdaten:



  • Wohnfläche: ca. 133 m²
  • Grundstück: ca. 500 m²
  • Zimmer: 4 Schlafzimmer (1 im EG, 3 im OG) plus Wohn-/Essbereich
  • Heizung: Wärmepumpe, Fußbodenheizung
  • Internet: Glasfaseranschluss Sonnenschutz: Jalousien
  • Besonderheit: sehr schöner Weitblick
  • Nutzung: ideal für Familien oder Wohnen & Arbeiten unter einem Dach


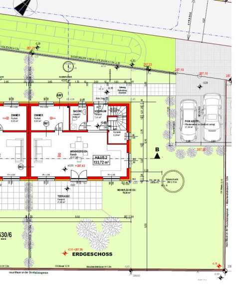
Raumaufteilung



Erdgeschoss (EG):



  • Vorraum
  • Großzügiges Wohn-Esszimmer
  • Komplett ausgestattete Küche mit neuwertigen Geräten
  • Zimmer (z.B. Gästezimmer, Büro oder Schlafzimmer)
  • Badezimmer mit Dusche und Waschbecken, WC
  • Abstellraum mit Waschmaschinenanschluss Raumaufteilung


Obergeschoss (OG):



  • 3 Schlafzimmer
  • Badezimmer mit Badewanne, Dusche & Waschbecken
  • Separates WC
  • Abstellraum (auch als Büro nutzbar)


Ausstattung & Komfort:



  • Moderne, voll ausgestattete Küche mit neuwertigen Geräten
  • Zwei Badezimmer (Dusche im EG, Badewanne & Dusche im OG)
  • Separates WC im Obergeschoss
  • Mehrere Abstellräume für zusätzlichen Stauraum Jalousien für Sonnenschutz und Privatsphäre
  • Flexible Nutzung eines Zimmers bzw. Abstellraums als Homeoffice/Büro
  • Terrasse und Garten mit schönem Blick ins Weite Abstellfläche für 2 Autos


Technik & Energie:



  • Heizung mittels Wärmepumpe (energieeffizient, zukunftsorientiert)
  • Fußbodenheizung für ein gleichmäßiges und angenehmes Raumklima Glasfaseranschluss – ideal für Homeoffice, Streaming und moderne Kommunikation


Lage & Anbindung:



Das Einfamilienhaus befindet sich im Ort Obermarkersdorf im Retzer Land. Der Ort eignet sich besonders für Menschen, die Ruhe und Natur schätzen und trotzdem eine gute Anbindung an umliegende Städte möchten. Die Region ist geprägt von Weingärten, gut ausgebauten Rad- und Wanderwegen sowie Ausflugszielen wie der Retzer Windmühle, dem historischen Stadtzentrum von Retz und dem nahegelegenen Nationalpark Thayatal.



Infrastruktur:



Nahversorgung: Im nahegelegenen Retz (ca. 5 Autominuten entfernt) finden Sie alle wichtigen Einrichtungen wie Supermärkte, Ärzte, Apotheken, Restaurants und Schulen. Bildung: Kindergärten und Schulen sind sowohl im Ort als auch in den umliegenden Gemeinden gut erreichbar. Verkehrsanbindung: Obermarkersdorf liegt verkehrsgünstig, mit einer schnellen Anbindung an die S3 und einer Bahnanbindung in Retz. Wien ist in ca. 1 Stunde erreichbar Gastronomie: Das Wirtshaus FRANZ JOSEPH im Obermarkersdorfer Zentrum hat sich in den letzten Jahren zu einem hervorragenden Lokal etabliert und lädt mit seinen ausgezeichneten Speisen zum Verweilen ein.



Preise & Details:



Kaufpreis: EUR 384.000,-

Provision: 3 % des Kaufpreises zzgl. USt.



Kontaktieren Sie uns gerne für weitere Informationen oder einen Besichtigungstermin. Wir freuen uns auf Ihre Anfrage!

Eckdaten Objektnr. 6891/309

Art: Haus
Land: Österreich
Baujahr: 2021
Zustand: Neuwertig
Alter: Neubau
Kaufpreis: 384.000,00
Provision: 3% des Kaufpreises zzgl. 20% USt.
Wohnfläche: 133,72 m²
Grundstücksfl.: 500,00 m²
Zimmer: 5
Bäder: 2
WC: 2
Terrassen: 1
Stellplätze: 2
Heizwärmebedarf:  B  35,80 kWh/m²a
fGEE:  A+  0,61
Immobilie merken Exposé

Ausstattung

Parkett, Fliesen, Fußbodenheizung, Einbauküche, Dusche, Bad mit Fenster, Badewanne, Parkplatz


Immobilie anfragen


Ihre persönliche Beratung

ullrich-immo GmbH

Alexander Ullrich

ullrich-immo GmbH

T +43 664 242 20 62

H 0664 2422062