Traumhafte Doppelhaushälfte in Rutzing – mit Pool, Kamin und großzügigem Garten!

Haus - Doppelhaushälfte, 4063 Rutzing


Beschreibung der Immobilie

Traumhafte Doppelhaushälfte in Rutzing – mit Pool, Kamin und großzügigem Garten!

Traumhafte Doppelhaushälfte in Rutzing –  mit Pool, Kamin und großzügigem Garten!



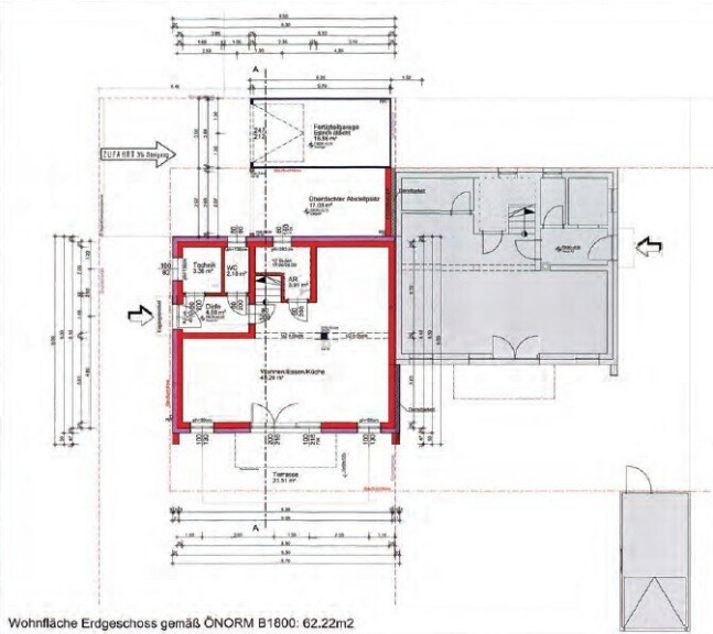
In Hörsching gelangt eine moderne Doppelhaushälfte mit rund 125 m² Wohnfläche auf einem 351 m² großen Grundstück zum Verkauf. Das Haus besticht durch eine durchdachte Raumaufteilung, hochwertige Ausstattung und zahlreiche Extras, die ein komfortables Wohnen ermöglichen. Im Erdgeschoss erwartet Sie ein großzügiger Wohn- und Essbereich mit Kamin, der für eine angenehme Atmosphäre sorgt. Von hier aus gelangen Sie auf die Terrasse und in den Garten – ein idealer Platz zum Entspannen oder für gesellige Stunden mit Familie und Freunden. Die Küche der Marke Breitschopf überzeugt durch modernes Design und praktische Ausstattung. Ergänzt wird das Raumangebot dieser Ebene durch ein Gäste-WC sowie den Technikraum und einen Abstellraum. Im Erdgeschoss befinden sich ebenfalls die 2 Carport-Stellplätze. Eine Wallbox ist ebenfalls vorhanden. Das Obergeschoss bietet drei helle Zimmer, die sich als Schlafzimmer, Kinderzimmer oder Büro eignen. Das Badezimmer ist mit Badewanne, Dusche und Doppelwaschbecken ausgestattet und erfüllt höchste Ansprüche an Komfort. Besonders attraktiv ist der Außenbereich: Ein Pool mit den Maßen 5 x 3 Meter und einer Tiefe von 1,60 Metern sorgt für Erfrischung an warmen Tagen, die Terrasse mit elektrischer Markise bietet zusätzlichen Wohnkomfort. Ein Brunnen erleichtert die Gartenbewässerung. Auch technisch ist das Haus auf einem modernen Stand. Eine Luftwärmepumpe in Kombination mit Fußbodenheizung und Wohnraumlüftung sorgt für ein angenehmes Klima. Sicherheitsbewusstsein unterstreichen die installierte Alarmanlage und die 3-fach verglasten Fenster.



Raumaufteilung



EG: Diele - Wohn/Essbereich - Terrasse - Abstellraum - Technikraum - Gäste WC



OG: Schlafzimmer - Kinderzimmer - Büro - Badezimmer mit WC - Balkon 



Sie haben Interesse?
Ansehen lohnt sich - wir freuen uns über Ihr Interesse! Für weitere Fragen stehen wir Ihnen gerne unter der Rufnummer 0664 998 84 059 zur Verfügung.

Auf Wunsch stellen wir gerne einen Kontakt zu Finanzierungsexperten her.



Rechtliche Informationen
Bitte beachten Sie, dass aufgrund unserer ALLEINBEAUFTRAGUNG und Nachweispflicht für den Abgeber ausschließlich Anfragen unter Angabe Ihrer VOLLSTÄNDIGEN DATEN bearbeiten können (NAME, ANSCHRIFT, E-Mail, Telefonnummer).

Explizit weisen wir darauf hin, dass alle Angaben nach bestem Wissen erstellt wurden. Irrtümer, Druckfehler und Änderungen vorbehalten. Für Auskünfte u. Angaben, die uns vonseiten der Eigentümer und Dritten zur Verfügung gestellt wurden, können wir keine Haftung übernehmen. Besichtigungen u. Beratungen erfolgen kostenlos, lediglich im Falle einer erfolgreichen Vermittlung ist die gesetzliche Provision zur Zahlung fällig.


Der Vermittler ist als Doppelmakler tätig.

Infrastruktur / Entfernungen

Gesundheit
Arzt <2.000m
Apotheke <2.000m
Klinik <5.500m

Kinder & Schulen
Kindergarten <1.000m
Schule <2.000m
Universität <10.000m

Nahversorgung
Supermarkt <1.000m
Bäckerei <3.000m
Einkaufszentrum <5.500m

Sonstige
Bank <2.500m
Geldautomat <2.000m
Post <1.500m
Polizei <2.000m

Verkehr
Bus <500m
Bahnhof <3.500m
Straßenbahn <5.000m
Autobahnanschluss <2.500m
Flughafen <3.500m

Angaben Entfernung Luftlinie / Quelle: OpenStreetMap

Eckdaten Objektnr. 5950/4391

Art: Haus - Doppelhaushälfte
Land: Österreich
Baujahr: 2011
Zustand: Gepflegt
Kaufpreis: 569.000,00
Provision: 3% des Kaufpreises zzgl. 20% USt.
Betriebskosten: 56,00 €
Sonstige Kosten: 150,00 €
Wohnfläche: 125,14 m²
Grundstücksfl.: 351,00 m²
Zimmer: 4
Bäder: 1
WC: 2
Balkone: 1
Terrassen: 1
Garten: 170,00 m²
Heizwärmebedarf:  B  44,00 kWh/m²a
fGEE:  A+  0,57
Immobilie merken Exposé

Ausstattung

Fliesen, Parkett, Fußbodenheizung, Einbauküche, Badewanne, Dusche, Garage, Alarmanlage, Swimmingpool


Immobilie anfragen


Ihre persönliche Beratung

Thomas Girkinger Immobilien GmbH

Dominik Rogl

Thomas Girkinger Immobilien GmbH

T +43 732 77 52 00

H +43 664 998 84 059