++ Kinderglück und Lebensqualität I MB IMMOBILIEN ++

Haus - Doppelhaushälfte, 2392 Sulz im Wienerwald , Raitlstraße


in einer ruhigen Gasse gelegen im Speckgürtel von Wien

Beschreibung der Immobilie

++ Kinderglück und Lebensqualität I MB IMMOBILIEN ++

Schlüsselfertige Doppelhaushälfte mit Südgarten – Neubau in Sulz im Wienerwald



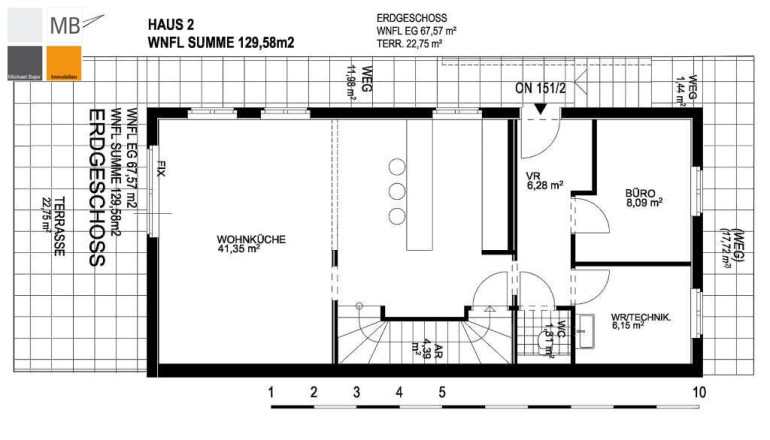
Topgeplantes Holzmassivhaus mit 6 Zimmern, hochwertiger Ausstattung und sonnigem Eigengrund direkt am Waldrand – nur 8 Fahrminuten von Wien!



Highlights: • Ca. 130 m² Wohnfläche auf 2 Etagen • Südseitiger Garten mit Rollrasen, Terrasse mit Wasseranschluss, Holzzaun • Fußbodenheizung, elektrische Außenjalousien, 3-fach Isolierverglasung mit Sonnenschutz • Feinsteinzeug in Nassräumen, Sicherheits-Eingangstüre • Schlüsselfertig – modernes Design & Top Preis-Leistungs-Verhältnis



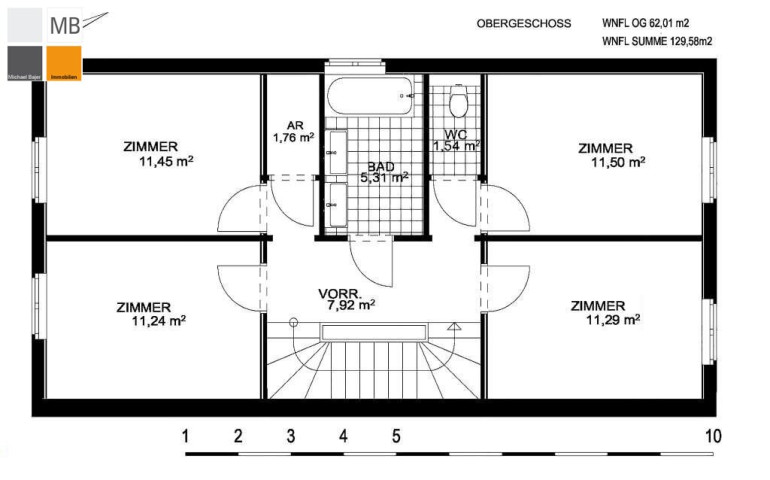
Raumaufteilung: • EG: offener Wohn-/Essbereich mit Gartenzugang, Gästezimmer/Büro, WC, Technikraum, Abstellraum • OG: 4 helle Schlafzimmer, Bad mit Wanne, WC, Vorraum, Abstellraum



Lage & Infrastruktur: • Verkehrsberuhigte Ruhelage im Biosphärenpark Wienerwald • Nahversorger, Arzt, Apotheke, Post, Bank, Restaurants, Spielplatz, Tennisplätze, Reitställe in Gehnähe • Busstation Richtung Bahnhof Mödling & Liesing „ums Eck“ • A21-Anschluss Heiligenkreuz/Hinterbrühl ca. 2 km entfernt



Verfügbarkeit & Preis:
• Haus 1: EUR 575.000 – verfügbar

• Haus 2: EUR 575.000 – verfügbar

• Haus 3 & 4: verkauft

 



📞 Jetzt Besichtigung vereinbaren und Ihr neues Zuhause im Wienerwald sichern!


Roswitha Adler

0676/4554 267
adler@mb-immobilien.at
Bin (fast) jederzeit erreichbar! Einzelbesichtigung flexibel und spontan möglich.




+++ wir kümmern uns auch um Ihre Finanzierung! +++





Wir weisen auf unser wirtschaftliches Nahverhältnis mit dem Abgeber und auf unsere Vermittlungstätigkeit als Doppelmakler hin.



Die von uns gemachten Angaben beruhen auf Informationen und Mitteilungen durch Dritte, insbesondere durch die Verkäufer und sind daher ohne Gewähr.





Infrastruktur / Entfernungen

Gesundheit
Arzt <500m
Apotheke <5.750m
Klinik <6.250m
Krankenhaus <9.500m

Kinder & Schulen
Schule <3.750m
Kindergarten <2.750m
Höhere Schule <5.000m
Universität <5.000m

Nahversorgung
Supermarkt <500m
Bäckerei <6.000m

Sonstige
Bank <500m
Geldautomat <500m
Post <5.000m
Polizei <6.250m

Verkehr
Bus <500m
Autobahnanschluss <4.000m
Bahnhof <10.000m

Angaben Entfernung Luftlinie / Quelle: OpenStreetMap

Eckdaten Objektnr. 4519

Art: Haus - Doppelhaushälfte
Land: Österreich
Baujahr: 2025
Zustand: Erstbezug
Alter: Neubau
Kaufpreis: 550.000,00
Provision: 3% des Kaufpreises zzgl. 20% USt.
Wohnfläche: 131,00 m²
Grundstücksfl.: 363,41 m²
Zimmer: 6
Bäder: 1
WC: 2
Terrassen: 1
Stellplätze: 2
Garten: 200,00 m²
Heizwärmebedarf:  B  37,30 kWh/m²a
Immobilie merken Exposé

Ausstattung

Steinboden, Parkett, Fußbodenheizung, Wohnküche / offene Küche, Südbalkon, Bad mit Fenster, Badewanne, Dusche, Kabel/Satelliten-TV, Parkplatz


Immobilie anfragen


Ihre persönliche Beratung

Michael Bajer Immobilien

Roswitha Adler

Michael Bajer Immobilien

H +43 676 45 54 267