360° TOUR // GESCHÄFTSLOKAL am DONAUKANAL

Einzelhandel , 1020 Wien


Beschreibung der Immobilie

360° TOUR // GESCHÄFTSLOKAL am DONAUKANAL

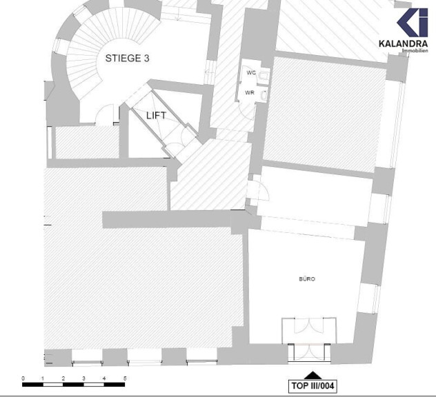
ECK- GESCHÄFTSLOKAL



Dieses im Erdgeschoß eines Jahrhundertwendehauses gelegene Lokal mit direktem Straßeneingang gliedert sich wie folgt:



Raumaufteilung:

ein großer Geschäfts-/ Büroraum, der weiter teilbar wäre, ein zugeordnetes WC mit Waschraum ist unmittelbar über den stiegenhausseitigen Ausgang erreichbar.



Ausstattung:

- Bodenbelag: anthrazit-graue Fliesen-Platten

- Gewölbestruktur

- große Glasportale - Eingang mit Glas-Windfang

- modern verfliestes WC

- Cat 5-Verkabelung

- Lichtschalter mit Bewegungssensoren

- Hauszentralheizung (Fernwärme Wien)



Ein monatlicher Akontobetrag für die Beheizung wird von Fernwärme Wien in Höhe von € 60,76 + 20% USt. gesondert vorgeschrieben.



Infrastruktur:

- werbewirksame Verkehrs-Frequenzlage am Donaukanal,

- öffentliche Anbindung:

- U-Bahn: U1-Station Nestroyplatz ist wenige Gehminuten entfernt.

- Straßenbahn: Linie O hält um die Ecke



Es werden 6 Bruttomonatsmieten als Kautionsbetrag verlangt (Bankgarantie möglich).

Angeboten wird ein auf 10 Jahr befristetes Mietverhältnis mit 3-jährigem, mieterseitigen Kündigungsverzicht.



360° Tour:

https://360.kalandra.at/view/portal/id/VV3J2

Infrastruktur / Entfernungen

Gesundheit
Arzt <500m
Apotheke <500m
Klinik <1.000m
Krankenhaus <1.000m

Kinder & Schulen
Schule <500m
Kindergarten <500m
Universität <500m
Höhere Schule <2.000m

Nahversorgung
Supermarkt <500m
Bäckerei <500m
Einkaufszentrum <1.000m

Sonstige
Geldautomat <500m
Bank <500m
Post <500m
Polizei <500m

Verkehr
Bus <500m
U-Bahn <500m
Straßenbahn <500m
Bahnhof <500m
Autobahnanschluss <3.000m

Angaben Entfernung Luftlinie / Quelle: OpenStreetMap

Eckdaten Objektnr. 14418

Art: Einzelhandel
Land: Österreich
Baujahr: 1900
Zustand: Neuwertig
Kaltmiete (netto): 637,00 €
Kaltmiete: 752,15 €
Provision: 3 Bruttomonatsmieten zzgl. 20% USt.
Betriebskosten: 115,15 €
MwSt Gesamt: 150,43 €
Nutzfläche: 49,00 m²
WC: 1
Heizwärmebedarf:  D  124,00 kWh/m²a
Immobilie merken Exposé

Ausstattung

Zentralheizung, Personenaufzug


Immobilie anfragen


Ihre persönliche Beratung

KALANDRA Immobilien Robert Kalandra e.U.

Mag. Robin Kalandra

KALANDRA Immobilien Robert Kalandra e.U.

T +43-1533326913

H +43-69911804004

F +43-1-533-32-69-20