360 TOUR // BÜROFLÄCHE IM FABIANIHAUS

Büro / Praxis , 1030 Wien


Beschreibung der Immobilie

360 TOUR // BÜROFLÄCHE IM FABIANIHAUS

Bürofläche im Portois & Fix-Haus



Diese ca. 33648m² große Bürofläche ist im 4.Stock eines Jahrhunderwendehauses gelegen.



Das Firmenhaus in Ungargasse wurde zwischen 1899 und 1901 nach Plänen Max Fabianis erbaut.

Es ist sein frühestes Werk, womit er unbeeinflusst von Otto Wagner und den Secessionisten den neuen Typus eines Wohn- und Geschäftshauses schuf.

Die Fassade der Hauptgeschoße ist mit einer färbigen Fliesenverkleidung der ungarischen Firma Zsolnay geschmückt.



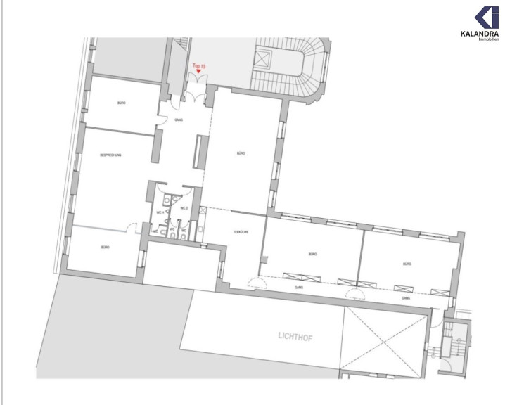
Raumaufteilung



zentraler Flur, 6 Büroräume, 4 Wc, 1 Serverraum, 2 Archive,



 

Infrastruktur / Entfernungen

Gesundheit
Arzt <500m
Apotheke <500m
Klinik <500m
Krankenhaus <500m

Kinder & Schulen
Schule <500m
Kindergarten <500m
Universität <500m
Höhere Schule <500m

Nahversorgung
Supermarkt <500m
Bäckerei <500m
Einkaufszentrum <1.000m

Sonstige
Geldautomat <500m
Bank <500m
Post <500m
Polizei <500m

Verkehr
Bus <500m
U-Bahn <1.000m
Straßenbahn <500m
Bahnhof <500m
Autobahnanschluss <2.000m

Angaben Entfernung Luftlinie / Quelle: OpenStreetMap

Eckdaten Objektnr. 18555

Art: Büro / Praxis
Land: Österreich
Baujahr: 1900
Zustand: Neuwertig
Kaltmiete (netto): 5.321,60 €
Kaltmiete: 6.089,90 €
Provision: 3 Bruttomonatsmieten zzgl. 20% USt.
Betriebskosten: 768,30 €
MwSt Gesamt: 1.217,98 €
Nutzfläche: 332,00 m²
Zimmer: 12
WC: 4
Heizwärmebedarf:  B  44,00 kWh/m²a
Immobilie merken Exposé

Immobilie anfragen


Ihre persönliche Beratung

KALANDRA Immobilien Robert Kalandra e.U.

Mag. Robin Kalandra

KALANDRA Immobilien Robert Kalandra e.U.

T +43-1533326913

H +43-69911804004

F +43-1-533-32-69-20