Herrschaftliche Villenetage mit 650 m² Eigengarten und Dachterrasse in Wien-Mauer | ZELLMANN IMMOBILIEN

Wohnung , 1230 Wien


Beschreibung der Immobilie

Herrschaftliche Villenetage mit 650 m² Eigengarten und Dachterrasse in Wien-Mauer | ZELLMANN IMMOBILIEN

Ein erster Eindruck, der begeistert



Schon beim Betreten dieses prachtvollen Jugendstilhauses zeigt sich: Dieses Objekt ist einzigartig. Der elegante Eingangsbereich mit originalen Fliesen und kunstvollen Schmiedeelementen vermittelt sofort jene herrschaftliche Noblesse, die man in Wien-Mauer seit Generationen schätzt.




Die Immobilie im Überblick




  • Wohnfläche Dachgeschoss: ca. 133,5 m² – das Dachgeschoss befindet sich im ersten Stock, somit sind nur wenige Stufen zu bewältigen



  • Dachterrasse & Balkone: ca. 70 m² mit 360°-Panoramablick über Wien und bis in den Wienerwald



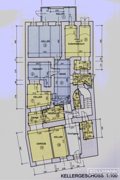
  • Souterrain/Keller: ca. 61,9 m², teilweise mit Tageslicht



  • Privatgarten: ca. 649 m² mit zwei Gartenhäusern – eines davon als winterfestes Sommerhaus nutzbar



  • Garage im Haus: ca. 20,4 m²



  • Zufahrt & Stellplätze: ca. 30 m²




👉 Gesamtnutzfläche inkl. Zubehör: über 340 m² zzgl. Garten – ein Wert, der in Wien kaum zu finden ist.




Die Dachterrasse – ein exklusiver Logenplatz über Wien



Das absolute Highlight dieser Immobilie ist die außergewöhnlich große Dachterrasse. Mit rund 70 m² bietet sie Platz für stilvolle Empfänge, sommerliche Abendessen oder entspannte Stunden unter freiem Himmel.



Von hier eröffnet sich ein 360°-Panoramablick:




  • nach Osten über die Dächer Wiens bis hin zum Stephansdom,



  • nach Süden über die sanften Hügel des Wienerwaldes,



  • nach Westen über die grünen Villengärten von Mauer.




Diese Terrasse ist mehr als ein Außenbereich – sie ist eine exklusive Aussichtsplattform, die Wien aus einer neuen, herrschaftlichen Perspektive zeigt.




Der Garten – eine grüne Welt für sich



Der Eigengarten mit ca. 649 m² erweitert das Wohnen ins Freie und bietet Raum wie ein kleiner Park. Hier verbinden sich Ruhe, Großzügigkeit und vielseitige Nutzungsmöglichkeiten:




  • Parkähnliche Weite: Platz für Feste, Kinderspiel oder einfach entspannte Stunden in der Sonne.



  • Zwei Gartenhäuser: Eines traditionell, das andere als winterfestes Sommerhaus, das sich zu jeder Jahreszeit nutzen lässt – als Gästehaus, Atelier oder private Lounge.



  • Grüne Privatsphäre: Alte Bäume und geschützte Strukturen schaffen eine unvergleichliche Atmosphäre mitten in der Stadt.




Dieser Garten ist kein Beiwerk, sondern ein vollwertiger Lebensraum, der die Immobilie zu einem einzigartigen Rückzugsort macht.




Tradition trifft auf modernen Komfort



Neben dem repräsentativen Dachgeschoss und dem Garten überzeugt auch das Souterrain mit ca. 62 m², das vielfältige Möglichkeiten eröffnet: Hobbyräume, Wellnessbereich oder Weinkeller. Die Garage im Haus mit Zufahrt ergänzt das noble Ensemble und sorgt für höchsten Komfort im Alltag.




Eine Rarität am Wiener Markt



Wohnräume im Dachgeschoss, die im ersten Stock liegen, eine spektakuläre Dachterrasse, ein fast parkähnlicher Garten mit über 600 m² und ein zusätzliches, winterfestes Sommerhaus – diese Kombination macht das Objekt zu einer echten Ausnahmeerscheinung in Wien-Mauer.




Emotion und Lebensgefühl



Ein Glas Wein auf der Dachterrasse bei Sonnenuntergang. Sommerliche Gartenfeste mit Familie und Freunden. Wintertage im gemütlichen Gartenhaus. Diese Immobilie schenkt nicht nur Räume, sondern ein unvergleichliches Lebensgefühl.




Lage und Umgebung



Wien-Mauer gilt als eine der edelsten Adressen des 23. Bezirks. Geprägt von Villen, Weingärten und Natur, bietet das Viertel eine Lebensqualität, die ihresgleichen sucht.




  • Straßenbahnlinie 60: Von Mauer direkt nach Hietzing/U4 und ins Zentrum.



  • Buslinien: Rasche Verbindungen nach Liesing, Atzgersdorf und Meidling.



  • S-Bahn Atzgersdorf: Direkter Anschluss an Meidling und den Hauptbahnhof.



  • Freizeit & Genuss: Maurer Wald, Lainzer Tiergarten, traditionelle Heurige und charmante Cafés in unmittelbarer Nähe.





Rechtliche Hinweise



Bitte kontrollieren Sie auch Ihren SPAM- bzw. WERBE-Ordner, da E-Mails manchmal dort landen können. Wir antworten in der Regel innerhalb weniger Stunden – auch am Wochenende. Teilen Sie uns gerne Ihre Telefonnummer mit, damit wir Sie zusätzlich per SMS über die Versendung des Exposés informieren können.



Dieses Objekt wird unverbindlich und freibleibend angeboten.

Alle Angaben basieren auf Informationen des Eigentümers sowie dem vorliegenden Gutachten und wurden mit größter Sorgfalt zusammengestellt. Für die Richtigkeit, Vollständigkeit und Aktualität dieser Angaben wird keine Gewähr übernommen. Änderungen, Irrtümer und Zwischenverkauf bleiben ausdrücklich vorbehalten. Maßangaben sind Circa-Angaben.



Das Exposé stellt kein verbindliches Angebot dar.

Bei erfolgreichem Abschlussfall fällt eine Käuferprovision in Höhe von 3 % des Kaufpreises zzgl. 20 % USt. an – gemäß Immobilienmaklerverordnung BGBI. 262 und 297/1996.




Fazit



Diese Immobilie vereint herrschaftliche Wohnräume, eine spektakuläre Dachterrasse mit 360°-Blick, einen außergewöhnlich großen Privatgarten, ein winterfestes Sommerhaus und die komfortable Lage im ersten Stock.



Ein Ensemble, das Exklusivität, Eleganz und Lebensqualität auf höchstem Niveau bietet – und das mitten in Wien-Mauer.

Noch nichts gefunden? Wir informieren Sie über geeignete Immobilienangebote noch vor allen anderen.
Legen Sie jetzt Ihren individuellen Suchagenten unter folgendem Link an. Wir schicken Ihnen passende Immobilien exklusiv vorab zu. 



-> Suchagent anlegen


Der Vermittler ist als Doppelmakler tätig.

ZELLMANN IMMOBILIEN GmbH
Vertrauen. Service. Qualität.

Infrastruktur / Entfernungen

Gesundheit
Arzt <500m
Apotheke <1.000m
Klinik <1.500m
Krankenhaus <2.000m

Kinder & Schulen
Schule <1.000m
Kindergarten <1.000m
Universität <4.500m
Höhere Schule <6.500m

Nahversorgung
Supermarkt <500m
Bäckerei <1.000m
Einkaufszentrum <1.500m

Sonstige
Geldautomat <1.000m
Bank <1.000m
Post <1.000m
Polizei <1.500m

Verkehr
Bus <500m
U-Bahn <3.500m
Straßenbahn <500m
Bahnhof <2.000m
Autobahnanschluss <4.000m

Angaben Entfernung Luftlinie / Quelle: OpenStreetMap

Eckdaten Objektnr. 24308

Art: Wohnung
Land: Österreich
Baujahr: 1911
Zustand: Gepflegt
Alter: Neubau
Kaufpreis: 895.000,00
Betriebskosten: 82,42 €
MwSt Gesamt: 8,24 €
Wohnfläche: 134,00 m²
Nutzfläche: 340,00 m²
Grundstücksfl.: 689,00 m²
Zimmer: 5
Bäder: 1
WC: 1
Balkone: 1
Terrassen: 3
Stellplätze: 1
Garten: 649,00 m²
Keller: 62,00 m²
Heizwärmebedarf:  C  94,00 kWh/m²a
fGEE:  C  1,38
Immobilie merken Exposé

Ausstattung

Parkett, Dielenboden, Steinboden, Gas, Etagenheizung, Kamin, Einbauküche, Südbalkon, Westbalkon, Bad mit Fenster, Dusche, Kabel/Satelliten-TV, Carport, Parkplatz


Immobilie anfragen


Ihre persönliche Beratung

ZELLMANN IMMOBILIEN GmbH | Vertrauen. Service. Qualität.

Christian Zellmann

ZELLMANN IMMOBILIEN

H +43 699 15 15 22 00