| BURGÄHNLICHES HISTORISCHES WOHNOBJEKT MIT GARTEN IN ZENTRUMSLAGE VON PERCHTOLDSDORF |

Haus , 2380 Perchtoldsdorf , Elisabethstraße


Wiener Wald, Elisabethstraße, Perchtoldsdorf

Beschreibung der Immobilie

| BURGÄHNLICHES HISTORISCHES WOHNOBJEKT MIT GARTEN IN ZENTRUMSLAGE VON PERCHTOLDSDORF |

Außergewöhnliches historisches Juwel im Herzen von Perchtoldsdorf



Zum Verkauf steht eine einzigartige Liegenschaft – ein prachtvoller Renaissancebau mit spätgotischem Kern, eines der bekanntesten historischen Bürgerhäuser von Perchtoldsdorf.



Die vierseitig geschlossene, zweigeschoßige Anlage mit idyllischem Innenhof; reicht mit ihren Ursprüngen bis ins 14. und 16. Jahrhundert zurück. Eine Sonnenuhr an der Fassade trägt die Jahreszahl 1564.



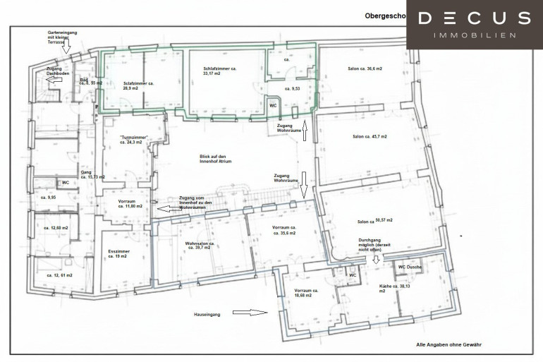
Die Anlage erinnert in ihrer Struktur an einen klassischen Vierkanthof und bietet rund 523 m² Wohnnutzfläche sowie ca. 392 m² Nebenflächen.



Prunkvolle Räume mit opulenten Barockkaminen, herrschaftlichen Lustern, original erhaltenen Terrazzo- und Specksteinböden, kunstvollen schmiedeeisernen Details und einer beeindruckenden Dichte an Kreuzgewölben – die höchste in ganz Perchtoldsdorf – verleihen dem Ensemble seinen unverwechselbaren Charme.



Mehrere getrennte Zugänge eröffnen flexible Nutzungsmöglichkeiten – sei es als Wohnraum, künstlerisches Schaffen, Büro- oder Kulturbetrieb.



Der parkähnlich gestaltete Garten mit altem Baumbestand, einem separaten Gemüsegarten und geschützten Rückzugsorten bildet gemeinsam mit dem Innenhof eine Oase der Ruhe mitten im Ortskern.



Nur wenige Schritte vom historischen Marktplatz entfernt, verbindet dieses herausragende Bürgerhaus aus dem 14. Jahrhundert authentischen Altbaucharme mit der Möglichkeit, stilvolles Wohnen und Arbeiten in einem der geschichtsträchtigsten Gebäude Perchtoldsdorfs zu vereinen.



Das teilweise denkmalgeschützte Haus, wurde liebevoll gepflegt und in den 1960er Jahren umfassend saniert.



Es befindet sich in einer Schutzzone / Altortgebiet / Denkmalschutz.



Objekt: 



Das zweigeschossige Gebäude ist in den Hang gebaut und erinnert im Grundriss an einen Vierkanthof.



EG bzw. UG und OG, hinzu kommen großzügige Gewölbekeller und ein bis dato ungenutzter Rohdachboden



Die Gebäudeteile umgeben einen wunderschönen Innenhof. Zwei Stiegenanlagen dienen von hier aus als Zugang zur Wohneinheit.



Der Garten mit altem Baumbestand umschließt das Gebäude, bietet eine großzügige Terrassenfläche und einen separaten Gemüsegarten mit bereits angelegten Hochbeeten.



Ausstattung:



Das historische Gebäude wurde in den 1960ern umfassend saniert und unter anderem mit einem Entfeuchtungssystem im Keller ausgestattet. 



Der Renaissancebau besticht durch historische Elemente wie eine straßenseitig angebrachte Sonnenuhr aus dem Jahr 1564, Bleiglasfenster, Inschriften, Skulpturen, barocke Kamine, imposante Luster, historisches Mauerwerk, eine Vielzahl an Kreuzgewölben, Ziegeleindeckung (Wiener Tasche). Speckstein - und Terrazzoböden auch in den Wohnräumen, Parkette, Flügeltüren bzw. Stiltüren in Holz massiv mit schmiedeeisernen Beschlägen.



Ein Garagenplatz ist auf der Liegenschaft vorhanden. Weitere Parkplatzmöglichkeiten sind gegeben.



Lage



Die Liegenschaft befindet sich westlich des Zentrums von Perchtoldsdorf, Richtung Wienerwald. Das Ortszentrum (Marktplatz) liegt knapp 500 m entfernt.



Perchtoldsdorf ist Teilgebiet des Wienerwaldes, seit 2006 von der UNESCO als Biosphärenpark anerkannt. 



Anbindung an das öffentliche Verkehrsnetz



Perchtoldsdorf ist mit Liesing (S-Bahn) über die VOR-Buslinien 256 (Liesing – Gießhübl), 257 (Liesing – Perchtoldsdorf), 258 (Liesing – Maria Enzersdorf) und 259 (Liesing – Mödling) verbunden.



Die VOR-Buslinie 260 (Siebenhirten - Mödling) stellt die Anbindung an die U6 her. An das S-Bahnnetz ist die Marktgemeinde über die Haltestelle "Salitergasse" angebunden. Weiters gibt es 3 lokale Ortsbuslinien.



Anbindung an den Individualverkehr



Die Anbindung an das übergeordnete Straßennetz ist in ca. 3,7 km über die AAST Brunn/Gebirge an die A21 Wiener Außenring Autobahn (und in der Folge an die A2 Südautobahn, A23 Südost-Tangente und S1 Wiener Außenring Schnellstraße.



Die Entfernung von der bewertungsgegenständlichen Liegenschaft beträgt ins Ortszentrum ca. 500 m, ca. 25 km nach Wien (via A21/A2/A23), nach St. Pölten (via A21/A1) ca. 70 km, Graz ca. 188 km.



Der nächstgelegene Flughafen ist Wien-Schwechat, ca. 26 km entfernt.


Hinweis gemäß Energieausweisvorlagegesetz: Ein Energieausweis wurde vom Eigentümer bzw. Verkäufer, nach unserer Aufklärung über die generell geltende Vorlagepflicht, sowie Aufforderung zu seiner Erstellung noch nicht vorgelegt. Daher gilt zumindest eine dem Alter und der Art des Gebäudes entsprechende Gesamtenergieeffizienz als vereinbart. Wir übernehmen keinerlei Gewähr oder Haftung für die tatsächliche Energieeffizienz der angebotenen Immobilie.


Wir weisen darauf hin, dass zwischen dem Vermittler und dem zu vermittelnden Dritten ein familiäres oder wirtschaftliches Naheverhältnis besteht.

DECUS Immobilien GmbH – Wir beleben Räume

Für weitere Informationen und Besichtigungen steht Ihnen gerne Frau  Paulina Joven unter der Mobilnummer +43 660 74 55 917und per E-Mail unter joven@decus.at persönlich zur Verfügung.

www.decus.at | office@decus.at 

Wichtige Informationen

Bitte beachten Sie, dass per 13.06.2014 eine neue Richtlinie für Fernabsatz- und Auswärtsgeschäfte in Kraft getreten ist.

Ab 1.4.2024 entfallen die Grundbuchs- und Pfandrechtseintragungsgebühren vorübergehend für Eigenheime bis zu einer Bemessungsgrundlage von EUR 500.000,-. Voraussetzung ist das dringende Wohnbedürfnis, ausgenommen davon sind vererbte oder geschenkte Immobilien. Die Befreiung ist jedoch für den Einzelfall zu prüfen, DECUS Immobilien übernimmt hierzu keine Haftung.

Ab 01.07.2023 gilt das Erstauftraggeber-Prinzip bei Wohnungsmietverträgen, ausgenommen davon sind Dienst-/Natural-/Werkswohnungen. Wir dürfen gem. § 17 Maklergesetz darauf hinweisen, dass wir auf die Doppelmaklertätigkeit gem. § 5 Maklergesetz bei Wohnungsmietverträgen verzichten und nur noch einseitig tätig sind (bei den restlichen Vermittlungsarten nicht) und ein wirtschaftliches Naheverhältnis zu unseren Auftraggebern besteht. 

Im Falle eines Abschlusses mit Ihnen oder einem von Ihnen namhaft gemachten Dritten bzw. bei beidseitiger Willensübereinstimmung beträgt unser Honorar (lt. Honorarverordnung für Immobilienmakler) 2 Bruttomonatsmieten (BMM) bei Dienst-/Natural-/Werkwohnungen sowie Suchaufträgen, 3 BMM bei Gewerbe-, PKW-, Keller- und Lagermietverträgen sowie bei Kaufobjekten 3 % des Kaufpreises, zuzüglich der gesetzlichen Umsatzsteuer.

Dieses Objekt wird Ihnen unverbindlich und freibleibend angeboten. Oben angeführte Angaben basieren auf Informationen und Unterlagen des Eigentümers und sind unsererseits ohne Gewähr.

Nähere Informationen sowie unsere AGBs und die Nebenkostenübersichtsblatt finden Sie auf unserer Homepage www.decus.at unter "Service" - "Rechtliches zum FAGG" sowie im Anhang der zugesendeten Objekt-Exposés!

Infrastruktur / Entfernungen

Gesundheit
Arzt <250m
Apotheke <250m
Klinik <1.500m
Krankenhaus <2.500m

Kinder & Schulen
Schule <500m
Kindergarten <500m
Universität <7.500m
Höhere Schule <5.500m

Nahversorgung
Supermarkt <500m
Bäckerei <250m
Einkaufszentrum <2.250m

Sonstige
Bank <250m
Geldautomat <250m
Post <500m
Polizei <500m

Verkehr
Bus <250m
U-Bahn <3.750m
Straßenbahn <1.750m
Bahnhof <2.000m
Autobahnanschluss <2.000m

Angaben Entfernung Luftlinie / Quelle: OpenStreetMap

Eckdaten Objektnr. 1151698

Art: Haus
Land: Österreich
Baujahr: 1546
Zustand: Teil_vollsaniert
Alter: Altbau
Kaufpreis: 2.349.000,00
Provision: 3% des Kaufpreises zzgl. 20% USt.
Wohnfläche: 523,00 m²
Nutzfläche: 915,00 m²
Grundstücksfl.: 2.832,00 m²
Garten: 2.000,00 m²
Immobilie merken Exposé

Immobilie anfragen


Ihre persönliche Beratung

DECUS Immobilien GmbH

Paulina Joven

DECUS Immobilien GmbH

T +43 660 74 55 917

H +43 660 74 55 917

F +43 1 35 600 10