Geschäftshaus mit hohem Entwicklungspotenzial - BARRIEREFREI

Einzelhandel , 9300 St. Veit an der Glan


Das Haus befindet sich in der Fußgängerzone von St. Veit an der Glan, zwischen dem Unterer Platz und Hauptplatz. Die Flanier- und Einkaufsmeile der Innenstadt, wie auch das Rathaus sind um die Ecke. Öffentliche Parkplätze sind ebenfalls in ausreichender Anzahl in unmittelbarer Umgebung vorhanden.

Beschreibung der Immobilie

Geschäftshaus mit hohem Entwicklungspotenzial - BARRIEREFREI

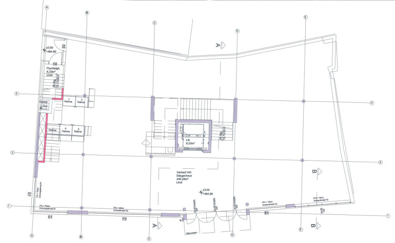
Das Geschäftshaus ist aufgeteilt auf 3 Geschosse - rd. 868m²  



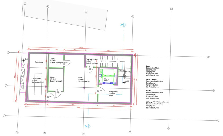
Verkaufsfläche im Erdgeschoß 446,28m² und im 1. Obergeschoss Verkauf inkl. Stiegenhaus 421,84m² sowie 48m² Lagerfläche im Kellergeschoss. 



Getrennte Sanitärbereiche für Kunden und Mitarbeiter sowie ein Aufenthaltsraum sind im 1. Obergeschoss untergebracht. Ein Kabinenlift für den barrierefreien Zugang in alle Geschosse ist vorhanden. 



Das gesamte Gebäude ist mit einer Lüftungs- und Klimaleitung, einer vollständigen Elektroverkabelung sowie einer automatischen Brandmeldeanlage ausgestattet. 



Klimaanlage ist vorhanden! Heizung Fernwärme und die BK belaufen sich schätzungsweise auf ca. € 1000 netto/Monat!



Es liegt ebenfalls eine Machbarkeitsstudie von 08/2023 vor, wonach die Flächen auch in Büro- bzw. Wohnflächen aufgeteilt werden könnten - hier gibt es viel Gestaltungsspielraum.





Möchten Sie sich gerne ein persönliches Bild machen? 



Ich freue mich auf eine Besichtigung mit Ihnen!



Für weitere Informationen und Besichtigungstermine wenden Sie sich Bitte an 





Mag. Ulrike Brunner



*****************************



ULLI Immo



T +43 (0) 676 / 4680409



E office@ulli-immo.at







Sonstiges:



Wir ersuchen um Verständnis, dass wir aufgrund unserer Nachweispflicht gegenüber dem Eigentümer / der Eigentümerin nur Anfragen mit vollständigen Kontaktdaten (Name, Adresse, Telefonnummer, E-Mail) bearbeiten können. 



Sämtliche Angaben zum beschriebenen Objekt sind ohne Gewähr und basieren auf Informationen und Unterlagen, die vom Eigentümer/von der Eigentümerin der Liegenschaft bzw. Dritten zur Verfügung gestellt wurden. Für Vollständigkeit, Richtigkeit und Aktualität aller Angaben und Abmessungen wird keine Gewähr übernommen. Allfällige Änderungen, Irrtümer, Satz- und Druckfehler vorbehalten. 





Provision:



Im Falle eines Vertragsabschlusses beträgt unser Honorar lt. Maklerverordnung für Immobilienmakler (IMV), BGBl. 297/1996 ifgF BGBl. 268/2010, sowie Maklergesetz, BGB Nr. 262/1996 idF BGBl. I Nr. 58/2010, 3% des Kaufpreises bzw. 3 BMM zzgl. 20% USt.


Wir weisen darauf hin, dass zwischen dem Vermittler und dem zu vermittelnden Dritten ein familiäres oder wirtschaftliches Naheverhältnis besteht.


Der Vermittler ist als Doppelmakler tätig.

Infrastruktur / Entfernungen

Gesundheit
Arzt <500m
Apotheke <500m
Krankenhaus <500m

Kinder & Schulen
Schule <500m
Kindergarten <5.000m

Nahversorgung
Supermarkt <500m
Bäckerei <6.000m
Einkaufszentrum <1.500m

Sonstige
Bank <500m
Geldautomat <500m
Post <500m
Polizei <500m

Verkehr
Bus <500m
Autobahnanschluss <2.000m
Bahnhof <1.000m
Flughafen <5.000m

Angaben Entfernung Luftlinie / Quelle: OpenStreetMap

Eckdaten Objektnr. 1630/339

Art: Einzelhandel
Land: Österreich
Baujahr: 2003
Alter: Neubau
Kaufpreis: 948.000,00
Kaufpreis / m²: 860,57 €
Provision: 3% des Kaufpreises zzgl. 20% USt.
Betriebskosten: 1.000,00 €
MwSt Gesamt: 200,00 €
Nutzfläche: 918,00 m²
Lagerfläche: 48,00 m²
Verkaufsfläche: 868,00 m²
Heizwärmebedarf:  C  55,10 kWh/m²a
fGEE:  A+  0,67
Immobilie merken Exposé

Ausstattung

Fernwärme, Personenaufzug, Alarmanlage


Immobilie anfragen


Ihre persönliche Beratung

Ulli IMMO - Eine Marke der Gerhard Hudej Unternehmensgruppe

Ulrike Brunner

Gerhard Hudej GmbH

T 0676/4680409