Villa in Bestlage | Parkblick

Haus - Villa, 1190 Wien


Nähe Saarpark bzw. Hohe Warte

Beschreibung der Immobilie

Villa in Bestlage | Parkblick

Diese außergewöhnliche Villa befindet sich in einer der exklusivsten Wohnlagen Wiens. Der ca. 500m² große Garten erstreckt sich nördlich des Anwesens, während man südseitig einen herrlichen Blick in einen prachtvollen Park genießt.



Das Haus wurde 2025 aufwendig saniert und umfasst insgesamt vier Geschosse mit 6-8 Zimmern, die bequem über eine Treppe oder den Lift erreichbar sind.



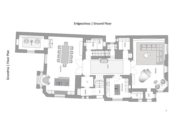
Erdgeschoss – ca. 202 m²
Ein großzügiger Wohn- und Essbereich bildet das Herzstück dieser Etage. Die Anschlüsse für eine elegante Showküche sind bereits vorbereitet und ermöglichen eine offene, repräsentative Wohnatmosphäre.



1. Obergeschoss – ca. 182 m²
Hier stehen drei helle Schlafzimmer sowie zwei moderne Badezimmer zur Verfügung. Mehrere Balkone erweitern den Wohnraum nach außen und bieten traumhafte Ausblicke.



Dachgeschoss – ca. 137 m²
Das oberste Geschoss verfügt über drei weitere Zimmer und einen Balkon – ideal als Rückzugsort, Büro- oder Atelierbereich.



Souterrain – ca. 179 m²
Über den direkten Zugang zur Garage gelangt man in das vielseitig nutzbare Souterrain. Eine Einliegerwohnung ist bereits integriert, und Anschlüsse für eine Küche wurden vorbereitet. Ein großzügiger Nassbereich bietet ausreichend Platz für den Einbau einer Sauna oder eines Dampfbads. Zusätzlich lädt ein stilvoller Weinkeller mit Gewölbe zum Genießen und Entspannen ein.



Für Detailinformationen oder einen Besichtigungstermin stehe ich jederzeit zur Verfügung!



Bernhard FRIEDRICH, MSc
+43 660 117 9020 | bf@finallyhome.at


Hinweis gemäß Energieausweisvorlagegesetz: Ein Energieausweis wurde vom Eigentümer bzw. Verkäufer, nach unserer Aufklärung über die generell geltende Vorlagepflicht, sowie Aufforderung zu seiner Erstellung noch nicht vorgelegt. Daher gilt zumindest eine dem Alter und der Art des Gebäudes entsprechende Gesamtenergieeffizienz als vereinbart. Wir übernehmen keinerlei Gewähr oder Haftung für die tatsächliche Energieeffizienz der angebotenen Immobilie.


Wir weisen darauf hin, dass zwischen dem Vermittler und dem zu vermittelnden Dritten ein familiäres oder wirtschaftliches Naheverhältnis besteht.


Der Vermittler ist als Doppelmakler tätig.

Infrastruktur / Entfernungen

Gesundheit
Arzt <500m
Apotheke <500m
Klinik <1.000m
Krankenhaus <1.000m

Kinder & Schulen
Schule <1.000m
Kindergarten <500m
Universität <1.000m
Höhere Schule <1.000m

Nahversorgung
Supermarkt <500m
Bäckerei <1.000m
Einkaufszentrum <2.000m

Sonstige
Geldautomat <500m
Bank <500m
Post <1.000m
Polizei <1.000m

Verkehr
Bus <500m
U-Bahn <1.500m
Straßenbahn <500m
Bahnhof <1.000m
Autobahnanschluss <1.500m

Angaben Entfernung Luftlinie / Quelle: OpenStreetMap

Eckdaten Objektnr. 1819/42

Art: Haus - Villa
Land: Österreich
Baujahr: 1905
Zustand: Voll_saniert
Alter: Altbau
Kaufpreis: 8.900.000,00
Provision: 3% des Kaufpreises zzgl. 20% USt.
Nutzfläche: 700,00 m²
Grundstücksfl.: 800,00 m²
Zimmer: 8
Bäder: 7
WC: 6
Balkone: 2
Garten: 500,00 m²
Immobilie merken Exposé

Ausstattung

Fliesen, Parkett, Gas, Wohnküche / offene Küche, Personenaufzug, Südbalkon, Bad mit Fenster, Garage, Alarmanlage, Sicherheitskamera


Immobilie anfragen


Ihre persönliche Beratung

Bernhard FRIEDRICH, MSc

finallyHOMEreal GmbH

T +43 660 117 9020