WOHNEN MIT CHIC - Wohnhausanlage Neunkirchen

Haus - Reihenhaus, 2620 Neunkirchen


Beschreibung der Immobilie

WOHNEN MIT CHIC - Wohnhausanlage Neunkirchen

Geförderte Reihenhäuser in Niedrigenergiebauweise.



Jedem Reihenhaus sind ein Eigengarten und 2 PKW-Stellplätze in der unter den Reihenhäusern liegenden Tiefgarage zugeordnet.



Es sind 7 Reihenhäuser mit einer Wohnnutzfläche von jeweils ca. 102 m² zuzüglich Keller errichtet.



Im Kellergeschoss befinden sich ein Abstellraum mit rund 10,7 m² und die Schleuse zur Tiefgarage.



Im Erdgeschoss sind die Wohnküche sowie ein Abstellraum, das WC und eine Garderobe situiert.



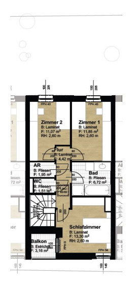
Im Obergeschoss sind drei Schlafzimmer sowie das Bad, ein zweites (separates) WC und ein Abstellraum angeordnet.



Die Nassräume, Abstellräume und der Eingangsbereich sind mit hochwertigen Fliesen und die Wohnräume mit eleganten Dekor Eiche Laminat ausgestattet.



Alle Sanitärelemente sind Fabrikate der Firma Vigour. Badewanne, Duschwanne, Waschtische und WC sowie Anschlüsse für Waschmaschine sind vorhanden.



Die Versorgung mit Wärme erfolgt über Fernwärme. In jeder Wohneinheit befindet sich eine Wohnungsstation, in der das Warmwasser erhitzt wird.



Die Wärmeabgabe in den Reihenhäusern erfolgt über eine Fußbodenheizung.



Die gesamte Wohnhausanlage wird mit einer Gemeinschafts-Photovoltaikanlage ausgestattet. Die Einspeisung erfolgt in den allgemeinen Zähler.



Die TV-Versorgung erfolgt über eine digitale SAT-Anlage (Astra-Satellit). Jede Wohneinheit verfügt über einen vorbereiteten SAT-Anschluss im Wohnzimmer. Weitere SAT-Anschlüsse in anderen Räumen sind auf Sonderwunsch möglich.



Die Wohnhausanlage liegt im Zentrum von Neunkirchen, nur wenige Meter vom Hauptplatz entfernt, in absoluter Ruhelage



Neunkirchen ist ein essenzieller Verkehrsknotenpunkt, der Straßenverkehr ist durch die S6 Semmering-Schnellstraße, die A2 Südautobahn sowie die Wiener Straße B17 optimal erschlossen. Der Bahnhof Neunkirchen ist durch die Südbahn einfach zu erreichen und die Fahrzeiten zum Wiener Hauptbahnhof betragen, je nach Verbindungsart (Railjet, REX), lediglich 48 Minuten.



Die solide gewachsene Infrastruktur der Stadtgemeinde bietet nicht nur zahlreiche Nahversorger, Ärzte, Schulen und ein Landesklinikum in der Nähe an, sondern ermöglicht Ihnen auch einen Besuch im ortsansässigen Erholungszentrum mit integriertem Frei- und Hallenbad. Zahlreiche Einkaufsmöglichkeiten konzentrieren sich in der Innenstadt, im Panoramapark sowie auch im Handelsgebiet „Am Spitz“.



Miete (netto): 1.055,00 EUR

Betriebskosten (netto): 271,19 EUR

Umsatzsteuer (gesamt): 132,62 EUR

Gesamtmiete: 1.458,81 EUR



Baukostenanzahlung: 37.205,64 EUR


Der Immobilienmakler erklärt, dass er – entgegen dem in der Immobilienwirtschaft üblichen Geschäftsgebrauch des Doppelmaklers – einseitig nur für den Vermieter tätig ist.

Eckdaten Objektnr. 19536

Art: Haus - Reihenhaus
Land: Österreich
Baujahr: 2022
Zustand: Neuwertig
Alter: Neubau
Gesamtmiete: 1.458,81
Kaltmiete (netto): 1.055,00 €
Kaltmiete: 1.326,19 €
Provision: Gemäß Erstauftraggeberprinzip bezahlt der Abgeber die Provision.
Betriebskosten: 271,19 €
MwSt Gesamt: 132,62 €
Wohnfläche: 101,80 m²
Nutzfläche: 160,80 m²
Zimmer: 4
Bäder: 1
WC: 2
Balkone: 1
Terrassen: 1
Garten: 26,20 m²
Keller: 18,00 m²
Heizwärmebedarf:  B  44,00 kWh/m²a
fGEE:  A+  0,68
Immobilie merken Exposé

Ausstattung

Fliesen, Laminatboden, Solarenergie, Fernwärme, Fußbodenheizung, Wohnküche / offene Küche, Badewanne, Dusche, Kabel/Satelliten-TV, Tiefgarage


Immobilie anfragen


Ihre persönliche Beratung

Bieber Immobilien GmbH

Johannes Bieber

Bieber Immobilien GmbH

H +43 699 15 24 3237

F +43 720 88 13 76