Anno 1691 - Gleichweit! Die gelungene Symbiose - Bestehendes zu Modernisieren!

Wohnung , 2500 Baden


Beschreibung der Immobilie

Anno 1691 - Gleichweit! Die gelungene Symbiose - Bestehendes zu Modernisieren!

Nahe dem Zentrum wurde mit Bedacht auf "Altes" ein modernes Wohnhaus errichtet, in dem sich im Erdgeschoss diese Wohnung mit dem einzigartigen, 90m² messenden "Weinkeller" befindet.



Barrierefrei über den Hauseingang erreicht man die ca. 86m² große, perfekt aufgeteilte Wohnung, die im revitalisiertem Altbaubereich mit 2 Zimmer, einem Wohnraum mit offen gehaltener, komplett eingerichteter Küche, einem Bad mit Wanne, einem separaten WC mit Handwaschbecken und einen Abstellraum aufzuwarten hat. Vom Wohnraum aus ist die ca. 11m² messende Innenhofterrasse (wird noch fertig gestellt) zu betreten.



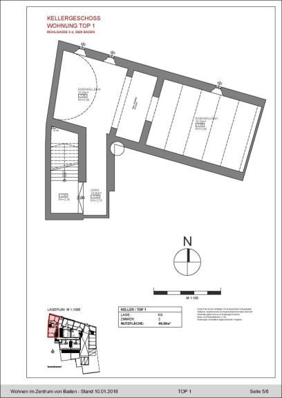
Über den Vorraum führt eine Stiege in das Kellergeschoss, das sowohl mit Licht als auch mit Lüftung ausgestattet ist. Bietet sich hervorragend als Weinkeller an!



Die Ausstattung umfaßt hochwertige Laminatböden, Fliesen in den sanitären Anlagen, 3-fach-Isolierglasfenster mit elektrischen Außenrollos, Kabelanschluß, Gegensprechanlage. Die Beheizung und Warmwasseraufbereitung erfolgt über eine Gasetagenheizung, die Wärmeabgabe über Fußbodenheizung.



Ein Garagenplatz ist um 15.000,00 EUR dazu zu kaufen. 



Dieses Objekt wird zur Zeit als Büro genutzt und kann sowohl als Praxis/Büro/Ordination Verwendung finden!



Die Kaiserstadt Baden hat eine Vielfalt an Kulturellem, Kulinarischem und Naturerlebnissen zu bieten, in der die Wohn- und Lebensqualität einem hohen Standard gerecht wird!



Instandhaltungsrücklage: 91,05 EUR

Betriebskosten (netto): 184,69 EUR

Umsatzsteuer (gesamt): 18,47 EUR

Betriebskosten (gesamt): 294,21 EUR



Kaufpreis: 355.000,00 EUR (inkl. Garagenplatz)



Provision: 12.780,00 EUR inkl. 20% USt.

Grunderwerbssteuer: 3,5%

Grundbuchseintragungsgebühr: 1,1%

Kosten der Vertragserrichtung und grundbücherlichen Durchführung nach Vereinbarung im Rahmen der Tarifordnung des jeweiligen Urkundenerrichters sowie Barauslagen für Beglaubigung und Stempelgebühren.


Der Vermittler ist als Doppelmakler tätig.

Eckdaten Objektnr. 19543

Art: Wohnung
Land: Österreich
Baujahr: 1691
Zustand: Erstbezug
Alter: Altbau
Kaufpreis: 340.000,00
Provision: 12.780,00 € inkl. 20% USt.
Betriebskosten: 184,96 €
MwSt Gesamt: 18,50 €
Wohnfläche: 86,00 m²
Nutzfläche: 97,00 m²
Zimmer: 3
Bäder: 1
WC: 1
Terrassen: 1
Keller: 90,00 m²
Heizwärmebedarf:  B  47,88 kWh/m²a
fGEE:  B  0,67
Immobilie merken Exposé

Ausstattung

Fliesen, Laminatboden, Gas, Etagenheizung, Wohnküche / offene Küche, Ostbalkon, Badewanne, Kabel/Satelliten-TV, Garage


Immobilie anfragen


Ihre persönliche Beratung

Bieber Immobilien GmbH

Elisabeth Bieber

Bieber Immobilien GmbH

H +43 699 15 11 1959

F +43 720 88 13 76