Großzügiges, sonniges Einfamilienhaus mit 80m² Dachterrasse

Haus , 2512 Traiskirchen


Beschreibung der Immobilie

Großzügiges, sonniges Einfamilienhaus mit 80m² Dachterrasse

Aus Alt wird Neu - Dieses großzügige Einfamilienhaus, mit einer Wohnfläche von ca. 160m², aus dem Jahre 1970, wurde vollständig entkernt und 2024 auf den neuesten Stand der Technik gebracht!



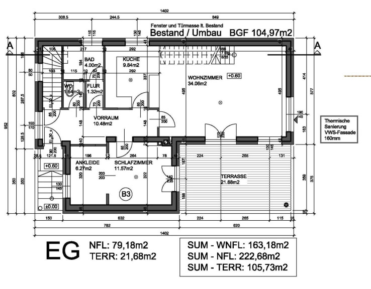
Über den Vorgarten führen ein paar Stufen zum Hauseingang und man betritt den Flur, von dem aus das ca. 34m² messende Wohnzimmer mit offen gehaltener Küche erreichbar ist sowie ein Zimmer, das Duschbad und separate WC. Sowohl vom Wohnraum aus als auch vom Zimmer aus kann man die ca. 22m² große Ost-Terrasse betreten.



In das Obergeschoß führt eine gemauerte Stieg auf die große Galerie von der aus weitere 3 Zimmer und ein großes Bad vorzufinden sind. Eine weitere, ca. 21m² messende Terrasse ist von der Galerie aus, dem Bad und von einem der Zimmer zu betreten.



Von dieser Ebene aus führt eine Stiege auf die Dachterrasse, das "High-Light" dieser Immobilie mit ca. 80m², die einen herrlichen Rundum-Grünblick ermöglicht!



Vom Wohnraum aus über die Terrasse ist der ca. 250m² große Garten zu betreten, der genügend Platz zum Spielen bietet und zu gemütlichen Grillabenden einlädt.



Das Haus ist teilunterkellert, mit einer Größe von ca.60m², und ist vom Eingangsbereich aus über den Stiegenabgang erreichbar.



Die derzeitige Ausstattung umfaßt 3-fach-Isolierglasscheiben, eine Luftwärmepumpe, Fußbodenheizung und die gesamte Elektrik ist bereits installiert.



Zum Abstellen der Autos ist ein Carport für 2 PKWs vorhanden.



Die Immobilie wird belagsfertig verkauft, um die eigenen Gestaltungswünsche zu verwirklichen! 



Es besteht auch die Möglichkeit dieses Haus schlüsselfertig zu kaufen, der Kaufpreis liegt bei 850.000,00 EUR.



Kaufpreis: 730.000,00 EUR



Provision: 26.280,00 EUR inkl. 20% USt.

Grunderwerbssteuer: 3,5%

Grundbuchseintragungsgebühr: 1,1%

Kosten der Vertragserrichtung und grundbücherlichen Durchführung nach Vereinbarung im Rahmen der Tarifordnung des jeweiligen Urkundenerrichters sowie Barauslagen für Beglaubigung und Stempelgebühren.


Der Vermittler ist als Doppelmakler tätig.

Eckdaten Objektnr. 19555

Art: Haus
Land: Österreich
Baujahr: 1970
Zustand: Voll_saniert
Alter: Neubau
Kaufpreis: 730.000,00
Provision: 26.280,00 € inkl. 20% USt.
Wohnfläche: 161,98 m²
Nutzfläche: 341,86 m²
Zimmer: 5
Bäder: 2
WC: 2
Terrassen: 3
Stellplätze: 2
Garten: 250,00 m²
Keller: 59,50 m²
Heizwärmebedarf:  B  46,00 kWh/m²a
fGEE:  A  0,77
Immobilie merken Exposé

Ausstattung

Estrichboden, Einbauküche, Ostbalkon, Westbalkon, Bad mit Fenster, Badewanne, Dusche, Kabel/Satelliten-TV, Carport


Immobilie anfragen


Ihre persönliche Beratung

Bieber Immobilien GmbH

Elisabeth Bieber

Bieber Immobilien GmbH

H +43 699 15 11 1959

F +43 720 88 13 76