Klimatisierte 80m² DG-Maisonette mit Terrasse im renovierten Stilaltbau - 1170 Wien

Wohnung - Dachgeschoß, 1170 Wien


Bergsteiggasse

Beschreibung der Immobilie

Klimatisierte 80m² DG-Maisonette mit Terrasse im renovierten Stilaltbau - 1170 Wien

Wunderschöne 80m² Dach-Maisonette mit smarter Raumaufteilung!



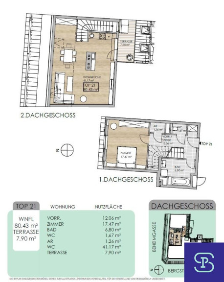
Diese schön ausgestattete Maisonette-Wohnung befindet sich im Dachgeschoß eines schönen, revitalisierten Altbaus in der Bergsteiggasse in Hernals. Die Wohnung wurde außerdem frisch saniert (Badezimmer, Treppe mit Geländer, WC und Fliesenböden). Die klimatisierte Wohnung besteht im DG2 aus 1 geräumigen Wohnzimmer mit offenem Küchenbereich sowie einer südseitigen Terrasse. Im DG 1 befinden sich der Wohnungseingang mit Vorraum, Schlafzimmer, Badezimmer, Abstellraum und WC,.



Ausstattung: Revitalisierung 2023 (Sanierung Gebäude und Ausbaus Dachgeschoß) mit Einbauküche inkl. Geräten, Parkettböden, Fliesenbad mit Badewanne samt Duschverglasung, Klimaanlage, Gasetagenheizung, Kunststofffenster mit Mehrfachverglasung und Außenbeschattung, Kellerabteil, Waschküche, Lift,.



Optional können Garagenplätze im Eigentum erworben werden



Schöne Wohnlage in der Bergsteiggasse im 17. Bezirk mit guter Infrastruktur durch zahlreiche Gastronomieangebote und Geschäfte des täglichen Bedarfs in fußläufiger Umgebung. So befinden sich der Kutschkermarkt oder das Einkaufszentrum Hernals in der näheren Umgebung. Nur wenige Schritte entfernt befindet sich auch der Frederic-Morton-Park, der zu kurzen Abstechern ins Grüne einlädt. Ebenso ist die Wiener Innenstadt oder das Erholungsgebiet am Wilhelminenberg schnell und und unkompliziert erreichbar. Gute öffentliche Verkehrsanbindung u.a. durch die Straßenbahnlinien 9, 42, 43, 44 in unmittelbarer Umgebung. Die Linie U6 ist ebenfalls in Gehdistanz und ca. 700m entfernt.



Bitte beachten Sie auch noch weitere verfügbare Einheiten von 45m² - 80m² in diesem Gebäude auf unserer Homepage www.sitarz.at



Die Wohnung wird ab sofort im Wohnungseigentum verkauft!
Kaufpreis € 539.000,-
Rücklage € 85,26

BK brutto € 330,32

Vermittlungsprovision 3% vom KP zuzügl. 20% USt.



KONTAKT: Frau Mag. Aichholzer 0664 401 96 53
Email: aa@sitarz.at




Besuchen Sie für unsere weiteren Angebote bitte auch unsere Homepage: www.sitarz.at
 



Der Käufer zahlt im Erfolgsfall an die Firma Sitarz & Partner Immobilien GmbH eine Maklerprovision in Höhe von 3% des Kaufpreises zzgl. 20% Ust. Die Provision errechnet sich aus dem beurkundeten Kaufpreis. Ausdrücklich vereinbart wird dieser Provisionsanspruch in gleicher Höhe auch für die in § 15 MaklerG vorgesehenen Fälle (Unterlassung eines notwendigen Rechtsaktes wider Treu und Glauben, Abschluss eines zweckgleichen Geschäftes, Abschluss mit einem Dritten aufgrund der Weitergabe der Abschlussmöglichkeit, Ausübung eines Vorkaufs-, Wiederkaufs- oder Eintrittsrechtes). Wir halten fest, dass Ihnen dieses Objekt erstmals durch unsere Tätigkeit als Immobilienmakler bekannt wurde. Falls Ihnen dieses Objekt bereits als verkauf- oder vermietbar bekannt ist, ersuchen wir innerhalb von 3 Werktagen um Ihre schriftliche Nachricht, ansonsten gilt die Provisionsregelung als vereinbart. Bei den Größen und Ertragsangaben handelt es sich um die von Abgeber/in (Eigentümer/in bzw. Hausverwaltung) zur Verfügung gestellten Informationen. Die Angaben wurden von uns kontrolliert, eine Gewähr für die Richtigkeit, Vollständigkeit und Letztstand müssen wir allerdings ausschließen. Es wird darauf hingewiesen, dass zwischen dem Abgeber und dem Immobilienmakler ein wirtschaftliches bzw. familiäres Nahverhältnis besteht und der Immobilienmakler auch für diesen tätig ist (Doppelmakler).


Wir weisen darauf hin, dass zwischen dem Vermittler und dem zu vermittelnden Dritten ein familiäres oder wirtschaftliches Naheverhältnis besteht.


Der Vermittler ist als Doppelmakler tätig.

Infrastruktur / Entfernungen

Gesundheit
Arzt <500m
Apotheke <500m
Klinik <500m
Krankenhaus <1.000m

Kinder & Schulen
Schule <500m
Kindergarten <500m
Universität <1.500m
Höhere Schule <1.000m

Nahversorgung
Supermarkt <500m
Bäckerei <500m
Einkaufszentrum <500m

Sonstige
Geldautomat <500m
Bank <500m
Post <500m
Polizei <500m

Verkehr
Bus <500m
U-Bahn <1.000m
Straßenbahn <500m
Bahnhof <1.000m
Autobahnanschluss <3.000m

Angaben Entfernung Luftlinie / Quelle: OpenStreetMap

Eckdaten Objektnr. 7674

Art: Wohnung - Dachgeschoß
Land: Österreich
Baujahr: 1910
Zustand: Teil_vollrenoviert
Alter: Altbau
Kaufpreis: 539.000,00
Provision: 19.404,00 € inkl. 20% USt.
Betriebskosten: 330,32 €
Wohnfläche: 80,43 m²
Zimmer: 2
Bäder: 1
WC: 1
Terrassen: 1
Heizwärmebedarf:  C  71,90 kWh/m²a
fGEE:  C  1,59
Immobilie merken Exposé

Ausstattung

Parkett, Fliesen, Gas, Etagenheizung, Einbauküche, Personenaufzug, Südbalkon, Badewanne, Wasch/Trockenraum


Immobilie anfragen


Ihre persönliche Beratung

Mag. Astarte Aichholzer

Sitarz & Partner Immobilien GmbH

T +43 664 401 96 53

H +43 664 401 96 53